Luxuriöses Einfamilienhaus mit Dachterrasse, Pool und Garten in Köln
Der Hausentwurf punktet mit einem innovativen Energiekonzept als Energieeffizienzhaus 40 und überzeugt mit einer modernen Architektur sowie einem großzügigen Wohnambiente. Der als Fertighaus geplante Hausentwurf SD 2503 bietet ein exklusives Wohnraumgefühl mit viel Platz für die ganze Familie. Beim Betreten des Hauses erschließt sich das offene Wohnraumkonzept mit einem Treppenaufgang und einer Galerie.
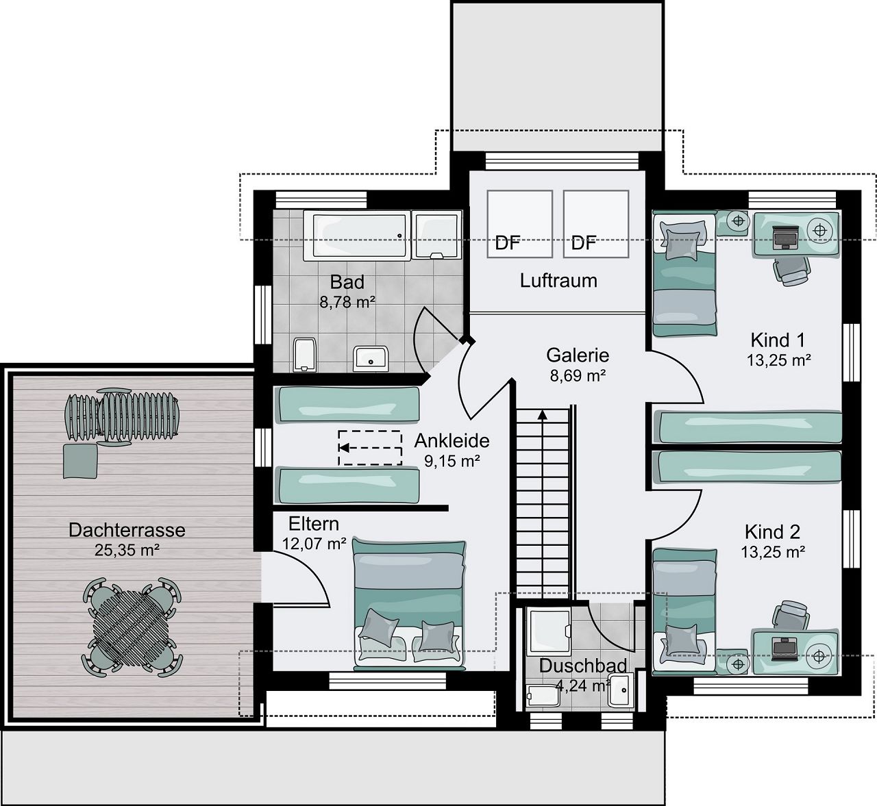
Im Dachgeschoss bietet der Grundriss einen eigenen Bereich für zwei Kinder zum Schlafen und Spielen mit eigenem Duschbad. Der Elternbereich ist großzügig und komfortabel als Rückzugsort ausgelegt. Er besteht aus einem Schlafzimmer mit Ankleideraum und einem separaten Elternbad. Ans Elternschlafzimmer schließt sich die großzügige Dachterrasse an.
Der gezeigte Entwurf und Grundriss ist beispielhaft. STREIF realisiert jedes Hausprojekt individuell nach Kundenwunsch.
Ausbaustufe
4 Möglichkeiten – viel Flexibilität
STREIF bietet Ihnen vom Ausbauhaus bis zum schlüsselfertigen Haus vier Ausbaustufen zur Auswahl. Das bedeutet für Sie maximale Flexibilität, ob und wie viel Eigenleistung Sie erbringen möchten.
Mehr erfahrenAusstattung
Vom Draußen und Drinnen
In der Ausstattung bestimmen Sie die Details, die bei Ihrem Hausbau ausgeführt werden sollen. Das betrifft das äußere Erscheinungsbild Ihres Hauses, aber auch den Innenausbau.
Mehr erfahrenDiese Themen könnten Sie auch interessieren








Interesse?

Sie möchten zukünftig schöner Wohnen und zum Thema Hausbau gut informiert sein? Unsere Kataloge und Broschüren bieten eine Vielzahl an Hausentwürfen mit Grundrissen zur Inspiration und Ideenfindung. Sie geben aber auch eine Übersicht der Bauoptionen, der möglichen Ausstattungsvarianten und zeigen Trends sowie Innovationen aus Referenzhäusern.
In unseren Katalogen mit den verschiedenen Hausbaureihen
- Stadtvillen
- Einfamilienhäuser
- Bungalows
- Doppelhäuser und
- Mehrfamilienhäuser
erhalten Sie einen umfassenden Überblick über die Möglichkeiten des modernen Fertighausbaus - von der Architektur bis zu individuellen Grundrisslösungen.


