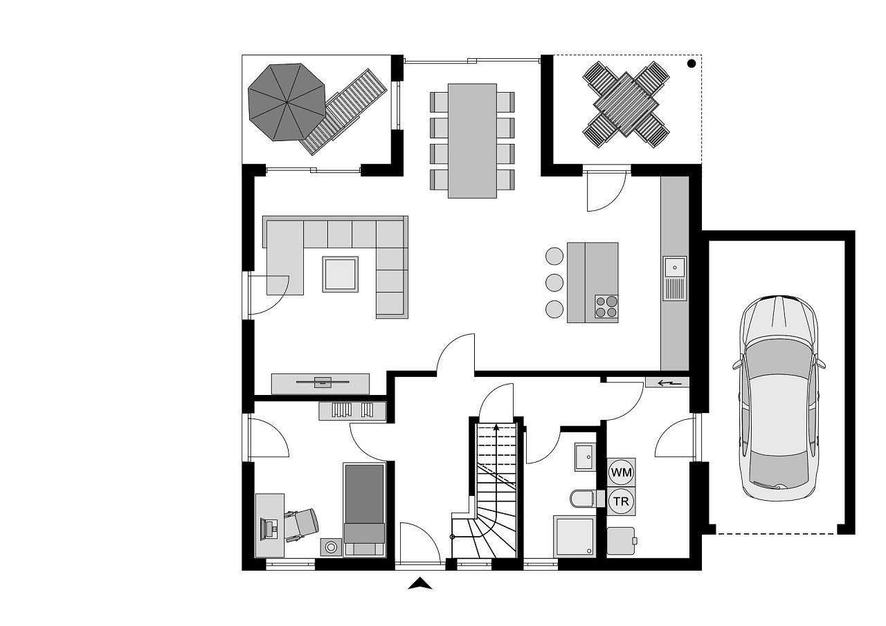
Modernes Einfamilienhaus mit Garage im Erdgeschoss
Das moderne Einfamilienhaus mit Garage und Wohnraumerweiterung bietet auf 170 m² Grundfläche viel Platz für die gesamte Familie. Der Terrassenbereich wird durch die Erkerausbildung und die Überdachung zu einem behaglichen Rückzugsort. Die Wohnraumerweiterung ist mit einer XXL-Panorama-Hebeschiebetür ausgestattet, die für ein Wintergartenfeeling im Essbereich sorgt. Das Erdgeschoss bietet auf fast 91 m² einen sehr großzügigen Wohn-/Ess- und Kochbereich. Die Garage ist über einen praktischen Nebeneingang mit dem Hauswirtschafts-/Haustechnikraum verbunden
Die abgebildeten Hausentwürfe sind Gestaltungsvorschläge. Eine Vielzahl individueller Anpassungen wie z. B. Hausgröße, Dachgeometrie, Fenstergrößen-/ und -position sind möglich. Wir bauen Ihr Zuhause als Energieeffizienzhaus individuell nur für Sie. Fragen Sie Ihre persönliche STREIF-Bauberatung.
Ausbaustufe
4 Möglichkeiten – viel Flexibilität
STREIF bietet Ihnen vom Ausbauhaus bis zum schlüsselfertigen Haus vier Ausbaustufen zur Auswahl. Das bedeutet für Sie maximale Flexibilität, ob und wie viel Eigenleistung Sie erbringen möchten.
Mehr erfahrenAusstattung
Vom Draußen und Drinnen
In der Ausstattung bestimmen Sie die Details, die bei Ihrem Hausbau ausgeführt werden sollen. Das betrifft das äußere Erscheinungsbild Ihres Hauses, aber auch den Innenausbau.
Mehr erfahrenDiese Themen könnten Sie auch interessieren








Interesse?

Sie möchten zukünftig schöner Wohnen und zum Thema Hausbau gut informiert sein? Unsere Kataloge und Broschüren bieten eine Vielzahl an Hausentwürfen mit Grundrissen zur Inspiration und Ideenfindung. Sie geben aber auch eine Übersicht der Bauoptionen, der möglichen Ausstattungsvarianten und zeigen Trends sowie Innovationen aus Referenzhäusern.
In unseren Katalogen mit den verschiedenen Hausbaureihen
- Stadtvillen
- Einfamilienhäuser
- Bungalows
- Doppelhäuser und
- Mehrfamilienhäuser
erhalten Sie einen umfassenden Überblick über die Möglichkeiten des modernen Fertighausbaus - von der Architektur bis zu individuellen Grundrisslösungen.


