Zweifamilienhaus von STREIF: Flexibles Fertighaus mit Satteldach
Der Hausentwurf HOME&GENERATION FAMILY 189 ist ein Zweifamilienhaus mit Satteldach, das in der Architektur Esprit und Behaglichkeit ausstrahlt. Der Basisentwurf des Hauses kann bei Bedarf sehr individuell ausgeführt werden. Mit Sandsteinakzenten in der Fassadengestaltung oder einer Teilholzverkleidung kann der Entwurf sehr individuell ergänzt werden.
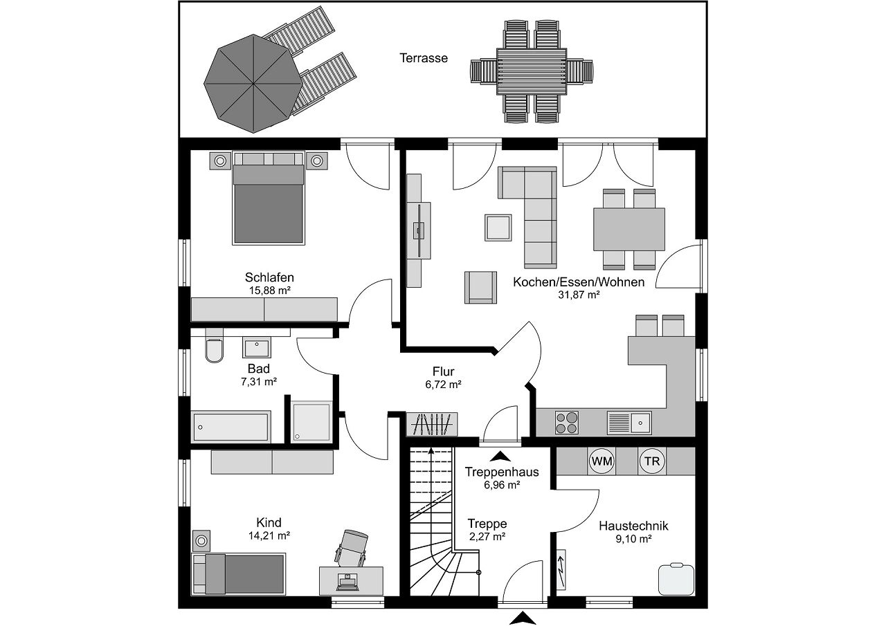
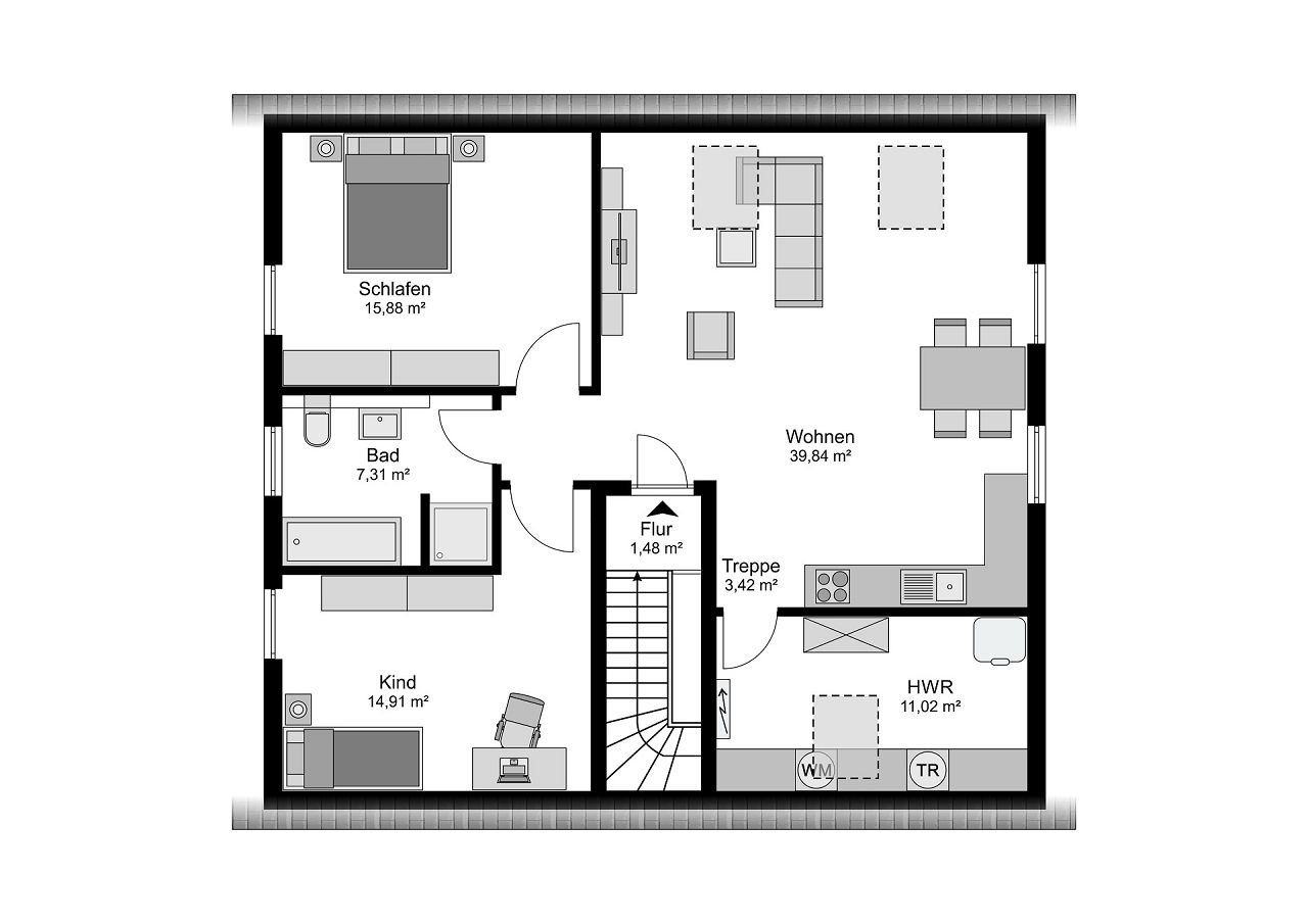
Auch die Erweiterung des Entwurfes, z. B. mit einem Erker, einem Balkon oder einer Haustürüberdachung bringt Charakter in die Architektur. Als Variante ist die Hausplanung ebenfalls mit einer Dachneigung von 38° und einem Kniestock von 1000 mm planbar. Durch die Dachschrägen im Dachgeschoss bietet sich ein besonderes beschützendes und gemütliches Wohnambiente, das direkt ein „Zuhause-Gefühl“ vermittelt. Beide Wohnungen sind hell und freundlich. Dieser Hausentwurf kann virtuell in einer Visualisierungs-App bemustert werden. Die Grundrissgestaltung des Zweifamilienhauses bietet je Etage eine Wohnung. Im Erdgeschoss befindet sich eine Wohnung mit 75,99 m² und perfekt geplanten Räumen. Der Hauptraum zum Kochen/Wohnen/Essen ist offen angelegt. Das Badezimmer bietet Platz für eine Dusche und eine Badewanne und liegt praktisch angeordnet mittig zwischen den beiden Schlafräumen. Der Haustechnikraum ist zentral im Erdgeschoss angelegt. Das Dachgeschoss ist mit 88,96 m² geplant, bietet ebenfalls einen offenen, großzügigen Wohn-/Ess- und Kochbereich sowie ein Badezimmer mit Dusche und Wanne. Direkt neben der Küche ist ein praktischer Hauswirtschaftsraum platziert. Das zweite Schlafzimmer kann auch als Gäste-/Hobby- oder Büroraum genutzt werden. Der gezeigte Hausentwurf stellt eine Inspiration dar. Jedes STREIF-Haus wird individuell geplant und gebaut.
Dank der Holztafelbauweise überzeugt dieses Zweifamilienhaus nicht nur architektonisch, sondern auch durch Nachhaltigkeit, hervorragende Wärmedämmung und ein gesundes Raumklima – ein zukunftsweisendes Wohnkonzept mit hoher Lebensqualität.
Das Haus kann in verschiedenen Ausbaustufen (fastfertig+ oder schlüsselfertig) und Ausstattungslinien flexibel ausgebaut und ausgestattet werden. Gemäß den Wünschen der Bauherren/Bauträger kann das Haus als Effizienzhaus 40 oder 55 ausgeführt werden. Aufgrund der gewünschten Grundriss- und Dachkonstruktion sowie Effizienzhausstufe kann eine Ökobilanzierung KfWG oder eine Nachhaltigkeitszertifizierung (KFWG-Q) QNG-PLUS für den Klimafreundlicher Neubau (KFN) möglich sein. Unsere Bauberatungen informieren Sie gerne über die aktuellen Fördermöglichkeiten.
Ausbaustufe
4 Möglichkeiten – viel Flexibilität
STREIF bietet Ihnen vom Ausbauhaus bis zum schlüsselfertigen Haus vier Ausbaustufen zur Auswahl. Das bedeutet für Sie maximale Flexibilität, ob und wie viel Eigenleistung Sie erbringen möchten.
Mehr erfahrenAusstattung
Vom Draußen und Drinnen
In der Ausstattung bestimmen Sie die Details, die bei Ihrem Hausbau ausgeführt werden sollen. Das betrifft das äußere Erscheinungsbild Ihres Hauses, aber auch den Innenausbau.
Mehr erfahrenDiese Themen könnten Sie auch interessieren







Interesse?

Sie möchten zukünftig schöner Wohnen und zum Thema Hausbau gut informiert sein? Unsere Kataloge und Broschüren bieten eine Vielzahl an Hausentwürfen mit Grundrissen zur Inspiration und Ideenfindung. Sie geben aber auch eine Übersicht der Bauoptionen, der möglichen Ausstattungsvarianten und zeigen Trends sowie Innovationen aus Referenzhäusern.
In unseren Katalogen mit den verschiedenen Hausbaureihen
- Stadtvillen
- Einfamilienhäuser
- Bungalows
- Doppelhäuser und
- Mehrfamilienhäuser
erhalten Sie einen umfassenden Überblick über die Möglichkeiten des modernen Fertighausbaus - von der Architektur bis zu individuellen Grundrisslösungen.


