Bungalow mit Walmdach: Stilvoller Komfort auf 135 m² im STREIF Fertighaus
Die Architektur des Bungalows
Der stilvoll und funktional gestaltete Bungalow mit Walmdach bietet an der Gartenseite einen überdachten Terrassenbereich. Eine zweifarbige Fassadengestaltung setzt Akzente.
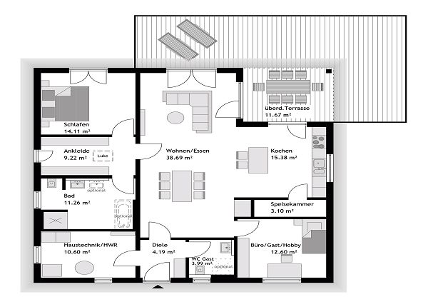
Die Grundrissgestaltung des Bungalows mit 134 m²
Ein überdachter Terrassenbereich ist eines der Highlights, die der Bungalow Fertighausentwurf 10 bietet. Eine quadratische Grundrissplanung bringt Vorteile mit sich. Alle Räume sind z. B. auf kurzen Wegen erreichbar. In der Planung wurde das Schlafzimmer mit Ankleide und Bad in einer Raumfolge angelegt. Direkt in der Nähe des Hauseingangs befindet sich das Gäste-WC, das optional auch als Duschbad realisiert werden kann. Ein zusätzliches Zimmer, das als Büro, Gäste oder Hobbyraum genutzt werden kann, bietet zusätzliche Flexibilität. Der Wohn-/Ess- und Kochbereich ist auf großzügigen 54,07 m² repräsentativ angelegt. Eine praktische Speisekammer ist neben der Küche geplant. Die Planung ist geeignet für Singles, Paare oder eine Kleinfamilie.
Die Highlights des stilvollen Bungalow Fertighauses
- Bungalow mit Walmdach auf gedämmter Fundamentplatte, Terrassenüberdachung
- Marken-Fenster, Terrassentüren und Haustür mit 3-fach-Wärmeschutzverglasung
- Lichterfüllter, großer Wohn-/Ess- und Kochbereich
- Schlafbereich mit Ankleide und Bad in einer Raumfolge
- Zusatzraum Büro/Gast/Hobby
- Gäste-WC optional mit Dusche
Flexibilität in der Grundrissgestaltung sowie mit 4 möglichen Ausbaustufen des Bungalows
Die gezeigten Grundrisse sind Gestaltungsideen und können individualisiert werden. Je nach ausgewählter Haustechnik und örtlich geltenden baulichen Vorschriften, können Anpassungen der Grundrisse erforderlich werden. Eine barrierefreie Gestaltung des Grundrisses muss separat beauftragt werden. Alle Angaben sind Circa-Werte. Aufgrund der Bauform muss die Möglichkeit zur Ökobilanzierung projektbezogen geprüft werden. Der STREIF-Bungalow wird standardmäßig als Effizienzhaus 40 in der Premiumline ausgeführt, kann aber auf Kundenwunsch auch in der niedrigeren Effizienzhausstufe 55 ausgeführt werden. Viel Flexibilität bieten 4 verschiedene Ausbaustufen.

Ausbaustufe
4 Möglichkeiten – viel Flexibilität
STREIF bietet Ihnen vom Ausbauhaus bis zum schlüsselfertigen Haus vier Ausbaustufen zur Auswahl. Das bedeutet für Sie maximale Flexibilität, ob und wie viel Eigenleistung Sie erbringen möchten.
Mehr erfahrenAusstattung
Vom Draußen und Drinnen
In der Ausstattung bestimmen Sie die Details, die bei Ihrem Hausbau ausgeführt werden sollen. Das betrifft das äußere Erscheinungsbild Ihres Hauses, aber auch den Innenausbau.
Mehr erfahrenDiese Themen könnten Sie auch interessieren








Interesse?

Sie möchten zukünftig schöner Wohnen und zum Thema Hausbau gut informiert sein? Unsere Kataloge und Broschüren bieten eine Vielzahl an Hausentwürfen mit Grundrissen zur Inspiration und Ideenfindung. Sie geben aber auch eine Übersicht der Bauoptionen, der möglichen Ausstattungsvarianten und zeigen Trends sowie Innovationen aus Referenzhäusern.
In unseren Katalogen mit den verschiedenen Hausbaureihen
- Stadtvillen
- Einfamilienhäuser
- Bungalows
- Doppelhäuser und
- Mehrfamilienhäuser
erhalten Sie einen umfassenden Überblick über die Möglichkeiten des modernen Fertighausbaus - von der Architektur bis zu individuellen Grundrisslösungen.
