Exklusives Doppelhaus Fertighaus mit Walmdach – zum Aktionspreis

*Der genannte Aktionspreis gilt beim Effizienzhausstandard 40 und in der Ausstattungslinie Premiumline; Ausbaustufe fastfertig+.
Die Hausarchitektur des Doppelhauses/der Doppelhaushälfte mit Walmdach strahlt moderne Eleganz aus. Die Grundrissgrößen sind so geplant, dass komfortable Räumlichkeiten entstehen. Ein offen gestalteter Wohn-/Ess-/Kochbereich bietet auf 39 m² Großzügigkeit. Eine Panorama-Hebeschiebetür und eine doppelflügelige Terrassentür sorgen für lichterfüllte Räume.
Hier geht es zur Übersicht aller Aktionshäuser.

Die Hausarchitektur des Doppelhauses/der Doppelhaushälfte mit Walmdach strahlt moderne Eleganz aus. Die Grundrissgrößen sind so geplant, dass komfortable Räumlichkeiten entstehen. Ein offen gestalteter Wohn-/Ess-/Kochbereich bietet auf 39 m² Großzügigkeit. Eine Panorama-Hebeschiebetür und eine doppelflügelige Terrassentür sorgen für lichterfüllte Räume.
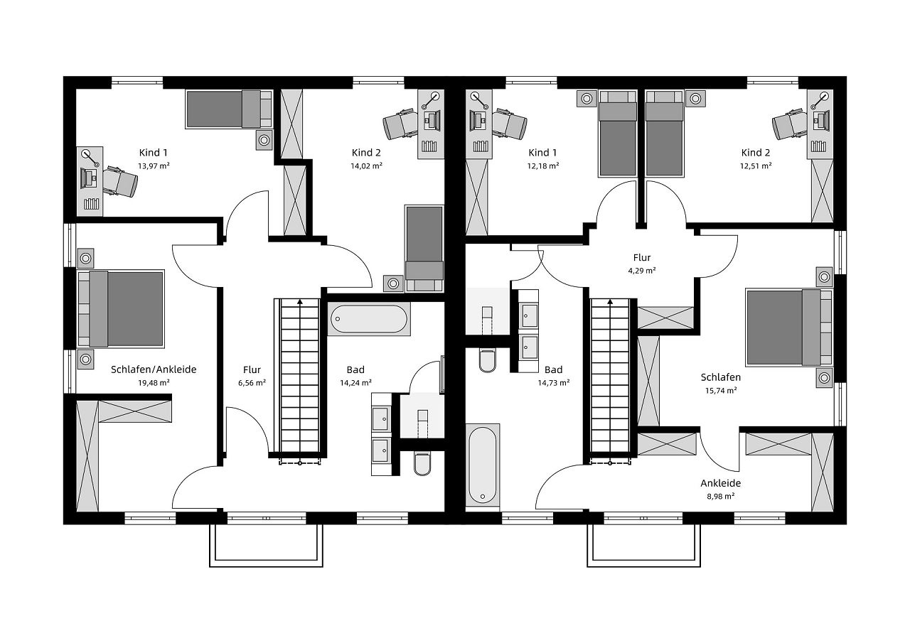
Ein Zusatzzimmer im Erdgeschoss, das als Homeoffice/Gäste- oder Schlafzimmer genutzt werden kann, bietet Flexibilität. Das Bad im EG kann optional mit einer Dusche ausgestattet werden. In Kombination mit dem Zusatzzimmer wird so auch das Wohnen auf einer Etage möglich. Im Obergeschoss ist ein Elternbereich mit Ankleidezimmer, 2 Kinderzimmern und ein großes Bad geplant. Aufgrund der Bauform/Dachform dieses Doppelhausentwurfes müssen die Haushälften gleichzeitig gebaut werden! Die gezeigten Fotos und Grundrisse sind Hausbeispiele. Jedes STREIF-Doppelhaus wird individuell nach Kundenwunsch geplant und gebaut.
* Bei Ausführung als Aktionshaus ist die Position der Bäder, die Größe der Haustechnikräume und die Lage und Größe der Treppen nicht veränderbar. Es sind 3 Ausstattungslinien wählbar. Smartline in der Effizienzhausklasse 55, Premium- und Queensline in der Effizienzhausklasse 40. Der genannte Aktionspreis gilt beim Effizienzhausstandard 40 und in der Ausstattungslinie Premiumline.
Ausbaustufe
4 Möglichkeiten – viel Flexibilität
STREIF bietet Ihnen vom Ausbauhaus bis zum schlüsselfertigen Haus vier Ausbaustufen zur Auswahl. Das bedeutet für Sie maximale Flexibilität, ob und wie viel Eigenleistung Sie erbringen möchten.
Mehr erfahrenAusstattung
Vom Draußen und Drinnen
In der Ausstattung bestimmen Sie die Details, die bei Ihrem Hausbau ausgeführt werden sollen. Das betrifft das äußere Erscheinungsbild Ihres Hauses, aber auch den Innenausbau.
Mehr erfahrenDiese Themen könnten Sie auch interessieren







Interesse?

Sie möchten zukünftig schöner Wohnen und zum Thema Hausbau gut informiert sein? Unsere Kataloge und Broschüren bieten eine Vielzahl an Hausentwürfen mit Grundrissen zur Inspiration und Ideenfindung. Sie geben aber auch eine Übersicht der Bauoptionen, der möglichen Ausstattungsvarianten und zeigen Trends sowie Innovationen aus Referenzhäusern.
In unseren Katalogen mit den verschiedenen Hausbaureihen
- Stadtvillen
- Einfamilienhäuser
- Bungalows
- Doppelhäuser und
- Mehrfamilienhäuser
erhalten Sie einen umfassenden Überblick über die Möglichkeiten des modernen Fertighausbaus - von der Architektur bis zu individuellen Grundrisslösungen.


