Herzenshaus FAMILY L - Familienwohnen auf 118 m²; Optional mit Holz- oder Klinkerdetails
Architektur und Grundrissgestaltung des Herzenshauses
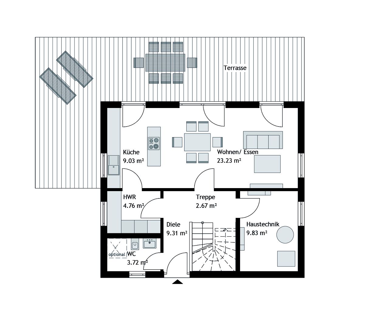
Das schöne kompakte Familiendomizil vermittelt moderne Behaglichkeit. Ein Highlight ist der Wohn-/Ess- und Kochbereich, der sich mit drei Terrassentüren zur Terrasse und zum Garten hin öffnet und von zwei Fenstern zusätzlich mit Licht erfüllt wird. Im Dachgeschoss sind drei Schlafzimmer geplant mit einem Familienbad. Das Haus ist in 3 Ausstattungslinien erhältlich: In der Smartline, der Premiumline oder der Queensline.
Außerdem können die Grundrisse noch individualisiert werden. Vier Ausbaustufen bieten Ihnen Flexibilität, ob und in welcher Form Sie beim Ausbau Eigenleistung einbringen möchten.
Eine optionale Fassadengestaltung mit Holz oder mit Klinker ist möglich.
35 Klinkervarianten zur Auswahl. Die angegebenen Außenmaße des Hauses vergrößern sich um die vorgesetzte Klinkerfassade. Je Hausseite mit Klinker um ca. 15 cm. Die im Bild gezeigte Klinkervariante ist NF 11 PR Rustica bes.
Die gezeigte Teilholzverkleidung ist in Color Samteffekt Kristallgrau.
Kontaktieren Sie bei weiteren Fragen gerne Ihre regionale Bauberatung.
Hier geht es zur Übersicht unserer Herzenshäuser.
Außerdem können die Grundrisse noch individualisiert werden. Vier Ausbaustufen bieten Ihnen Flexibilität, ob und in welcher Form Sie beim Ausbau Eigenleistung einbringen möchten.
Die gezeigte Teilholzverkleidung ist in Color Samteffekt Kristallgrau.
Kontaktieren Sie bei weiteren Fragen gerne Ihre regionale Bauberatung.
Folgende STREIF-Leistungen sind bei den Hauspreisen für die Herzenshäuser bei Ausbaustufe fastfertig+ in der STREIF-Standard-Ausstattungslinie PREMIUMLINE enthalten:
- Inklusive gedämmter Fundamentplatte
- Inklusive STREIF-Luft-Luft-Wärmepumpen-Technologie mit integrierter Lüftungsanlage und Wärmerückgewinnung
- Inklusive hochwertiger Holzhaustür von KERA-Tür
- Inklusive 3-fach-wärmeschutzverglaste Fenster von Porta/Kömmerling
- Inklusive Treppe aus eigener Produktion
- Inklusive gefliestem Bad mit Sanitärobjekten von Markenherstellern in Bad und WC
- Inklusive frostsichere Außenzapfstelle
- Inklusive Elektroinstallation u. v. m.
- Inklusive Vorbereitung zur Installation einer Photovoltaikanlage
- Individuelle Grundrissgestaltung und Raumaufteilung möglich
STREIF-Energiespar-Häuser sind für die Effizienzhausklasse 40 vorbereitet. Eine Ökobilanzierung oder Nachhaltigkeitszertifizierung nach QNG kann, bei den Ausbaustufen fast fertig plus und schlüsselfertig mit Kombination der Ausstattungslinie PREMIUM- oder QUEENSLINE gegen Aufpreis angeboten werden. Unsere Bauberatungen informieren Sie gerne über die aktuellen KfW-Fördermöglichkeiten.
Die Grundrisse sind Gestaltungsideen und können individualisiert werden. In Abhängigkeit von Gebäudestandort,Gebäudeausrichtung,Fensterflächenanteilen, Haustechnik, örtlich geltenden baulichen Vorschriften usw. können zusätzliche oder abweichende Leistungen bzw. die Anpassung der Grundrisse erforderlich werden, die im Zuge der Bauantragsbewertung/-erstellung bewertet werden. Alle Angaben sind Circa-Werte. Abbildungen können Sonderausstattungen oder Anbauteile zeigen, die nicht im Lieferumfang/ Angebot enthalten sind.
Sie träumen von einer Klinker- oder Holzfassade? Auch diese Wünsche besprechen wir gerne mit Ihnen.
Für unsere Herzenshäuser bieten wir eine Speed-Lieferung in 8 Monaten an. Auf Wunsch wird ein Terminplan mit Baubeginn innerhalb von 8 Monaten vereinbart. Dabei werden kundenseitig und von STREIF einzuhaltende Maximaltermine definiert.
Die hohe Wertigkeit und Langlebigkeit eines STREIF-Energiespar-Hauses wird durch zahlreiche Auszeichnungen, Qualitäts- und Gütesiegel unabhängiger Institute und Verbände dokumentiert.
Ausbaustufe
4 Möglichkeiten – viel Flexibilität
STREIF bietet Ihnen vom Ausbauhaus bis zum schlüsselfertigen Haus vier Ausbaustufen zur Auswahl. Das bedeutet für Sie maximale Flexibilität, ob und wie viel Eigenleistung Sie erbringen möchten.
Mehr erfahrenAusstattung
Vom Draußen und Drinnen
In der Ausstattung bestimmen Sie die Details, die bei Ihrem Hausbau ausgeführt werden sollen. Das betrifft das äußere Erscheinungsbild Ihres Hauses, aber auch den Innenausbau.
Mehr erfahrenDiese Themen könnten Sie auch interessieren









Interesse?

Sie möchten zukünftig schöner Wohnen und zum Thema Hausbau gut informiert sein? Unsere Kataloge und Broschüren bieten eine Vielzahl an Hausentwürfen mit Grundrissen zur Inspiration und Ideenfindung. Sie geben aber auch eine Übersicht der Bauoptionen, der möglichen Ausstattungsvarianten und zeigen Trends sowie Innovationen aus Referenzhäusern.
In unseren Katalogen mit den verschiedenen Hausbaureihen
- Stadtvillen
- Einfamilienhäuser
- Bungalows
- Doppelhäuser und
- Mehrfamilienhäuser
erhalten Sie einen umfassenden Überblick über die Möglichkeiten des modernen Fertighausbaus - von der Architektur bis zu individuellen Grundrisslösungen.


