Platzwunder Haus 05, Einfamilienhaus, 154 m²
Ein Hausentwurf mit strukturierter Grundrissgesaltung für eine Familie mit 2 - 3 Kindern
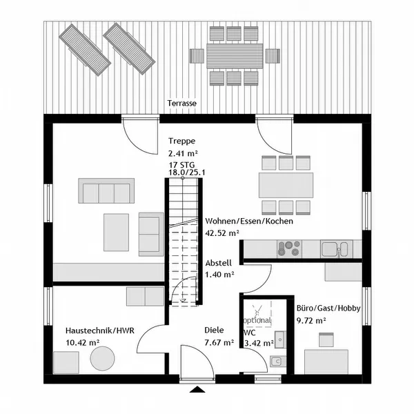
Die Hausarchitektur und die Grundrissgestaltung
Der Einfamilienhausentwurf Platzwunder 05 bietet eine klassische, 1,5-geschossige Architektur. Besonders behagliche und beschützende Räume entstehen unter dem behütenden Satteldach. Die Grundrissgestaltung punktet mit einem 43 m²-großen Wohn-/Ess- und Kochbereich. Die Treppe ist als Gestaltungselement zwischen dem Wohn- und dem Ess- und Kochbereich platziert und bietet so eine gewisse Struktur. Ein Zusatzraum im EG bietet Flexibilität in der Raumnutzung. Das WC kann optional mit einer Dusche ausgestattet werden. Ein Haustechnik-/Hauswirtschaftsraum, eine Diele und das Treppenhaus bieten gemeinsam eine Netto-Raumfläche von 78 m² im EG. Das Dachgeschoss bietet Platz für zwei große Kinderzimmer, einen Elternschlafbereich, ein großes Bad und einen kleinen Abstellraum. Im Flurbereich ist zudem unter der Schräge und einem Dachfenster noch Platz für einen Schreibtisch bzw. einen kleinen Homeoffice-Bereich. Insgesamt bietet der Hausentwurf auf 154 m² Platz für eine Familie mit zwei bis drei Kindern.
Die Hausdaten
Bauart: 1,5-geschossiges Einfamilienhaus
Dachform: 38° Satteldach als Pfettendach
Kniestock: 1000 mm oder 1250 mm
Großer Wohn-/Ess-/Kochbereich auf 42,52 m²
mit Zusatzzimmer Büro/Gast/Hobby im EG
WC mit optionaler Dusche im EG
Dachgeschoss: 2 große Kinderzimmer, Elternschlafzimmer, großes Bad
Hausmaße: 10,58 m x 8,71 m
Netto-Raumfläche gesamt: 154,45 m²
Dachform: 38° Satteldach als Pfettendach
Kniestock: 1000 mm oder 1250 mm
Großer Wohn-/Ess-/Kochbereich auf 42,52 m²
mit Zusatzzimmer Büro/Gast/Hobby im EG
WC mit optionaler Dusche im EG
Dachgeschoss: 2 große Kinderzimmer, Elternschlafzimmer, großes Bad
Hausmaße: 10,58 m x 8,71 m
Netto-Raumfläche gesamt: 154,45 m²
Folgende Leistungen sind im Hauspreis unserer Platzwunder enthalten
- bei der Ausbaustufe fastfertig+, in der Ausstattungslinie Smartline als Effizienzhaus 55:
- Inklusive STREIF-Luft-Luft-Wärmepumpen-Technologie mit integrierter Be- und Entlüftung mit Wärmerückgewinnung
- Inklusive weißer Kunststoff-Haustür
- Inklusive hocheffizienten Kunststoff-Fenstern- und Terrassentüren mit 3-fach-Wärmeschutzverglasung in Weiß
- Inklusive Treppe in Buche natur, keilgezinkt aus eigener Produktion (außer Bungalow)
- Inklusive Bad/WC gefliest und mit Sanitärobjekten von Markenherstellern
- Inklusive Elektroinstallation u. v. m.
- Inklusive Vorbereitung zur Installation einer PV-Anlage
- Änderungen gegen Aufpreis möglich**
- Inklusive Gutschein für eine Designküche
Die Fundamentplatte wird zum Platzwunder-Aktionspreis angeboten.
**Smart-Indi-Paket: Veränderung der Fenster, Spiegelung des Grundrisses oder Anbau von Bauteilen möglich.
Die hohe Wertigkeit und Langlebigkeit eines STREIF-Energiesparhauses wird durch zahlreiche Auszeichnungen, Qualitäts- und Gütesiegel unabhängier Institue und Verbände dokumentiert.
Abbildungen können Sonderausstattungen oder Anbauteile zeigen, die nicht im Lieferumfang enthalten sind.
Ausbaustufe
4 Möglichkeiten – viel Flexibilität
STREIF bietet Ihnen vom Ausbauhaus bis zum schlüsselfertigen Haus vier Ausbaustufen zur Auswahl. Das bedeutet für Sie maximale Flexibilität, ob und wie viel Eigenleistung Sie erbringen möchten.
Mehr erfahrenAusstattung
Vom Draußen und Drinnen
In der Ausstattung bestimmen Sie die Details, die bei Ihrem Hausbau ausgeführt werden sollen. Das betrifft das äußere Erscheinungsbild Ihres Hauses, aber auch den Innenausbau.
Mehr erfahrenDiese Themen könnten Sie auch interessieren









Interesse?

Sie möchten zukünftig schöner Wohnen und zum Thema Hausbau gut informiert sein? Unsere Kataloge und Broschüren bieten eine Vielzahl an Hausentwürfen mit Grundrissen zur Inspiration und Ideenfindung. Sie geben aber auch eine Übersicht der Bauoptionen, der möglichen Ausstattungsvarianten und zeigen Trends sowie Innovationen aus Referenzhäusern.
In unseren Katalogen mit den verschiedenen Hausbaureihen
- Stadtvillen
- Einfamilienhäuser
- Bungalows
- Doppelhäuser und
- Mehrfamilienhäuser
erhalten Sie einen umfassenden Überblick über die Möglichkeiten des modernen Fertighausbaus - von der Architektur bis zu individuellen Grundrisslösungen.


