Platzwunder Haus 06, Einfamilienhaus, 167 m²
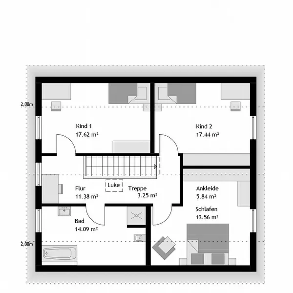
Die Architektur des Einfamilienhauses Platzwunder 06 mit Satteldach ist klassisch und behaglich zugleich. Die Grundrissgestaltung bietet mit 36 m² einen sehr komfortablen und lichterfüllten Wohn-/Ess- und Kochbereich. Die Anordnung ist unkonventionell übereck angelegt, was viele Vorteile mit sich bringt. Der Küchenbereich ist mit einer Terrassentür und einem Fenster über der Spüle geplant. Der Wohnbereich übereck bietet ein gewisses Spektrum an Rückzugsmöglichkeit, ist aber dennoch offen zum Essbereich angelegt. Die Grundrissgestaltung bietet einen Abstellraum im EG und einen Zusatzraum, der als Gast/Büro/Hobby-Raum genutzt werden kann. Das Dachgeschoss bietet Platz für zwei sehr große Kinderzimmer, einen Elternbereich mit Ankleide, ein sehr großes Familienbad und einen Flurbereich. Im Flur kann noch ein kleiner Homeoffice-Bereich eingerichtet werden. Das Raumangebot ist mit 167 m² großzügig. Es ist für eine Familie mit 2 – 3 Kindern geplant.
Die Hausdaten
Bauform: 1,5-geschossiges Einfamilienhaus
Dach: 38° Satteldach als Pfettendach
Erdgeschoss: Großer Wohn-/Ess-/Kochbereich auf 35,82 m²
Erdgeschoss: Zusatzzimmer Büro/Gast/Hobby im EG
Erdgeschoss: WC mit optionaler Dusche im EG
Erdgeschoss: mit Abstellraum
Hausmaße: 10,58 m x 9,33 m
Netto-Raumfläche: 167,22 m² gesamt
Dach: 38° Satteldach als Pfettendach
Erdgeschoss: Großer Wohn-/Ess-/Kochbereich auf 35,82 m²
Erdgeschoss: Zusatzzimmer Büro/Gast/Hobby im EG
Erdgeschoss: WC mit optionaler Dusche im EG
Erdgeschoss: mit Abstellraum
Hausmaße: 10,58 m x 9,33 m
Netto-Raumfläche: 167,22 m² gesamt
Folgende Leistungen sind im Hauspreis unserer Platzwunder enthalten
- bei der Ausbaustufe fastfertig+ in der Ausstattungslinie Smartline:
- Inklusive STREIF-Luft-Luft-Wärmepumpen-Technologie mit integrierter Be- und Entlüftung mit Wärmerückgewinnung
- Inklusive weißer Kunststoff-Haustür
- Inklusive hocheffizienten Kunststoff-Fenstern- und Terrassentüren mit 3-fach-Wärmeschutzverglasung in Weiß
- Inklusive Treppe in Buche natur, keilgezinkt aus eigener Produktion (außer Bungalow)
- Inklusive Bad/WC gefliest und mit Sanitärobjekten von Markenherstellern
- Inklusive Elektroinstallation u. v. m.
- Inklusive Vorbereitung zur Installation einer PV-Anlage
- Änderungen gegen Aufpreis möglich**
- Inklusive Gutschein für eine Designküche
Die Fundamentplatte wird zum Platzwunder-Aktionspreis angeboten.
**Smart-Indi-Paket: Veränderung der Fenster, Spiegelung des Grundrisses oder Anbau von Bauteilen möglich.
Die hohe Wertigkeit und Langlebigkeit eines STREIF-Energiesparhauses wird durch zahlreiche Auszeichnungen, Qualitäts- und Gütesiegel unabhängier Institue und Verbände dokumentiert.
Abbildungen können Sonderausstattungen oder Anbauteile zeigen, die nicht im Lieferumfang enthalten sind.
Ausbaustufe
4 Möglichkeiten – viel Flexibilität
STREIF bietet Ihnen vom Ausbauhaus bis zum schlüsselfertigen Haus vier Ausbaustufen zur Auswahl. Das bedeutet für Sie maximale Flexibilität, ob und wie viel Eigenleistung Sie erbringen möchten.
Mehr erfahrenAusstattung
Vom Draußen und Drinnen
In der Ausstattung bestimmen Sie die Details, die bei Ihrem Hausbau ausgeführt werden sollen. Das betrifft das äußere Erscheinungsbild Ihres Hauses, aber auch den Innenausbau.
Mehr erfahrenDiese Themen könnten Sie auch interessieren








Interesse?

Sie möchten zukünftig schöner Wohnen und zum Thema Hausbau gut informiert sein? Unsere Kataloge und Broschüren bieten eine Vielzahl an Hausentwürfen mit Grundrissen zur Inspiration und Ideenfindung. Sie geben aber auch eine Übersicht der Bauoptionen, der möglichen Ausstattungsvarianten und zeigen Trends sowie Innovationen aus Referenzhäusern.
In unseren Katalogen mit den verschiedenen Hausbaureihen
- Stadtvillen
- Einfamilienhäuser
- Bungalows
- Doppelhäuser und
- Mehrfamilienhäuser
erhalten Sie einen umfassenden Überblick über die Möglichkeiten des modernen Fertighausbaus - von der Architektur bis zu individuellen Grundrisslösungen.


