Prämierter Zweifamilienhausentwurf: Clever bauen mit STREIF
Der Hausentwurf TWIN von STREIF wurde mit dem PLUS X AWARD ausgezeichnet. Neben dem Design wurden die Aspekte, Qualität, Funktionalität und Ökologie von der Fachjury bewertet und ausgezeichnet.
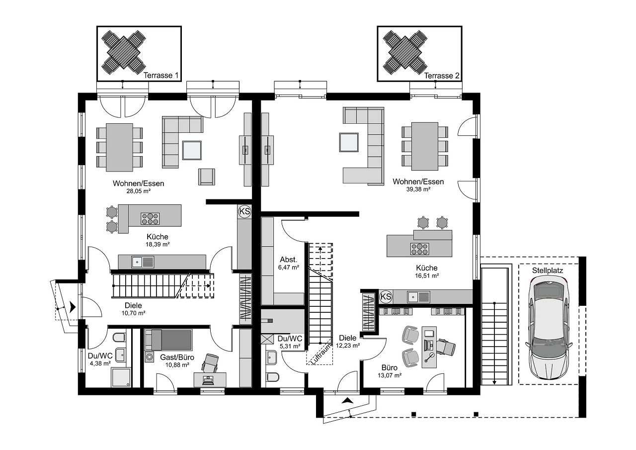
Eine wertige Architektur mit individuellen und effizienten Raumkonzepten zeichnet einen wirklich guten Hausentwurf aus. In Kombination mit dem Naturbaustoff Holz, einer speziell bauzeitoptimierten Fertigung und einer innovativen Haustechnik entsteht ein Gebäude, das im höchsten Maß auf die Bauwünsche des Kunden individuell zugeschnitten ist, sowie mit einer nachhaltigen, ökologischen und schnellen Bauweise punktet. Es kommen ausschließlich qualitativ hochwertige Materialien zum Einsatz, die eine wertige Ausführung und somit eine lange Lebensdauer sicherstellen. Hohe Grundstückspreise und rare Grundstücksangebote stellen die Herausforderung dar, die Grundstücksflächen optimal auszunutzen. Dies gelingt in hohem Maß bei der Realisierung von Doppelhäusern. Die Planung der Grundrisse mit einem ausgeklügelten Raumnutzungskonzept stellt ein enormes Potential dar. Wir stellen hier einen Hausentwurf eines Kunden-Doppelhauses vor. Der Doppelhausentwurf ist auf die Bedürfnisse der Bauherren exakt zugeschnitten. Die klassische Architektur des Hauses wirkt repräsentativ. Neben den großzügigen Wohnräumen werden auch ein Fitnessraum, ein Arbeitszimmer und ein Musikzimmer realisiert. Im Erdgeschoss bietet das Vorhandensein eines Duschbades und eines Arbeitszimmers, die Option im Alter oder bei Krankheit auf einer Etage wohnen zu können. Der Elternschlafbereich ist mit einer geräumigen Ankleide und einem Wellnessbad mit Sauna geplant. Der Elternschlafbereich und das Bad bieten einen Zugang zu einer schönen Loggia, die eine perfekte Ergänzung darstellt. Der Zugang ins Obergeschoss ist als Galerie gestaltet. Das Doppelhaus wurde mit unterschiedlich großen Wohnflächen geplant. Die Bauherren werden selbst in die größere Haushälfte, die eine Grundfläche von 258 m² aufweist, einziehen. Die kleinere Haushälfte wird vermietet werden. Sie bietet eine Nettogrundfläche von 200,08 m². Neben einem großen Wohn- und Essbereich mit offener Küchengestaltung ist auch hier ein Duschbad und ein Arbeits-/Gästezimmer geplant, sodass das Wohnen auf einer Etage möglich ist. Im Kellergeschoss ist ein Werkraum, ein großer Hauswirtschafts-/Haustechnikraum und ein Abstellraum vorgesehen. Im Dachgeschoss befinden sich zwei Schlafzimmer und ein großes Bad. Insgesamt wird in beiden Doppelhaushälften eine Nettogrundfläche von 459,58 m² auf einem 762 m² großen Grundstück realisiert. In der Haustechnik kommt eine innovative Luft-Wasser-Wärmepumpe zum Einsatz. Sie sorgt fürs perfekte Heizen, Lüften und für die Warmwasserbereitung. Die integrierte Hocheffizienzpumpe bietet eine energiesparende Wärmeverteilung. Mit bis zu 90 % Wärmerückgewinnung arbeitet die Lüftung. Eine benutzerfreundliche Bedienung mit ergonomischer Bedieneinheit ist selbstverständlich. Eine Photovoltaik- und Solaranlage kann an das System angebunden werden. Mit einer Photovoltaik-/Solaranlage wird die kostenfreie Sonnenenergie als regenerative Energiequelle genutzt. Der Strom, der für den Betrieb der Wärmepumpe benötigt wird, wird zum Großteil selbst erzeugt. Das Gebäude wird außerdem mit einer Ladestation für ein E-Auto ausgestattet. Die hervorragenden Wärmedämmwerte der STREIF-Passivwand sorgen dafür, dass die erzeugte Wärme auch im Haus bleibt, Bauherren profitieren von niedrigen laufenden Energiekosten und sind Unabhängigkeit von fossilen Brennstoffen. Der natürliche und nachhaltige Baustoff Holz, der für die Holztafelbauweise zum Einsatz kommt, bietet ein gutes und wohngesundes Raumklima. Die gezeigten Fotos und Grundrisse sind Beispiele für ein Generationenhaus. Jedes STREIF-Haus wird individuell nach Kundenwunsch geplant und gebaut.
Dank der Holztafelbauweise überzeugt dieses Mehrfamilienhaus nicht nur architektonisch, sondern auch durch Nachhaltigkeit, hervorragende Wärmedämmung und ein gesundes Raumklima – ein zukunftsweisendes Wohnkonzept mit hoher Lebensqualität.
Das Haus kann in verschiedenen Ausbaustufen und Ausstattungslinien flexibel ausgebaut und ausgestattet werden. Gemäß den Wünschen der Bauherren/Bauträger kann das Haus als Effizienzhaus 40 oder 55 ausgeführt werden. Aufgrund der gewünschten Grundriss- und Dachkonstruktion sowie Effizienzhausstufe kann eine Ökobilanzierung KfWG möglich sein. Unsere Bauberatungen informieren Sie gerne über die aktuellen Fördermöglichkeiten.

Ausbaustufe
4 Möglichkeiten – viel Flexibilität
STREIF bietet Ihnen vom Ausbauhaus bis zum schlüsselfertigen Haus vier Ausbaustufen zur Auswahl. Das bedeutet für Sie maximale Flexibilität, ob und wie viel Eigenleistung Sie erbringen möchten.
Mehr erfahrenAusstattung
Vom Draußen und Drinnen
In der Ausstattung bestimmen Sie die Details, die bei Ihrem Hausbau ausgeführt werden sollen. Das betrifft das äußere Erscheinungsbild Ihres Hauses, aber auch den Innenausbau.
Mehr erfahrenDiese Themen könnten Sie auch interessieren







Interesse?

Sie möchten zukünftig schöner Wohnen und zum Thema Hausbau gut informiert sein? Unsere Kataloge und Broschüren bieten eine Vielzahl an Hausentwürfen mit Grundrissen zur Inspiration und Ideenfindung. Sie geben aber auch eine Übersicht der Bauoptionen, der möglichen Ausstattungsvarianten und zeigen Trends sowie Innovationen aus Referenzhäusern.
In unseren Katalogen mit den verschiedenen Hausbaureihen
- Stadtvillen
- Einfamilienhäuser
- Bungalows
- Doppelhäuser und
- Mehrfamilienhäuser
erhalten Sie einen umfassenden Überblick über die Möglichkeiten des modernen Fertighausbaus - von der Architektur bis zu individuellen Grundrisslösungen.


