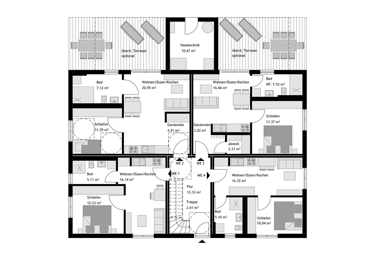
Mehrfamilienhaus Apartment mit 354 m² und 8 Wohneinheiten
Das Mehrfamilienhaus Apartment mit Erker und 354 m² bietet 8 Wohneinheiten für Singles und Paare (ca. 33 m² und 55 m²). Bei diesem Hausentwurf ist es möglich neben dem Walmdach auch ein Flachdach oder ein Satteldach zu planen.
Architektur und Grundrissgestaltung des Mehrfamilienhauses
Im Erker des Mehrfamilienhauses ist im Erdgeschoss ein Haustechnikraum mit Zugang von außen geplant. Im Obergeschoss ist an dieser Stelle ein Schlafraum geplant. Durch den Erker bildet sich eine perfekte, äußere räumliche Trennung der Wohneinheiten. So werden die Terrassen und optionalen Balkone zu beschützenden Rückzugsorten. Eine der acht Wohneinheiten bietet 2 Schlafräume, alle anderen Wohneinheiten bieten 1 Schlafraum, 1 Bad, und einen Wohn-, Ess- und Kochbereich. Eine barrierearme Planung der Wohneinheiten im Erdgeschoss ist möglich.
Dank der Holztafelbauweise überzeugt dieses Mehrfamilienhaus nicht nur architektonisch, sondern auch durch Nachhaltigkeit, hervorragende Wärmedämmung und ein gesundes Raumklima – ein zukunftsweisendes Wohnkonzept mit hoher Lebensqualität.
KfW-Fördermöglichkeiten in Form von zinsgünstigen Darlehen gelten je Wohneinheit
Das Haus kann in verschiedenen Ausbaustufen (fastfertig+ oder schlüsselfertig) und Ausstattungslinien flexibel ausgebaut und ausgestattet werden. Gemäß den Wünschen der Bauherren/Bauträger kann das Haus als Effizienzhaus 40 oder 55 ausgeführt werden. Aufgrund der gewünschten Grundriss- und Dachkonstruktion sowie Effizienzhausstufe kann eine Ökobilanzierung KfWG oder eine Nachhaltigkeitszertifizierung (KFWG-Q) QNG-PLUS für den Klimafreundlicher Neubau (KFN) möglich sein.
Unsere Bauberatungen informieren Sie gerne über die aktuellen Fördermöglichkeiten.
Stammdaten
Haustyp: 2-geschossiges Mehrfamilienhaus mit Erker und 8 Wohneinheiten
Dachform: Walmdach 45°
Hausmaße ohne Anbauteile: 16,83 m x 11,83 m
Netto-Raumfläche: 354,44 m²
Besonderheiten
- Haustechnikraum im Erdgeschoss mit separatem Zugang
- Optional mit Eker und/oder Balkon möglich
- Verschiedene Dachformen möglich
- Eine barrierearme Planung der Wohneinheiten im Erdgeschoss ist möglich
* Abbildungen können Sonderausstattungen oder Anbauteile zeigen, die nicht im Lieferumfang enthalten sind.

Ausbaustufe
4 Möglichkeiten – viel Flexibilität
STREIF bietet Ihnen vom Ausbauhaus bis zum schlüsselfertigen Haus vier Ausbaustufen zur Auswahl. Das bedeutet für Sie maximale Flexibilität, ob und wie viel Eigenleistung Sie erbringen möchten.
Mehr erfahrenAusstattung
Vom Draußen und Drinnen
In der Ausstattung bestimmen Sie die Details, die bei Ihrem Hausbau ausgeführt werden sollen. Das betrifft das äußere Erscheinungsbild Ihres Hauses, aber auch den Innenausbau.
Mehr erfahrenDiese Themen könnten Sie auch interessieren







Interesse?

Sie möchten zukünftig schöner Wohnen und zum Thema Hausbau gut informiert sein? Unsere Kataloge und Broschüren bieten eine Vielzahl an Hausentwürfen mit Grundrissen zur Inspiration und Ideenfindung. Sie geben aber auch eine Übersicht der Bauoptionen, der möglichen Ausstattungsvarianten und zeigen Trends sowie Innovationen aus Referenzhäusern.
In unseren Katalogen mit den verschiedenen Hausbaureihen
- Stadtvillen
- Einfamilienhäuser
- Bungalows
- Doppelhäuser und
- Mehrfamilienhäuser
erhalten Sie einen umfassenden Überblick über die Möglichkeiten des modernen Fertighausbaus - von der Architektur bis zu individuellen Grundrisslösungen.

