Mehrfamilienhaus Duo mit 297 m² und 2 Wohneinheiten
Mit 2 Wohneinheiten (76 m² und 88 m²) übereinander bietet das Mehrfamilienhaus Duo die ideale Architektur und Grundrissgestaltung für das Mehrgenerationenwohnen.
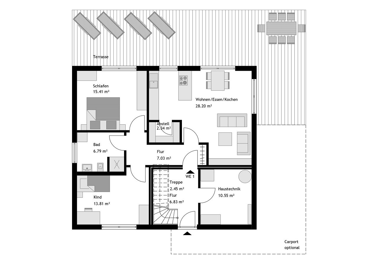
Architektur und Grundrissgestaltung des Mehrfamilienhauses
Die Architektur ist an die moderne 2-geschossige Stadtvilla mit einem Walmdach angelegt. Die Grundrissgestaltung sieht im Erdgeschoss einen 28,2 m² großen Wohn-, Ess- und Kochbereich vor. Ein praktischer Abstellraum schließt sich direkt der Küche an. Weiterhin gibt es 2 Schlafräume und ein Bad sowie eine praktische Wandnische für die Garderobe. Der Haustechnik-/Hauswirtschaftsraum ist für beide Wohnungen im Erdgeschoss platziert und bietet über den Eingangsbereich mit Treppenhaus auch für beide Wohnungen Zutritt. Die Wohnung im Obergeschoss verfügt über 3 Schlafräume, ein Bad und einen 30,2 m² großen Wohn-, Ess- und Kochbereich. Auch hier ist ein praktischer Abstellraum im Flurbereich gelegen.
KfW-Fördermöglichkeiten in Form von zinsgünstigen Darlehen gelten je Wohneinheit
Das Haus kann in verschiedenen Ausbaustufen (fastfertig+ oder schlüsselfertig) und Ausstattungslinien flexibel ausgebaut und ausgestattet werden. Gemäß den Wünschen der Bauherren/Bauträger kann das Haus als Effizienzhaus 40 oder 55 ausgeführt werden. Aufgrund der gewünschten Grundriss- und Dachkonstruktion sowie Effizienzhausstufe kann eine Ökobilanzierung KfWG oder eine Nachhaltigkeitszertifizierung (KFWG-Q) QNG-PLUS für den Klimafreundlicher Neubau (KFN) möglich sein. Unsere Bauberatungen informieren Sie gerne über die aktuellen Fördermöglichkeiten.
Stammdaten
Haustyp: 2-geschossige Stadtvilla als Zweifamilienhaus
Dachform: Walmdach 25°
Optional: Carport mit Haustürvordach und Dachterrasse
Hausmaße ohne Anbauteile: 11,21 m x 9,96 m
Netto-Raumfläche: 186,32 m²
* Abbildungen können Sonderausstattungen oder Anbauteile zeigen, die nicht im Lieferumfang enthalten sind.

Ausbaustufe
4 Möglichkeiten – viel Flexibilität
STREIF bietet Ihnen vom Ausbauhaus bis zum schlüsselfertigen Haus vier Ausbaustufen zur Auswahl. Das bedeutet für Sie maximale Flexibilität, ob und wie viel Eigenleistung Sie erbringen möchten.
Mehr erfahrenAusstattung
Vom Draußen und Drinnen
In der Ausstattung bestimmen Sie die Details, die bei Ihrem Hausbau ausgeführt werden sollen. Das betrifft das äußere Erscheinungsbild Ihres Hauses, aber auch den Innenausbau.
Mehr erfahrenDiese Themen könnten Sie auch interessieren







Interesse?

Sie möchten zukünftig schöner Wohnen und zum Thema Hausbau gut informiert sein? Unsere Kataloge und Broschüren bieten eine Vielzahl an Hausentwürfen mit Grundrissen zur Inspiration und Ideenfindung. Sie geben aber auch eine Übersicht der Bauoptionen, der möglichen Ausstattungsvarianten und zeigen Trends sowie Innovationen aus Referenzhäusern.
In unseren Katalogen mit den verschiedenen Hausbaureihen
- Stadtvillen
- Einfamilienhäuser
- Bungalows
- Doppelhäuser und
- Mehrfamilienhäuser
erhalten Sie einen umfassenden Überblick über die Möglichkeiten des modernen Fertighausbaus - von der Architektur bis zu individuellen Grundrisslösungen.

