Doppelhaus DUO 326 mit 163 m² je Haushälfte
Besonders für schmale Grundstücke geeignet: Das 2,5-geschossige Doppelhaus mit einem klassischen Satteldach bietet viel Platz mit 163 m² je Doppelhaushälfte.
Architektur und Grundrissgestaltung des Doppelhauses
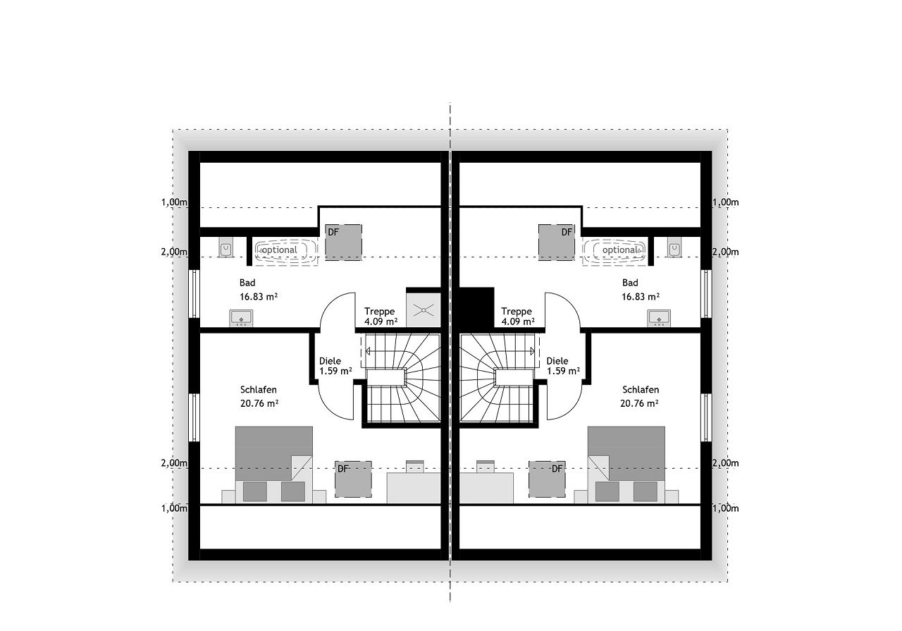
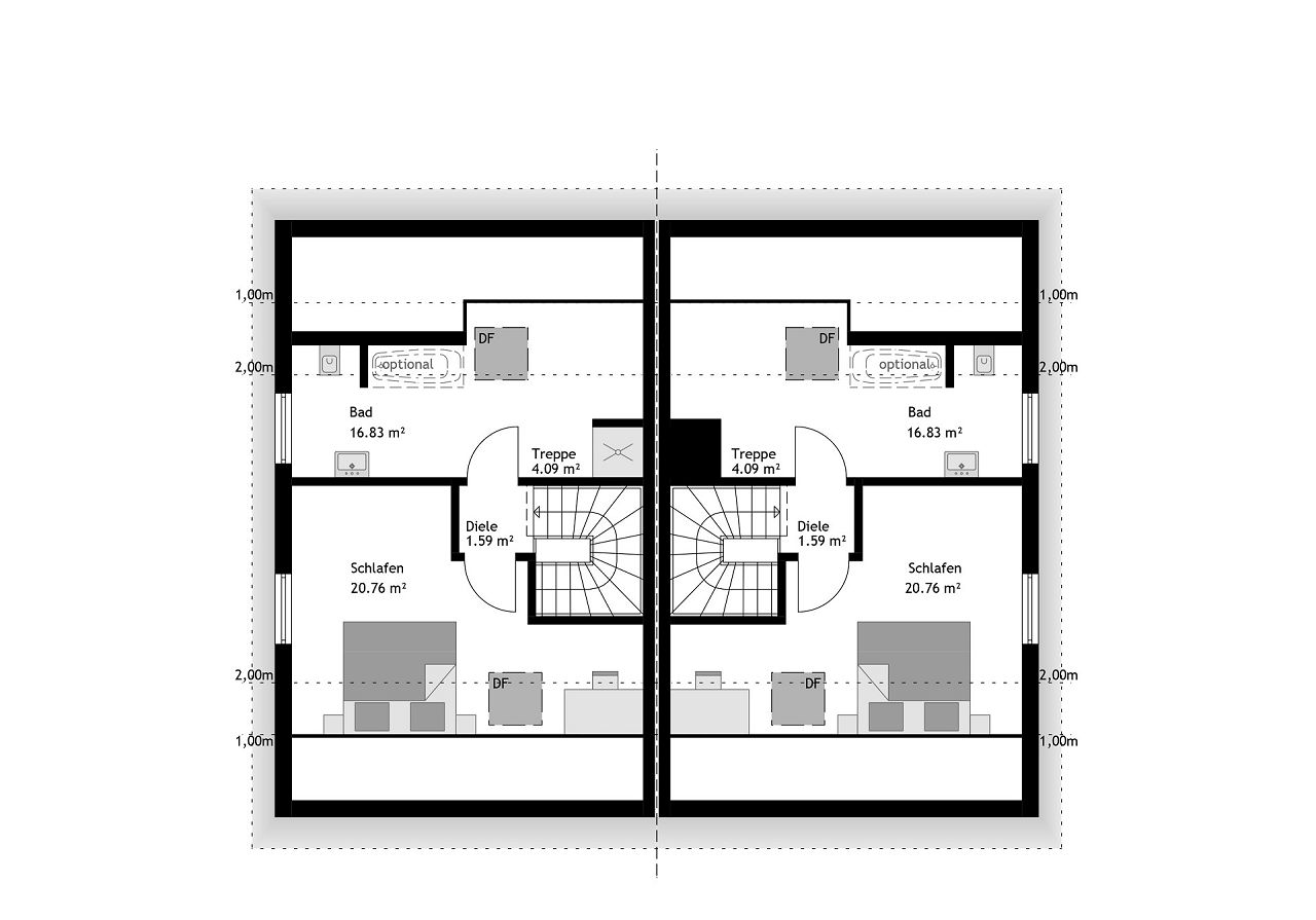
Die Planung ist besonders für schmale Grundstücke geeignet. Besonders schön sind die großformatigen Fenster und Terrassentüren zur Gartenseite hin. Das Doppelhaus ist mit einem klassischen Satteldach geplant. Die beiden Doppelhaushälften werden mit der speziellen STREIF-Gebäudetrennwand ausgeführt. Die Grundrissgestaltung bietet im Erdgeschoss einen sehr gut proportionierten und optimierten Grundriss. Der große Wohn-, Essbereich bietet auf 26,78 m² Platz. Der 10,09 m² große Küchenbereich kann in U-Form mit einer Kochtheke ausgeführt werden. In der Diele ist ein „versteckter Bereich“ geplant, indem die komplette Garderobe verschwinden kann. Mit einer schönen Diele, dem Treppenhaus, dem Gäste-WC und dem Haustechnik-/Hauswirtschaftsraum ist das Raumangebot im Erdgeschoss komplett. In den Obergeschossen der Doppelhaushälften sieht das Raumangebot 3 Schlafräume und ein Familienbad vor. Im Dachgeschoss könnte ein Studio oder ein separater Elternbereich seinen Platz finden. Mit zwei großen Zimmern und einem Bad ist hier viele möglich. Das Raumkonzept bietet also Platz für eine große Familie oder alternativ für entsprechende Büro-, Hobby- oder Gästezimmer.
Das Doppelhaus ist auch mit einem erhöhten Kniestock und einer Netto-Raumfläche von 358 m²; 179 m² je Haushälfte planbar. Doppelhaus Duo mit 358 m².
KfW-Fördermöglichkeiten in Form von zinsgünstigen Darlehen gelten je Wohneinheit
Das Haus kann in verschiedenen Ausbaustufen (fastfertig+ oder schlüsselfertig) und Ausstattungslinien flexibel ausgebaut und ausgestattet werden. Gemäß den Wünschen der Bauherren/Bauträger kann das Haus als Effizienzhaus 40 oder 55 ausgeführt werden. Aufgrund der gewünschten Grundriss- und Dachkonstruktion sowie Effizienzhausstufe kann eine Ökobilanzierung KfWG oder eine Nachhaltigkeitszertifizierung (KFWG-Q) QNG-PLUS für den Klimafreundlicher Neubau (KFN) möglich sein. Unsere Bauberatungen informieren Sie gerne über die aktuellen Fördermöglichkeiten.
Stammdaten
Haustyp: 2,5-geschossiges Doppelhaus mit 2 Doppelhaushälften
Dachform: Satteldach 38°
Hausmaße ohne Anbauteile: 13,48 m x 11,58 m
Netto-Raumfläche: 326 m²
* Abbildungen können Sonderausstattungen oder Anbauteile zeigen, die nicht im Lieferumfang enthalten sind.

Ausbaustufe
4 Möglichkeiten – viel Flexibilität
STREIF bietet Ihnen vom Ausbauhaus bis zum schlüsselfertigen Haus vier Ausbaustufen zur Auswahl. Das bedeutet für Sie maximale Flexibilität, ob und wie viel Eigenleistung Sie erbringen möchten.
Mehr erfahrenAusstattung
Vom Draußen und Drinnen
In der Ausstattung bestimmen Sie die Details, die bei Ihrem Hausbau ausgeführt werden sollen. Das betrifft das äußere Erscheinungsbild Ihres Hauses, aber auch den Innenausbau.
Mehr erfahrenDiese Themen könnten Sie auch interessieren







Interesse?

Sie möchten zukünftig schöner Wohnen und zum Thema Hausbau gut informiert sein? Unsere Kataloge und Broschüren bieten eine Vielzahl an Hausentwürfen mit Grundrissen zur Inspiration und Ideenfindung. Sie geben aber auch eine Übersicht der Bauoptionen, der möglichen Ausstattungsvarianten und zeigen Trends sowie Innovationen aus Referenzhäusern.
In unseren Katalogen mit den verschiedenen Hausbaureihen
- Stadtvillen
- Einfamilienhäuser
- Bungalows
- Doppelhäuser und
- Mehrfamilienhäuser
erhalten Sie einen umfassenden Überblick über die Möglichkeiten des modernen Fertighausbaus - von der Architektur bis zu individuellen Grundrisslösungen.


