Mehrfamilienhaus Duo mit 358 m², je Doppelhaushälfte 179 m²
Für schmale Grundstücke besonders geeeignet: Das 2,5-geschossige Doppelhaus mit einem klassischen Satteldach bietet außergewöhnlich viel Platz mit 179 m² je Doppelhaushälfte.
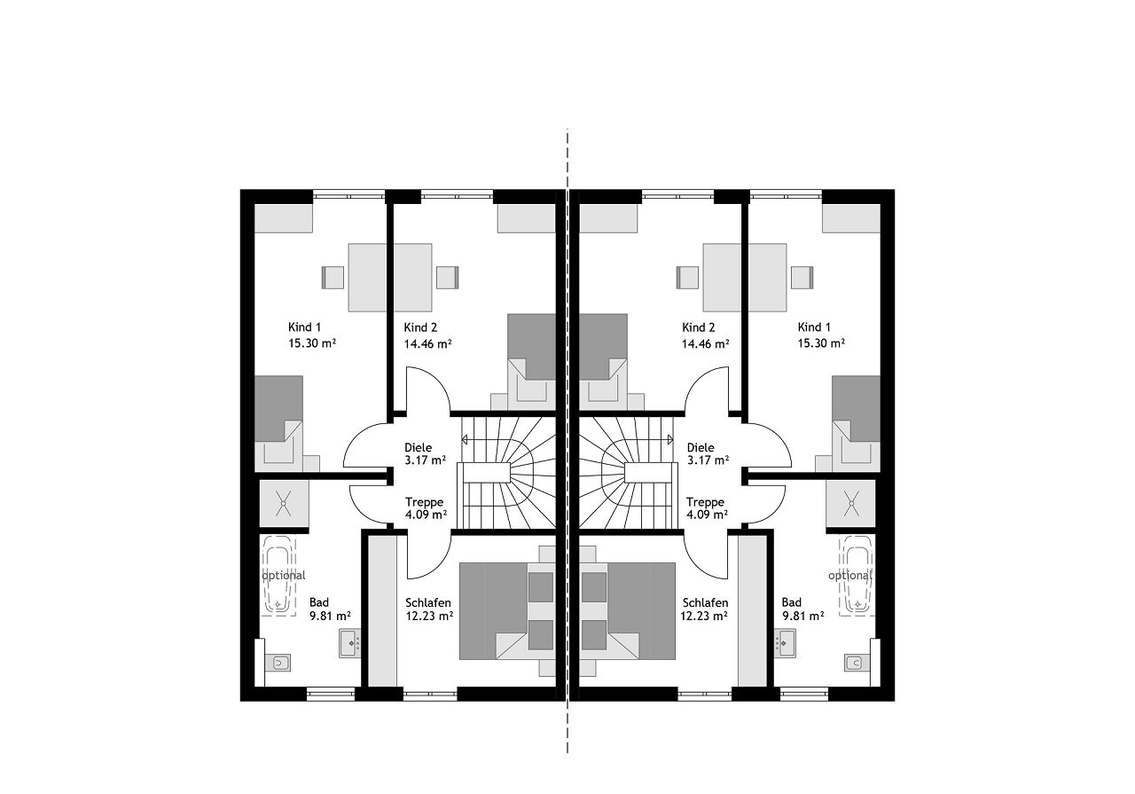
Architektur und Grundrissgestaltung des Mehrfamilienhauses
Die Planung ist besonders für schmale Grundstücke geeignet. Die beiden Doppelhaushälften werden mit der speziellen STREIF-Gebäudetrennwand ausgeführt. Besonders schön sind die großformatigen Fenster und Terrassentüren zur Gartenseite hin. Die Grundrissgestaltung bietet im Erdgeschoss einen sehr gut proportionierten und optimierten Grundriss. Der große Wohn-, Essbereich bietet auf 26,78 m² Platz. Der 10,09 m² große Küchenbereich kann in U-Form mit einer Kochtheke ausgeführt werden. In der Diele ist ein „versteckter Bereich“ geplant, indem die komplette Garderobe verschwinden kann. Mit einer schönen Diele, dem Treppenhaus, dem Gäste-WC und dem Haustechnik-/Hauswirtschaftsraum ist das Raumangebot im Erdgeschoss komplett. In den Obergeschossen der Doppelhaushälften sieht das Raumangebot 3 Schlafräume und ein Familienbad vor. Im Dachgeschoss könnte ein Studio oder ein separater Elternbereich seinen Platz finden. Mit zwei großen Zimmern und einem Bad ist hier viele möglich. Das Raumkonzept bietet also Platz für eine große Familie oder alternativ für entsprechende Büro-, Hobby- oder Gästezimmer.
KfW-Fördermöglichkeiten in Form von zinsgünstigen Darlehen gelten je Wohneinheit
Das Haus kann in verschiedenen Ausbaustufen (fastfertig+ oder schlüsselfertig) und Ausstattungslinien flexibel ausgebaut und ausgestattet werden. Gemäß den Wünschen der Bauherren/Bauträger kann das Haus als Effizienzhaus 40 oder 55 ausgeführt werden. Aufgrund der gewünschten Grundriss- und Dachkonstruktion sowie Effizienzhausstufe kann eine Ökobilanzierung KfWG oder eine Nachhaltigkeitszertifizierung (KFWG-Q) QNG-PLUS für den Klimafreundlicher Neubau (KFN) möglich sein. Unsere Bauberatungen informieren Sie gerne über die aktuellen Fördermöglichkeiten.
Stammdaten
Haustyp: 2,5-geschossiges Doppelhaus mit 2 Wohneinheiten
Dachform: Satteldach 38° mit einem Kniestock von 1,25 m
Hausmaße ohne Anbauteile: 13,48 m x 11,58 m
Netto-Raumfläche: 357,88 m²
* Abbildungen können Sonderausstattungen oder Anbauteile zeigen, die nicht im Lieferumfang enthalten sind.

Ausbaustufe
4 Möglichkeiten – viel Flexibilität
STREIF bietet Ihnen vom Ausbauhaus bis zum schlüsselfertigen Haus vier Ausbaustufen zur Auswahl. Das bedeutet für Sie maximale Flexibilität, ob und wie viel Eigenleistung Sie erbringen möchten.
Mehr erfahrenAusstattung
Vom Draußen und Drinnen
In der Ausstattung bestimmen Sie die Details, die bei Ihrem Hausbau ausgeführt werden sollen. Das betrifft das äußere Erscheinungsbild Ihres Hauses, aber auch den Innenausbau.
Mehr erfahrenDiese Themen könnten Sie auch interessieren







Interesse?

Sie möchten zukünftig schöner Wohnen und zum Thema Hausbau gut informiert sein? Unsere Kataloge und Broschüren bieten eine Vielzahl an Hausentwürfen mit Grundrissen zur Inspiration und Ideenfindung. Sie geben aber auch eine Übersicht der Bauoptionen, der möglichen Ausstattungsvarianten und zeigen Trends sowie Innovationen aus Referenzhäusern.
In unseren Katalogen mit den verschiedenen Hausbaureihen
- Stadtvillen
- Einfamilienhäuser
- Bungalows
- Doppelhäuser und
- Mehrfamilienhäuser
erhalten Sie einen umfassenden Überblick über die Möglichkeiten des modernen Fertighausbaus - von der Architektur bis zu individuellen Grundrisslösungen.


