Mehrfamilienhaus Multi 521 m² mit 9 Wohneinheiten
Das Mehrfamilienhaus Multi mit Satteldach und 521 m² bietet für 9 Wohneinheiten Platz. In der Architektur kann das Mehrfamilienhaus mit Gauben, Zwerchgiebeln sowie Balkonen geplant werden.
Architektur und Grundrissgestaltung des Mehrfamilienhauses
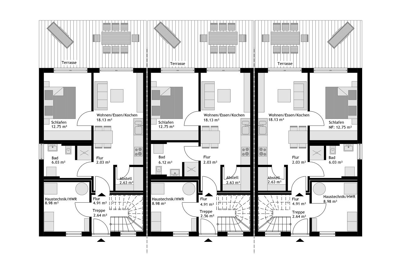
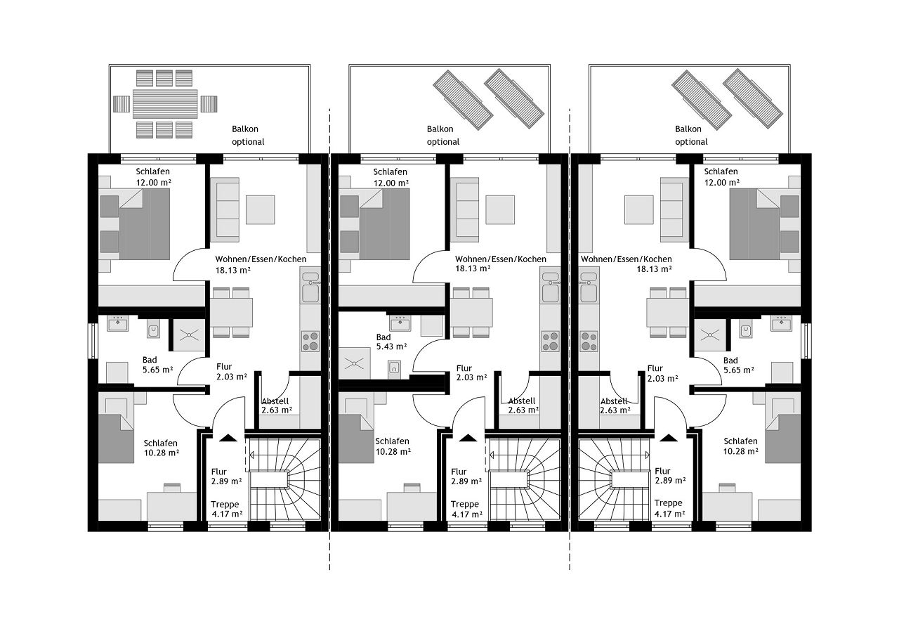
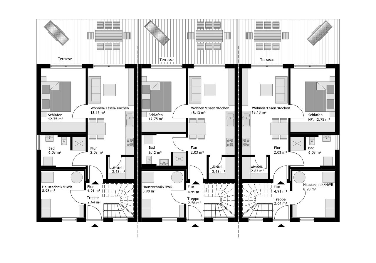
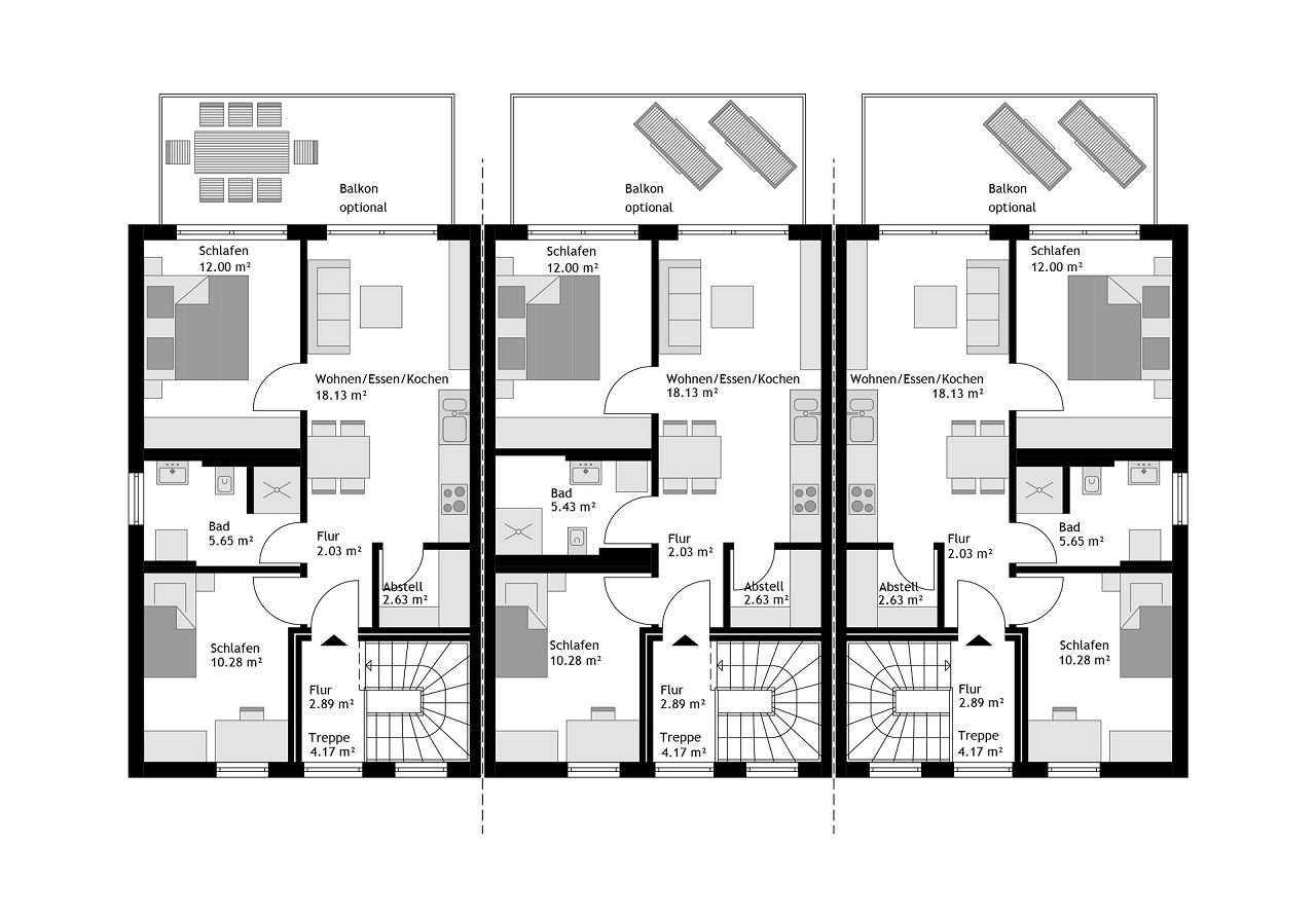
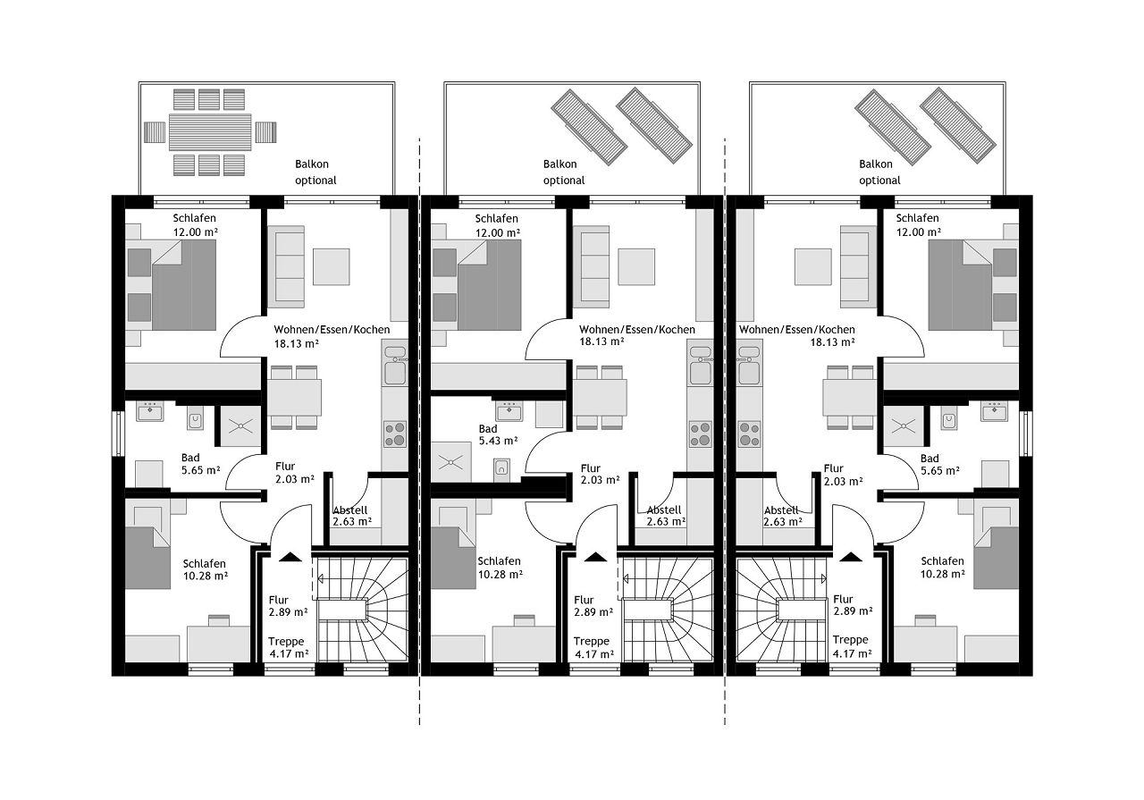
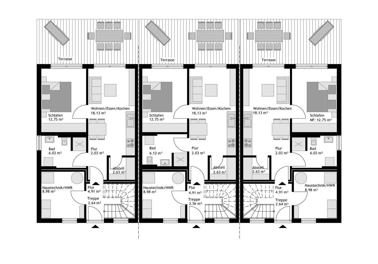
Die Wohnungen im Erd- und Dachgeschoss sind geeignet für Singles und Paare. Die Wohnungen im Obergeschoss bieten 2 Schlafzimmer und sind damit auch für eine kleine Familie geeignet. Im Erdgeschoss befinden sich drei Wohneinheiten mit ca. 42 m². Im Obergeschoss 3 Wohneinheiten mit ca. 50 m² und im Dachgeschoss sind 3 Wohneinheiten mit ca. 51 m².
KfW-Fördermöglichkeiten in Form von zinsgünstigen Darlehen gelten je Wohneinheit
Das Haus kann in verschiedenen Ausbaustufen (fastfertig+ oder schlüsselfertig) und Ausstattungslinien flexibel ausgebaut und ausgestattet werden. Gemäß den Wünschen der Bauherren/Bauträger kann das Haus als Effizienzhaus 40 oder 55 ausgeführt werden. Aufgrund der gewünschten Grundriss- und Dachkonstruktion sowie Effizienzhausstufe kann eine Ökobilanzierung KfWG oder eine Nachhaltigkeitszertifizierung (KFWG-Q) QNG-PLUS für den Klimafreundlicher Neubau (KFN) möglich sein. Unsere Bauberatungen informieren Sie gerne über die aktuellen Fördermöglichkeiten.
Stammdaten
Haustyp: 2,5-geschossiges Mehrfamilienhaus mit 9 Wohneinheiten
Dachform: Satteldach 38°, Kniestock 1,25 m
Hausmaße ohne Anbauteile: 20,28 m x 10,58 m
Netto-Raumfläche: 521,33 m²
Besonderheiten
-Optionale Gestaltung mit Zwerchgiebel, Gaube, Balkone
-3 Hauseinheiten mit jeweils 3 Wohnungen, ideal auch bei mehreren Investoren
-Haustechnik im Erdgeschoss jeder Hauseinheit
-Hauseinheiten werden mit der speziellen STREIF-Gebäudetrennwand realisiert
-Die Planung kann mit weiteren mittigen Hauseinheiten erweitert werden
* Abbildungen können Sonderausstattungen oder Anbauteile zeigen, die nicht im Angebot/Lieferumfang enthalten sind.

Ausbaustufe
4 Möglichkeiten – viel Flexibilität
STREIF bietet Ihnen vom Ausbauhaus bis zum schlüsselfertigen Haus vier Ausbaustufen zur Auswahl. Das bedeutet für Sie maximale Flexibilität, ob und wie viel Eigenleistung Sie erbringen möchten.
Mehr erfahrenAusstattung
Vom Draußen und Drinnen
In der Ausstattung bestimmen Sie die Details, die bei Ihrem Hausbau ausgeführt werden sollen. Das betrifft das äußere Erscheinungsbild Ihres Hauses, aber auch den Innenausbau.
Mehr erfahrenDiese Themen könnten Sie auch interessieren







Interesse?

Sie möchten zukünftig schöner Wohnen und zum Thema Hausbau gut informiert sein? Unsere Kataloge und Broschüren bieten eine Vielzahl an Hausentwürfen mit Grundrissen zur Inspiration und Ideenfindung. Sie geben aber auch eine Übersicht der Bauoptionen, der möglichen Ausstattungsvarianten und zeigen Trends sowie Innovationen aus Referenzhäusern.
In unseren Katalogen mit den verschiedenen Hausbaureihen
- Stadtvillen
- Einfamilienhäuser
- Bungalows
- Doppelhäuser und
- Mehrfamilienhäuser
erhalten Sie einen umfassenden Überblick über die Möglichkeiten des modernen Fertighausbaus - von der Architektur bis zu individuellen Grundrisslösungen.


