Ihr modernes zweigeschossiges Traum-Doppelhaus von STREIF
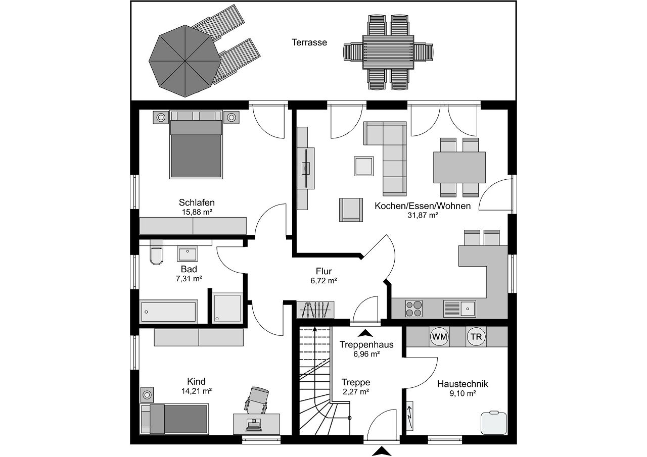
Der Hausentwurf zum Zweifamilienhaus CITY 190 HOME&GENERATION bietet aufgrund der großen Fensterelemente und Terrassentüren, die im Wohnbereich übereck angelegt sind, ein lichterfülltes Wohnambiente in beiden Wohnungen. Die Architektur ist die Interpretation einer modernen Stadtvilla. Durch mögliche Anbauteile, wie Übereckerker, Erker oder eine Haustürüberdachung, kann der Hausentwurf individualisiert werden.
Das schützende Dach ist als Walmdach ausgeführt. In der Grundrissgestaltung verfügen beide Wohnungen einen perfekten Raumzuschnitt und kurze Wege, das macht das Wohnen komfortabel. Der Haustechnikraum für beide Wohnungen befindet sich im Erdgeschoss. Je Wohnung ist ein großer Wohn-/Ess-/Kochbereich geplant. Ein Bad mit Wanne und Dusche ist praktisch zwischen dem Elternschlafbereich und dem Kinder-/Gäste-/Arbeitszimmer angelegt. Im Flur ist eine Nische für die Garderobe eingeplant. Der gezeigte Hausentwurf stellt eine Inspiration dar. Jedes STREIF-Haus wird individuell geplant und gebaut.
Dank der Holztafelbauweise überzeugt dieses Zweifamilienhaus nicht nur architektonisch, sondern auch durch Nachhaltigkeit, hervorragende Wärmedämmung und ein gesundes Raumklima – ein zukunftsweisendes Wohnkonzept mit hoher Lebensqualität.
Das Haus kann in verschiedenen Ausbaustufen (fastfertig+ oder schlüsselfertig) und Ausstattungslinien flexibel ausgebaut und ausgestattet werden. Gemäß den Wünschen der Bauherren/Bauträger kann das Haus als Effizienzhaus 40 oder 55 ausgeführt werden. Aufgrund der gewünschten Grundriss- und Dachkonstruktion sowie Effizienzhausstufe kann eine Ökobilanzierung KfWG oder eine Nachhaltigkeitszertifizierung (KFWG-Q) QNG-PLUS für den Klimafreundlicher Neubau (KFN) möglich sein. Unsere Bauberatungen informieren Sie gerne über die aktuellen Fördermöglichkeiten.
Ausbaustufe
4 Möglichkeiten – viel Flexibilität
STREIF bietet Ihnen vom Ausbauhaus bis zum schlüsselfertigen Haus vier Ausbaustufen zur Auswahl. Das bedeutet für Sie maximale Flexibilität, ob und wie viel Eigenleistung Sie erbringen möchten.
Mehr erfahrenAusstattung
Vom Draußen und Drinnen
In der Ausstattung bestimmen Sie die Details, die bei Ihrem Hausbau ausgeführt werden sollen. Das betrifft das äußere Erscheinungsbild Ihres Hauses, aber auch den Innenausbau.
Mehr erfahrenDiese Themen könnten Sie auch interessieren







Interesse?

Sie möchten zukünftig schöner Wohnen und zum Thema Hausbau gut informiert sein? Unsere Kataloge und Broschüren bieten eine Vielzahl an Hausentwürfen mit Grundrissen zur Inspiration und Ideenfindung. Sie geben aber auch eine Übersicht der Bauoptionen, der möglichen Ausstattungsvarianten und zeigen Trends sowie Innovationen aus Referenzhäusern.
In unseren Katalogen mit den verschiedenen Hausbaureihen
- Stadtvillen
- Einfamilienhäuser
- Bungalows
- Doppelhäuser und
- Mehrfamilienhäuser
erhalten Sie einen umfassenden Überblick über die Möglichkeiten des modernen Fertighausbaus - von der Architektur bis zu individuellen Grundrisslösungen.


