Bauhausvilla mit Carport und Dachterrasse auf 155 m²
Die Architektur und die Grundrissgestaltung der Bauhausvilla mit Carport und Dachterrasse
Die Architektur
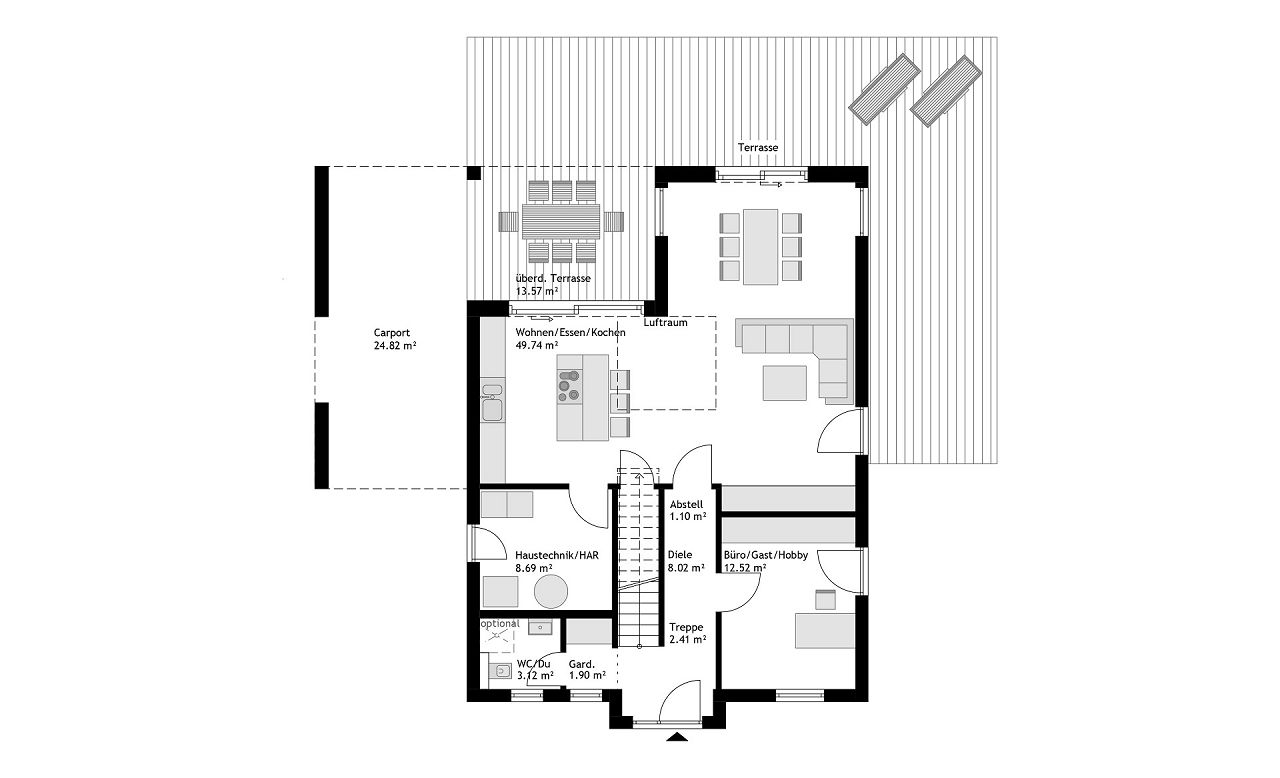
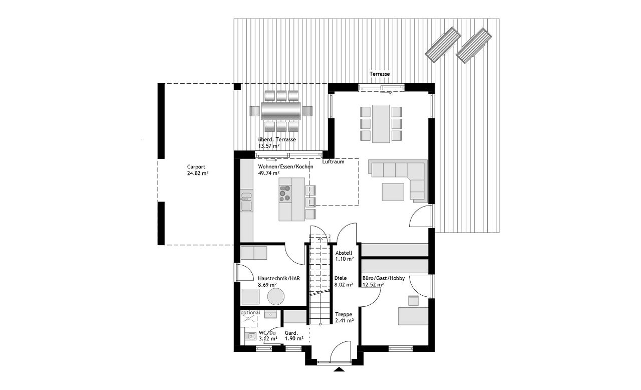
Die Architektur der Bauhausvilla zeichnet sich durch ihren puristischen Stil mit einem Flachdach aus. Ein 2-geschossiger kleiner Erker akzentuiert den Eingangsbereich an der Frontseite. Die Gartenseite präsentiert sich mit einer Wohnraumerweiterung mit überdachter Terrasse und einem sich anschließenden Carport. Im Obergeschoss kann eine 14,84 m²-große Dachterrasse realisiert werden.
Die Grundrissgestaltung
Die Grundrissgestaltung ist sehr gut durchdacht. Direkt neben dem Hauseingang links ist ein Garderobenbereich und WC mit optionaler Dusche geplant. Neben dem Eingang rechts befindet sich ein Zusatzraum, der als Büro-, Gäste- oder Hobbyraum genutzt werden könnte. Eine Diele und die geradläufige Treppe präsentieren sich vor dem großzügigen fast 50 m² großen Wohn-, Ess- und Kochbereich, der auch den Komfort einer Galerie bietet. Dieser wird von zwei Panorama-Hebeschiebetüren und 3 bodentiefen Fensterelementen vom Tageslicht erfüllt. Direkt an die Küche schließt der Haustechnik-/Hauswirtschaftsraum an, der über eine Terrassentür auch in den Garten führt. Im Obergeschoss befinden sich der Elternschlafbereich mit Ankleide und Bad in einer Raumfolge sowie zwei Kinderzimmer und ein Kinderbad. Der Flurbereich ist als Galerie ausgestaltet.
Die Highlights der Stadtvilla
- Wohnraumerweiterung Wohn-Essbereich mit überdachter Terrasse
- Wohn-, Ess- und Kochbereich auf knapp 50 m²
- Zusatzraum im EG Büro/Gast/Hobby
- Dusche im EG optional
- 2 Kinderzimmer mit Kinderbad
- Elternbereich mit Ankleide und Bad in einer Raumfolge
- Dachterrasse
Die Hausdaten
- 13,08 m x 9,33 m zzgl. externe Anbauteile
- Netto-Raumfläche ohne Anbauteile 155,19 m²

Ausbaustufe
4 Möglichkeiten – viel Flexibilität
STREIF bietet Ihnen vom Ausbauhaus bis zum schlüsselfertigen Haus vier Ausbaustufen zur Auswahl. Das bedeutet für Sie maximale Flexibilität, ob und wie viel Eigenleistung Sie erbringen möchten.
Mehr erfahrenAusstattung
Vom Draußen und Drinnen
In der Ausstattung bestimmen Sie die Details, die bei Ihrem Hausbau ausgeführt werden sollen. Das betrifft das äußere Erscheinungsbild Ihres Hauses, aber auch den Innenausbau.
Mehr erfahrenDiese Themen könnten Sie auch interessieren









Interesse?

Sie möchten zukünftig schöner Wohnen und zum Thema Hausbau gut informiert sein? Unsere Kataloge und Broschüren bieten eine Vielzahl an Hausentwürfen mit Grundrissen zur Inspiration und Ideenfindung. Sie geben aber auch eine Übersicht der Bauoptionen, der möglichen Ausstattungsvarianten und zeigen Trends sowie Innovationen aus Referenzhäusern.
In unseren Katalogen mit den verschiedenen Hausbaureihen
- Stadtvillen
- Einfamilienhäuser
- Bungalows
- Doppelhäuser und
- Mehrfamilienhäuser
erhalten Sie einen umfassenden Überblick über die Möglichkeiten des modernen Fertighausbaus - von der Architektur bis zu individuellen Grundrisslösungen.

