Modernes Stadthaus mit 159 m²
Die Architektur und Grundrissgestaltung auf 158 m² des modernen Stadthauses
Die Hausarchitektur des modernen Stadthauses
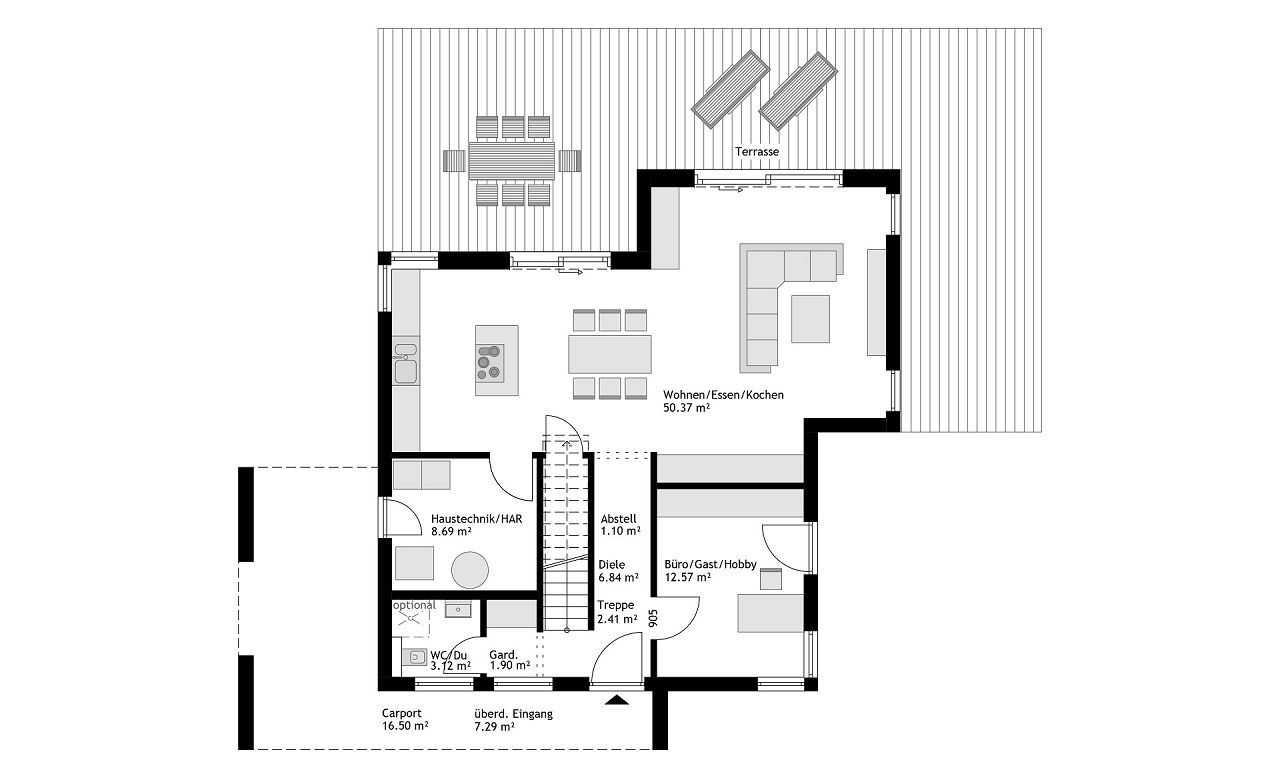
Das moderne Stadthaus wird durch einen Übereck-Erker und einen überdachten Hauseingang mit angeschlossenem Carport sowie Übereck-Fenstern akzentuiert. Das repräsentative Haus bietet auf einer Netto-Raumfläche von 159 m², neben dem offen gestalteten Wohnbereich, Platz für 4 weitere Räume und 2 Bäder. Im Erdgeschoss ist die Grundrissgestaltung mit einem großzügigen Wohn-/Ess- und Kochbereich angelegt.
Die Grundrissgestaltung des modernen Stadthauses mit 159 m²
Der Küchenbereich kann mit einer Kochinsel ausgestattet werden. Der gesamte Wohnbereich ist hell und lichtdurchflutet durch 2 große Panorama-Hebeschiebetüren, 2 Terrassentüren und 2 Fenstern. Neben dem Kochbereich befindet sich der praktische Hauswirtschafts-/Haustechnikraum. Das Erdgeschoss wird komplettiert durch einen Raum, der als Büro-/Gäste- oder Hobbyzimmer genutzt werden kann und ein optionales Duschbad. Das zukunftssichere Raumkonzept ermöglicht auch das Wohnen im Alter oder bei Krankheit auf einer Etage. Im Obergeschoss befinden sich der Elternschlafbereich mit separater Ankleide und Bad en suite sowie 2 schöne Kinderzimmer. Die abgebildeten Hausentwürfe sind Gestaltungsvorschläge. Eine Vielzahl von individuellen Anpassungen wie z. B. Hausgröße, Dachgeometrie, Fenstergrößen/ und -position sind möglich. Wir bauen Ihr Zuhause als Energieeffizienzhaus individuell nur für Sie. Fragen Sie Ihre persönliche STREIF-Bauberatung.
Die Highlights der Stadtvilla
- Übereck-Erker zur Erweiterung des Wohn-, Ess- und Kochbereiches
- Überdachter Hauseingang mit angrenzendem Carport
- Zusatzraum im EG Büro/Gast/Hobby
- Dusche im EG optional
- 2 Kinderzimmer
- Elternbereich mit Ankleide und Bad in einer Raumfolge
Die Hausdaten
- 11,08 m x 11,08 m zzgl. externe Anbauteile
- Netto-Raumfläche ohne Anbauteile 159,01 m²

Ausbaustufe
4 Möglichkeiten – viel Flexibilität
STREIF bietet Ihnen vom Ausbauhaus bis zum schlüsselfertigen Haus vier Ausbaustufen zur Auswahl. Das bedeutet für Sie maximale Flexibilität, ob und wie viel Eigenleistung Sie erbringen möchten.
Mehr erfahrenAusstattung
Vom Draußen und Drinnen
In der Ausstattung bestimmen Sie die Details, die bei Ihrem Hausbau ausgeführt werden sollen. Das betrifft das äußere Erscheinungsbild Ihres Hauses, aber auch den Innenausbau.
Mehr erfahrenDiese Themen könnten Sie auch interessieren









Interesse?

Sie möchten zukünftig schöner Wohnen und zum Thema Hausbau gut informiert sein? Unsere Kataloge und Broschüren bieten eine Vielzahl an Hausentwürfen mit Grundrissen zur Inspiration und Ideenfindung. Sie geben aber auch eine Übersicht der Bauoptionen, der möglichen Ausstattungsvarianten und zeigen Trends sowie Innovationen aus Referenzhäusern.
In unseren Katalogen mit den verschiedenen Hausbaureihen
- Stadtvillen
- Einfamilienhäuser
- Bungalows
- Doppelhäuser und
- Mehrfamilienhäuser
erhalten Sie einen umfassenden Überblick über die Möglichkeiten des modernen Fertighausbaus - von der Architektur bis zu individuellen Grundrisslösungen.

