Stadthaus mit Carport: Stilvolles Wohnen und individuelle Gestaltung
Die Architektur und die Grundrissgestaltung auf 167 m² des Stadthauses
Dir Architektur des Stadthauses mit Carport
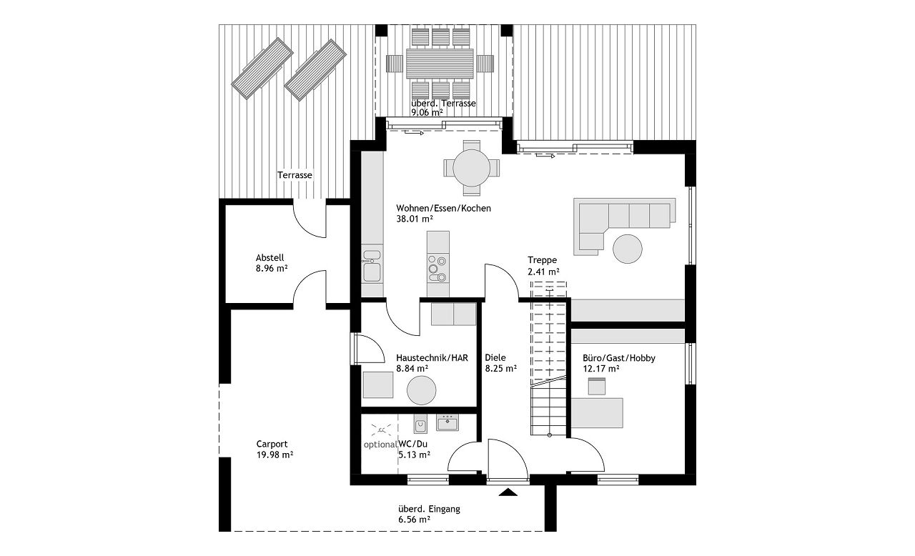
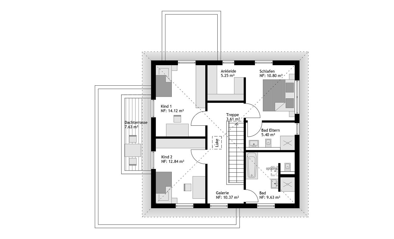
Die Architektur des Stadthauses bietet auf einer kompakten Grundfläche zahlreiche Highlights. Der repräsentative Wohn-/Ess- und Kochbereich wird durch eine Wohnraumerweiterung ergänzt und ist mit einem überdachten Terrassenbereich ausgestattet. Die Überdachung ist nicht nur optisch eine Aufwertung des Gebäudes, sie bietet den Bewohnern Schutz bei jeder Wetterlage. Das Carport schmiegt sich fließend ans Gebäude an und bildet mit der Haustürüberdachung eine Symbiose. Im hinteren Bereich des Carports ist noch eine Abstellfläche für Gartengeräte oder Fahrräder eingeplant. Ein weiteres Highlight ist die auf dem Carport aufgesetzte Dachterrasse, die von zwei Schlafräumen betreten werden kann.
Die Grundrissgestaltung des Stadthauses
In der Grundrissgestaltung ist ein großzügiger Wohn-, Ess- und Kochbereich, der über zwei große Panorama-Hebeschiebetüren den ganzen Raum zum Garten öffnet das Herzstück. Ein Hauswirtschafts-/Haustechnikraum schließt sich direkt an der Küche an. Das Erdgeschoss wird komplettiert durch ein Schlaf-/Arbeits-/Gästezimmer und ein Duschbad. Somit ist auch das Wohnen im Bedarfsfall auf einer Etage möglich. Im Obergeschoss befinden sich zwei weitere Schlafzimmer mit Zugang zur Dachterrasse, ein Schlafzimmer mit separater Ankleide und ein geräumiges Familienbad. Die abgebildeten Hausentwürfe sind Gestaltungsvorschläge. Eine Vielzahl von individuellen Anpassungen wie z. B. Hausgröße, Dachgeometrien, Fenstergrößen-/positionierungen sind möglich. Wir bauen Ihr Zuhause als Energieeffizienzhaus individuell nur für Sie. Fragen Sie Ihre persönliche STREIF-Bauberatung.
Die Highlights der Stadtvilla
- Überdachter Terrassenbereich mit Wohnraumerweiterung
- Überdachter Hauseingangsbereich mit optionalem Carport und Dachterrasse
- 38 m²-großer Wohn-, Ess-, Kochbereich mit zwei Panorama-Hebeschiebetüren
- Zusatzraum Büro/Gast/Hobby im EG
- Bad im EG, optional mit Dusche
- 2 Kinderzimmer im OG
- Elternbereich mit Bad und Ankleide in einer Raumfolge
- OG optional mit zweitem Duschbad planbar
Die Hausdaten
- Hausmaße 9,95 m m x 9,33 m zzgl. externe Anbauteile
- Netto-Raumfläche ohne Anbauteile 166,71 m²

Ausbaustufe
4 Möglichkeiten – viel Flexibilität
STREIF bietet Ihnen vom Ausbauhaus bis zum schlüsselfertigen Haus vier Ausbaustufen zur Auswahl. Das bedeutet für Sie maximale Flexibilität, ob und wie viel Eigenleistung Sie erbringen möchten.
Mehr erfahrenAusstattung
Vom Draußen und Drinnen
In der Ausstattung bestimmen Sie die Details, die bei Ihrem Hausbau ausgeführt werden sollen. Das betrifft das äußere Erscheinungsbild Ihres Hauses, aber auch den Innenausbau.
Mehr erfahrenDiese Themen könnten Sie auch interessieren









Interesse?

Sie möchten zukünftig schöner Wohnen und zum Thema Hausbau gut informiert sein? Unsere Kataloge und Broschüren bieten eine Vielzahl an Hausentwürfen mit Grundrissen zur Inspiration und Ideenfindung. Sie geben aber auch eine Übersicht der Bauoptionen, der möglichen Ausstattungsvarianten und zeigen Trends sowie Innovationen aus Referenzhäusern.
In unseren Katalogen mit den verschiedenen Hausbaureihen
- Stadtvillen
- Einfamilienhäuser
- Bungalows
- Doppelhäuser und
- Mehrfamilienhäuser
erhalten Sie einen umfassenden Überblick über die Möglichkeiten des modernen Fertighausbaus - von der Architektur bis zu individuellen Grundrisslösungen.

