Exklusive STREIF-Villa 01 mit Panoramafenster: Zum Aktionspreis

Ein Traumhaus mit Traumausblicken. Sie können aus 3 verschiedenen Grundrissgrößen 150 m² / 170 m² / 190 m² wählen. Individuelle Anpassungen sind zusätzlich möglich.
Hier geht es zur Übersicht unserer Aktionshäuser.
*Der genannte Aktionspreis gilt beim Effizienzhausstandard 40, bei Hausgröße 150 m² und in der Ausstattungslinie Premiumline; Ausbaustufe fastfertig+. 

Ein Traumhaus mit Traumausblicken. Sie können aus 3 verschiedenen Grundrissgrößen 150 m² / 170 m² / 190 m² wählen. Individuelle Anpassungen sind zusätzlich möglich.
Die exklusive STREIF-Villa 01 bietet in der Architektur ein imposantes 2-geschossiges Panoramafenster (Glasfront) an der Gartenseite. Weitere wichtige Eigenschaften sind ein Flachdach und ein kubistischer Gebäudekörper.
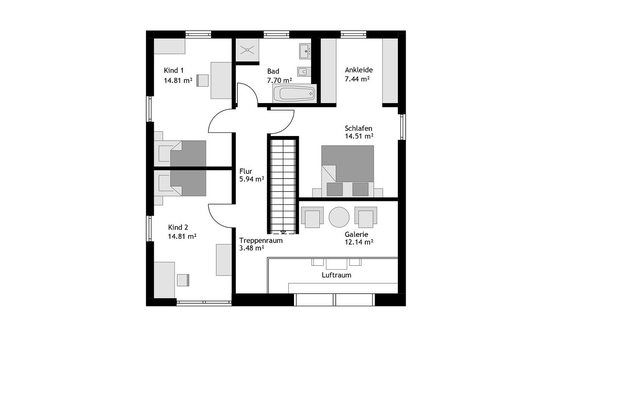
Die Grundrissgestaltung ist klug durchdacht. Ein besonderes Wohn- und Raumgefühl bietet das imposante Panoramafenster (G, das sich über beide Etagen erstreckt. Dreh- und Angelpunkt der Grundrissgestaltung ist die mittig platzierte Treppe, die den Wohn- und Essbereich zum Teil zum Kochbereich strukturiert. Pure Lebensfreude bietet das Wohnen, Essen und Kochen auf lichterfüllten 45 m². Eine praktische Speisekammer ist direkt neben der Küche angelegt. In einer separaten Garderobennische verschwinden Jacken und Schuhe. Der Wohnbereich bietet viel Platz und zusätzlich zwei Terrassentüren. Der Raum ist so konzipiert, dass bei Bedarf hier auch noch eine Wand eingefügt werden könnte. Ein Bad und ein Haustechnik-/Hauswirtschaftsraum komplettieren das Erdgeschoss. Im Obergeschoss der STREIF-Villa 1 mit Flachdach sind zwei exakt gleich große Kinderzimmer, ein Familienbad und der Elternbereich mit einer Ankleide. Das Highlight im Obergeschoss ist die Galerie, die über die Glasfront einen herrlichen Blick ins Freie gewährt. Die 10 m²-große Galerie kann als Homeofficebereich, Spiel-, Lese- oder Erholungsbereich genutzt werden.
Die Grundrissgestaltung gibt es in 3 Versionen mit Grundrissgrößen von 150 m² / 170 m² / 190 m². Der hier dargestellte Grundriss gehört zur Variante XL mit 170 m².
Die Grundrisse sind Gestaltungsideen und können individualisiert werden. Eine Ökobilanzierung oder Nachhaltigkeitszertifizierung nach QNG kann gegen Aufpreis angeboten werden.
Die Hausdaten
Exklusive 2-geschossige STREIF-Villa mit Flachdach und 2-geschossigem Panoramafenster
Netto-Raumflächen: 
Variante L     = 150,23 m²
Variante XL   = 169,62 m²
Variante XXL = 190,29 m²
Außenmaße: 9,95 m x 10,58 m bei Größe XL
Abbildungen können Sonderausstattungen oder Anbauteile (z. B. Carport) zeigen, die nicht im Lieferumfang/Angebot enthalten sind. 
Die Highlights 
- Bauhausarchitektur mit Flachdach
- 2-geschossiges Ponoramafenster mit Sonnenschutzverglasung 
- Speisekammer direkt neben der Küche
- Galerie im Obergeschoss
TIPP: Flexibles Raumkonzept mit Zukunft
Eine optionale Wand könnte bei Bedarf den großen Wohn-/Essbereich teilen. So würde eine separate Raumnutzung möglich. Z. B. für ein Heimkino. Sie könnten auch in der Zukunft bei Krankheit oder im Alter nachträglich eine Trockenbauwand einsetzen, um einen separaten Schlafbereich zu realisieren. So haben Sie die Option, die das Wohnen auf einer Etage möglich macht.

Ausbaustufe
4 Möglichkeiten – viel Flexibilität
STREIF bietet Ihnen vom Ausbauhaus bis zum schlüsselfertigen Haus vier Ausbaustufen zur Auswahl. Das bedeutet für Sie maximale Flexibilität, ob und wie viel Eigenleistung Sie erbringen möchten.
Mehr erfahrenAusstattung
Vom Draußen und Drinnen
In der Ausstattung bestimmen Sie die Details, die bei Ihrem Hausbau ausgeführt werden sollen. Das betrifft das äußere Erscheinungsbild Ihres Hauses, aber auch den Innenausbau.
Mehr erfahrenDiese Themen könnten Sie auch interessieren








Interesse?

Sie möchten zukünftig schöner Wohnen und zum Thema Hausbau gut informiert sein? Unsere Kataloge und Broschüren bieten eine Vielzahl an Hausentwürfen mit Grundrissen zur Inspiration und Ideenfindung. Sie geben aber auch eine Übersicht der Bauoptionen, der möglichen Ausstattungsvarianten und zeigen Trends sowie Innovationen aus Referenzhäusern.
In unseren Katalogen mit den verschiedenen Hausbaureihen
- Stadtvillen
- Einfamilienhäuser
- Bungalows
- Doppelhäuser und
- Mehrfamilienhäuser
erhalten Sie einen umfassenden Überblick über die Möglichkeiten des modernen Fertighausbaus - von der Architektur bis zu individuellen Grundrisslösungen.
 


