Exklusive STREIF-Villa 01 mit 2-geschossigem Panoramafenster, 190 qm
Ein Traumhaus mit Traumausblicken. Sie können aus 3 verschiedenen Grundrissgrößen 150 m² / 170 m² / 190 m² wählen. Individuelle Anpassungen sind zusätzlich möglich.
Die Hausarchitektur
Die exklusive STREIF-Villa 01 bietet in der Architektur ein imposantes 2-geschossiges Panoramafenster (Glasfront) an der Gartenseite. Weitere wichtige Eigenschaften sind ein Flachdach und ein kubistischer Gebäudekörper.
Die Grundrissgestaltung ist klug durchdacht. Ein besonderes Wohn- und Raumgefühl bietet das imposante Panoramafenster (Glasfront), das sich über beide Etagen erstreckt. Dreh- und Angelpunkt der Grundrissgestaltung ist die mittig platzierte Treppe, die den Wohn- und Essbereich zum Teil zum Kochbereich strukturiert. Pure Lebensfreude bietet das Wohnen, Essen und Kochen auf lichterfüllten 66 m². Eine praktische Speisekammer ist direkt neben der Küche angelegt. In einer separaten Garderobennische verschwinden Jacken und Schuhe. Der Wohnbereich bietet viel Platz und zusätzlich zwei Terrassentüren. Der Raum ist so konzipiert, dass bei Bedarf hier auch noch eine Wand eingefügt werden könnte. Ein Bad und ein Haustechnik-/Hauswirtschaftsraum komplettieren das Erdgeschoss. Im Obergeschoss der STREIF-Villa 1 mit Flachdach sind zwei exakt gleich große Kinderzimmer, ein Familienbad und der Elternbereich mit einer Ankleide. Das Highlight im Obergeschoss ist die Galerie, die über die Glasfront einen herrlichen Blick ins Freie gewährt. Die 15 m²-große Galerie kann als Homeofficebereich, Spiel-, Lese- oder Erholungsbereich genutzt werden.
Der hier dargestellte Grundriss gehört zur Variante XXL mit 190 m².
Die Hausdaten
Exklusive 2-geschossige STREIF-Villa mit Flachdach und 2-geschossigem Panoramafenster
Netto-Raumflächen:
Variante L = 150,23 m²
Variante XL = 169,62 m²
Variante XXL = 190,29 m²
Außenmaße: 10,58 m x 11,205 m bei Größe XXL
Die Highlights
- Bauhausarchitektur mit Flachdach
- 2-geschossiges Ponoramafenster mit Sonnenschutzverglasung
- Speisekammer direkt neben der Küche
- Galerie im Obergeschoss
TIPP: Flexibles Raumkonzept mit Zukunft
Eine optionale Wand könnte bei Bedarf den großen Wohn-/Essbereich teilen. So würde eine separate Raumnutzung möglich. Z. B. für ein Heimkino. Sie könnten auch in der Zukunft bei Krankheit oder im Alter nachträglich eine Trockenbauwand einsetzen, um einen separaten Schlafbereich zu realisieren. So haben Sie die Option, die das Wohnen auf einer Etage möglich macht.
Hier geht es zur Übersicht unserer Aktionshäuser.
Die exklusive STREIF-Villa 01 bietet in der Architektur ein imposantes 2-geschossiges Panoramafenster (Glasfront) an der Gartenseite. Weitere wichtige Eigenschaften sind ein Flachdach und ein kubistischer Gebäudekörper.
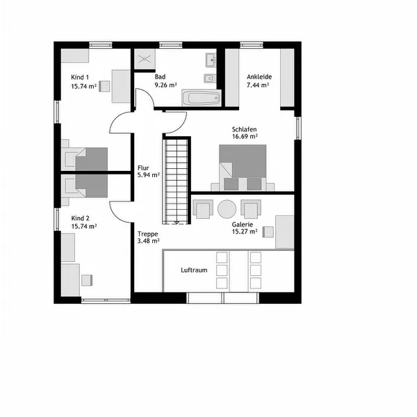
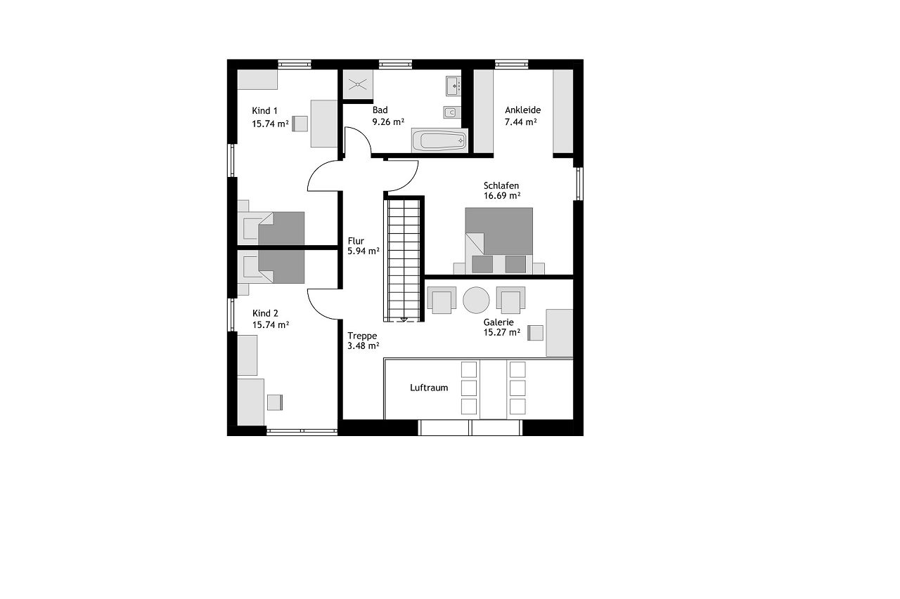
Die Grundrissgestaltung ist klug durchdacht. Ein besonderes Wohn- und Raumgefühl bietet das imposante Panoramafenster (Glasfront), das sich über beide Etagen erstreckt. Dreh- und Angelpunkt der Grundrissgestaltung ist die mittig platzierte Treppe, die den Wohn- und Essbereich zum Teil zum Kochbereich strukturiert. Pure Lebensfreude bietet das Wohnen, Essen und Kochen auf lichterfüllten 66 m². Eine praktische Speisekammer ist direkt neben der Küche angelegt. In einer separaten Garderobennische verschwinden Jacken und Schuhe. Der Wohnbereich bietet viel Platz und zusätzlich zwei Terrassentüren. Der Raum ist so konzipiert, dass bei Bedarf hier auch noch eine Wand eingefügt werden könnte. Ein Bad und ein Haustechnik-/Hauswirtschaftsraum komplettieren das Erdgeschoss. Im Obergeschoss der STREIF-Villa 1 mit Flachdach sind zwei exakt gleich große Kinderzimmer, ein Familienbad und der Elternbereich mit einer Ankleide. Das Highlight im Obergeschoss ist die Galerie, die über die Glasfront einen herrlichen Blick ins Freie gewährt. Die 15 m²-große Galerie kann als Homeofficebereich, Spiel-, Lese- oder Erholungsbereich genutzt werden.
Der hier dargestellte Grundriss gehört zur Variante XXL mit 190 m².
Exklusive 2-geschossige STREIF-Villa mit Flachdach und 2-geschossigem Panoramafenster
Netto-Raumflächen:
Variante L = 150,23 m²
Variante XL = 169,62 m²
Variante XXL = 190,29 m²
Außenmaße: 10,58 m x 11,205 m bei Größe XXL
Die Highlights
- Bauhausarchitektur mit Flachdach
- 2-geschossiges Ponoramafenster mit Sonnenschutzverglasung
- Speisekammer direkt neben der Küche
- Galerie im Obergeschoss
TIPP: Flexibles Raumkonzept mit Zukunft
Eine optionale Wand könnte bei Bedarf den großen Wohn-/Essbereich teilen. So würde eine separate Raumnutzung möglich. Z. B. für ein Heimkino. Sie könnten auch in der Zukunft bei Krankheit oder im Alter nachträglich eine Trockenbauwand einsetzen, um einen separaten Schlafbereich zu realisieren. So haben Sie die Option, die das Wohnen auf einer Etage möglich macht.
Folgende STREIF-Leistungen sind bei den Hauspreisen für die Herzenshäuser bei Ausbaustufe fastfertig+ in der STREIF-Standard-Ausstattungslinie PREMIUMLINE enthalten:
- Inklusive gedämmter Fundamentplatte
- Inklusive STREIF-Luft-Luft-Wärmepumpen-Technologie mit integrierter Lüftungsanlage und Wärmerückgewinnung
- Inklusive hochwertiger Holzhaustür von KERA-Tür
- Inklusive 3-fach-wärmeschutzverglaste Fenster von Porta/Kömmerling
- Inklusive Treppe aus eigener Produktion
- Inklusive gefliestem Bad mit Sanitärobjekten von Markenherstellern in Bad und WC
- Inklusive frostsichere Außenzapfstelle
- Inklusive Elektroinstallation u. v. m.
- Inklusive Vorbereitung zur Installation einer Photovoltaikanlage
- Individuelle Grundrissgestaltung und Raumaufteilung möglich
STREIF-Energiespar-Häuser sind für die Effizienzhausklasse 40 vorbereitet. Eine Ökobilanzierung oder Nachhaltigkeitszertifizierung nach QNG kann, bei den Ausbaustufen fast fertig plus und schlüsselfertig mit Kombination der Ausstattungslinie PREMIUM- oder QUEENSLINE gegen Aufpreis angeboten werden. Unsere Bauberatungen informieren Sie gerne über die aktuellen KfW-Fördermöglichkeiten.
Die Grundrisse sind Gestaltungsideen und können individualisiert werden. In Abhängigkeit von Gebäudestandort,Gebäudeausrichtung,Fensterflächenanteilen, Haustechnik, örtlich geltenden baulichen Vorschriften usw. können zusätzliche oder abweichende Leistungen bzw. die Anpassung der Grundrisse erforderlich werden, die im Zuge der Bauantragsbewertung/-erstellung bewertet werden. Alle Angaben sind Circa-Werte. Abbildungen können Sonderausstattungen oder Anbauteile zeigen, die nicht im Lieferumfang/ Angebot enthalten sind.
Sie träumen von einer Klinker- oder Holzfassade? Auch diese Wünsche besprechen wir gerne mit Ihnen.
Für unsere Herzenshäuser bieten wir eine Speed-Lieferung in 8 Monaten an. Auf Wunsch wird ein Terminplan mit Baubeginn innerhalb von 8 Monaten vereinbart. Dabei werden kundenseitig und von STREIF einzuhaltende Maximaltermine definiert.
Die hohe Wertigkeit und Langlebigkeit eines STREIF-Energiespar-Hauses wird durch zahlreiche Auszeichnungen, Qualitäts- und Gütesiegel unabhängiger Institute und Verbände dokumentiert.

Grundriss Erdgeschoss der exklusiven STREIF-Villa 01 in der Größe XXL
Grundriss Obergeschoss der exklusiven STREIF-Villa 01 in der Größe XXLAusbaustufe
4 Möglichkeiten – viel Flexibilität
STREIF bietet Ihnen vom Ausbauhaus bis zum schlüsselfertigen Haus vier Ausbaustufen zur Auswahl. Das bedeutet für Sie maximale Flexibilität, ob und wie viel Eigenleistung Sie erbringen möchten.
Mehr erfahrenAusstattung
Vom Draußen und Drinnen
In der Ausstattung bestimmen Sie die Details, die bei Ihrem Hausbau ausgeführt werden sollen. Das betrifft das äußere Erscheinungsbild Ihres Hauses, aber auch den Innenausbau.
Mehr erfahrenDiese Themen könnten Sie auch interessieren









Interesse?

Sie möchten zukünftig schöner Wohnen und zum Thema Hausbau gut informiert sein? Unsere Kataloge und Broschüren bieten eine Vielzahl an Hausentwürfen mit Grundrissen zur Inspiration und Ideenfindung. Sie geben aber auch eine Übersicht der Bauoptionen, der möglichen Ausstattungsvarianten und zeigen Trends sowie Innovationen aus Referenzhäusern.
In unseren Katalogen mit den verschiedenen Hausbaureihen
- Stadtvillen
- Einfamilienhäuser
- Bungalows
- Doppelhäuser und
- Mehrfamilienhäuser
erhalten Sie einen umfassenden Überblick über die Möglichkeiten des modernen Fertighausbaus - von der Architektur bis zu individuellen Grundrisslösungen.