Exklusive STREIF-Villa 02 mit Flachdach, Erker mit imposanter Glasfront
Das Highlight der Bauhausvilla ist das imposante Panoramafenster, das sich über beide Geschosse erstreckt und auch im Obergeschoss den Blick von einer herrlichen Galerie ins Freie öffnet. Ein Raumgefühl, das großartig ist.
Die Architektur
Die exklusive STREIF-Villa 2 bietet neben der Bauhausarchitektur einen Erker mit einer beeindruckenden Glasfront. Der repräsentative Wohn-/Ess- und Kochbereich wird mit 59 m² zu Ihrer persönlichen “Hall of Fame“ werden. Das 2-geschossige durchgängige Panoramafenster öffnet das Obergeschoss mit einer eleganten Galerie. Die Glasfront ist in einem Erker platziert, so dass sich hier ein beeindruckendes Ambiente für Ihren zukünftigen Essbereich ergibt und natürlich auch vom Wohnbereich eine Blickachse zur Terrasse und in den Garten.
Die Grundrissgestaltung
Der große Kochbereich ist so angelegt, dass er vom Wohnbereich nicht einzusehen ist. Eine Speisekammer macht sich direkt neben der Küche nützlich. Die geradläufige Treppe ist mittig platziert und gibt dem großen Raum eine Struktur. Ein Hauswirtschafts-/Haustechnikraum und ein optionales Duschbad vervollständigen das Raumangebot im Erdgeschoss.
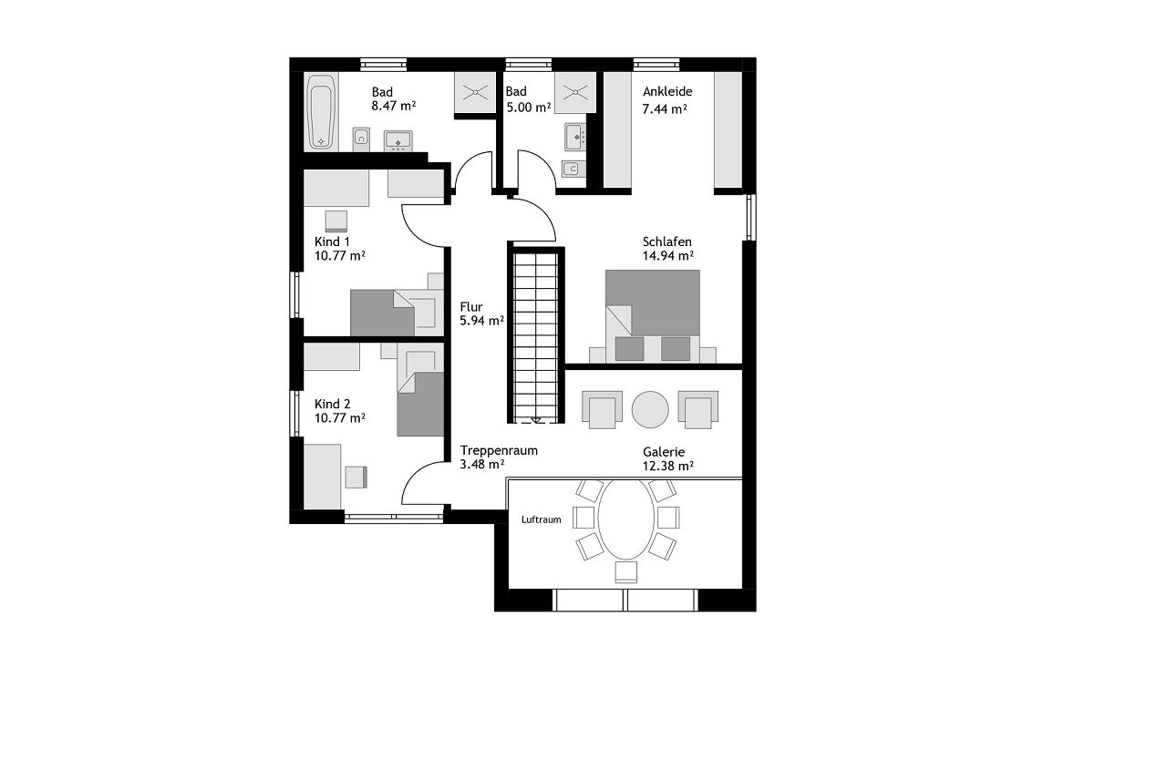
Der Wohnbereich ist so geplant, dass auch eine optionale Wand platziert werden kann, die hier den Raum noch einmal unterteilt. Z. B. für ein separates Fernsehzimmer, ein Gästezimmer oder für ein Schlafzimmer, damit das Wohnen auf einer Etage möglich ist. Das Obergeschoss der exklusiven Villa ist mit einem Elternbereich mit Bad und Ankleide in einer Raumfolge geplant. Weiteren Komfort bietet das Kinderbad bei zwei Kinderzimmern. Ein weiteres Highlight ist der Blick aus der Galerie im Obergeschoss zur Glasfront hin. Die Galerie bietet auf 10 m² Platz für ein Homeoffice/Hobbybereich oder eine Leseecke.
Diese Grundrissgestaltung gibt es in 3 Versionen mit Grundrissgrößen von 157 m² / 172 m² / 184 m². Der hier dargestellte Grundriss gehört zur Variante XL mit 172 m².
Die Grundrisse sind Gestaltungsideen und können individualisiert werden. Eine Ökobilanzierung oder Nachhaltigkeitszertifizierung nach QNG kann gegen Aufpreis angeboten werden.
Die Hausdaten
Exklusive 2-geschossige STREIF-Villa mit Flachdach
Erker mit einem 2-geschossigem Panoramafenster
Netto-Raumflächen:
Variante L = 156,78 m²
Variante XL = 171,75 m²
Variante XXL = 183,61 m²
Außenmaße: 9,95 m x 11,83 m bei Größe XL
Abbildungen können Sonderausstattungen oder Anbauteile (z. B. Carport) zeigen, die nicht im Lieferumfang/Angebot enthalten sind.
Die Highlights
- Bauhausarchitektur mit Flachdach
- Erker mit einem 2-geschossigen Ponoramafenster (Panoramafenster mit Sonnenschutzverglasung)
- Speisekammer direkt neben der Küche
- Galerie im Obergeschoss
- 2 Bäder im Obergeschoss
TIPP: Raumkonzept mit Zukunft
Eine optionale Wand könnte bei Bedarf den großen Wohn-/Essbereich teilen. So würde eine separate Raumnutzung möglich. Z. B. für ein Heimkino. Sie könnten auch in der Zukunft bei Krankheit oder im Alter nachträglich eine Trockenbauwand einsetzen, um einen separaten Schlafbereich zu realisieren. So haben Sie die Option, die das Wohnen auf einer Etage möglich macht.

Ausbaustufe
4 Möglichkeiten – viel Flexibilität
STREIF bietet Ihnen vom Ausbauhaus bis zum schlüsselfertigen Haus vier Ausbaustufen zur Auswahl. Das bedeutet für Sie maximale Flexibilität, ob und wie viel Eigenleistung Sie erbringen möchten.
Mehr erfahrenAusstattung
Vom Draußen und Drinnen
In der Ausstattung bestimmen Sie die Details, die bei Ihrem Hausbau ausgeführt werden sollen. Das betrifft das äußere Erscheinungsbild Ihres Hauses, aber auch den Innenausbau.
Mehr erfahrenDiese Themen könnten Sie auch interessieren









Interesse?

Sie möchten zukünftig schöner Wohnen und zum Thema Hausbau gut informiert sein? Unsere Kataloge und Broschüren bieten eine Vielzahl an Hausentwürfen mit Grundrissen zur Inspiration und Ideenfindung. Sie geben aber auch eine Übersicht der Bauoptionen, der möglichen Ausstattungsvarianten und zeigen Trends sowie Innovationen aus Referenzhäusern.
In unseren Katalogen mit den verschiedenen Hausbaureihen
- Stadtvillen
- Einfamilienhäuser
- Bungalows
- Doppelhäuser und
- Mehrfamilienhäuser
erhalten Sie einen umfassenden Überblick über die Möglichkeiten des modernen Fertighausbaus - von der Architektur bis zu individuellen Grundrisslösungen.

