Exklusive STREIF-Villa 03 mit Glasfront, Erker und Dachterrasse
Ein unbeschreiblich großartiges Raumgefühl bietet die exklusive STREIF-Villa 03. Eine schicke Dachterrasse und 3 Grundrissgrößen bringen zusätzlich Flexibilität.
Die Architektur
Der Entwurf der exklusiven STREIF-Villa 03 punktet mit einem Erker mit Flachdach, einem 2-geschossigen Panoramafenster, einer Galerie und einer Dachterrasse. Die imposante Glasfront und die bodentiefen, doppelflügeligen Fenster an der Gartenseite prägen den Bauhausstil der Flachdachvilla.
Zur STREIF-Villa 03 gibt es Grundrissvarianten in den Größen L, XL und XXL. 
Die Grundrissgestaltung
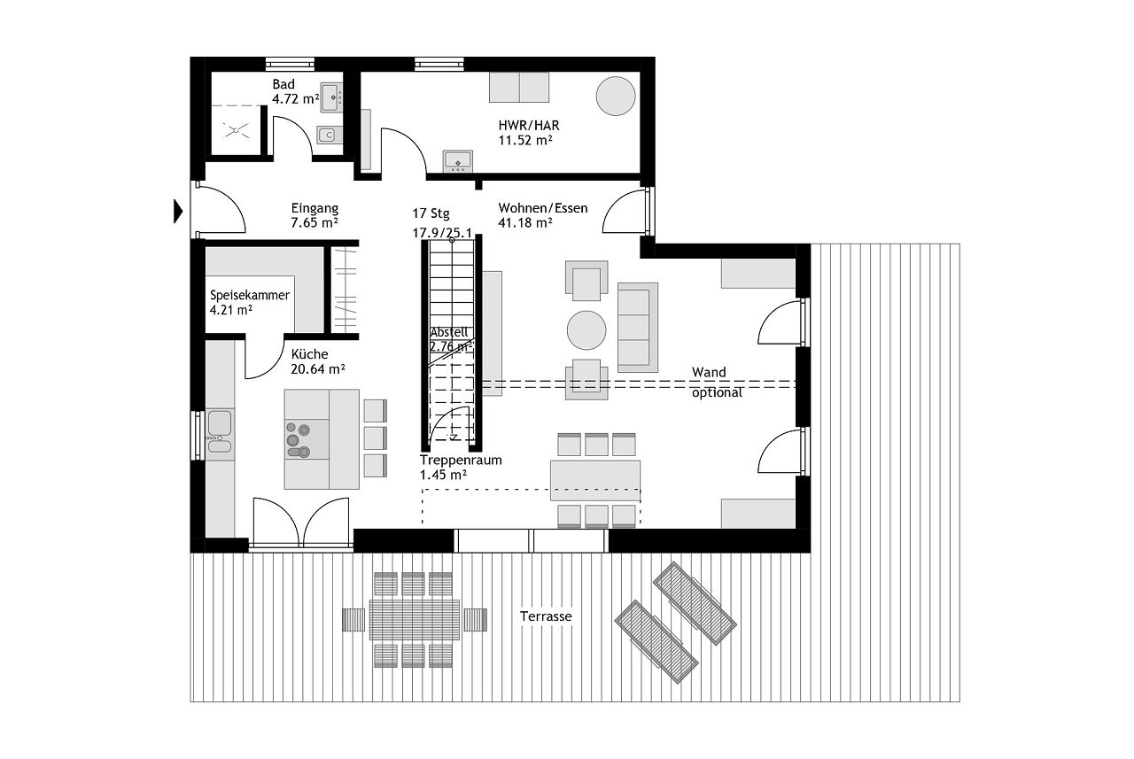
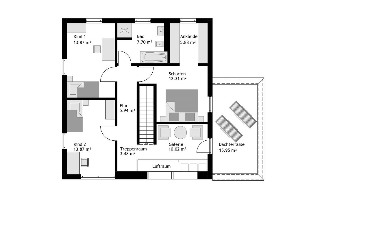
Der Entwurf in Größe XL bietet einen 62 m² großen Wohn-/Ess- und Kochbereich, der nahezu alle Wohnwünsche erfüllt. Die Grundrissplanung kann außerdem noch individualisiert werden. Bemerkenswert ist das großartige Raumgefühl, welches sich mit der Galerie und der Glasfront noch einmal verstärkt. Hier wird das Leben zum Vergnügen, kann das Drinnen mit dem Draußen ineinanderfließen. Auch beim Kochen genießen Sie den herrlichen Blick ins Freie und haben viel Platz für eine Küche mit Kochtheke. Eine Speisekammer, ein optionales Duschbad und der Haustechnik-/Hauswirtschaftsraum komplettieren das Raumangebot im Erdgeschoss. Im Obergeschoss bietet sich ein Zugang zur Dachterrasse von der Galerie aus, die zum Relaxen einlädt. Zwei Kinderzimmer, der Elternbereich mit Ankleide und ein schönes Familienbad machen das Raumangebot komplett.
Diese Grundrissgestaltung gibt es in 3 Versionen mit Grundrissgrößen von 176 m² / 183 m² / 200 m². Der hier dargestellte Grundriss gehört zur Variante XL mit 183 m².
Die Grundrisse sind Gestaltungsideen und können individualisiert werden. Eine Ökobilanzierung oder Nachhaltigkeitszertifizierung nach QNG kann gegen Aufpreis angeboten werden.
Die Hausdaten
Exklusive 2-geschossige STREIF-Villa mit Flachdach 
Erker mit einem 2-geschossigem Panoramafenster
Netto-Raumflächen: 
Variante L     = 176,23 m²
Variante XL   = 183,15 m²
Variante XXL = 200,25 m²
Außenmaße: 12,455 m x 9,95 mm bei Größe XL
Abbildungen können Sonderausstattungen oder Anbauteile (z. B. Carport) zeigen, die nicht im Lieferumfang/Angebot enthalten sind. 
Die Highlights 
- Bauhausarchitektur mit Flachdach
- 2-geschossiges Panoramafenster mit Sonnenschutzverglasung
- 1-geschossiger Erker mit einer Dachterrasse
- Speisekammer direkt neben der Küche
- Galerie im Obergeschoss
TIPP: Raumkonzept mit Zukunft
Eine optionale Wand könnte bei Bedarf den großen Wohn-/Essbereich teilen. So würde eine separate Raumnutzung möglich. Z. B. für ein Heimkino. Sie könnten auch in der Zukunft bei Krankheit oder im Alter nachträglich eine Trockenbauwand einsetzen, um einen separaten Schlafbereich zu realisieren. So haben Sie die Option, die das Wohnen auf einer Etage möglich macht.

Ausbaustufe
4 Möglichkeiten – viel Flexibilität
STREIF bietet Ihnen vom Ausbauhaus bis zum schlüsselfertigen Haus vier Ausbaustufen zur Auswahl. Das bedeutet für Sie maximale Flexibilität, ob und wie viel Eigenleistung Sie erbringen möchten.
Mehr erfahrenAusstattung
Vom Draußen und Drinnen
In der Ausstattung bestimmen Sie die Details, die bei Ihrem Hausbau ausgeführt werden sollen. Das betrifft das äußere Erscheinungsbild Ihres Hauses, aber auch den Innenausbau.
Mehr erfahrenDiese Themen könnten Sie auch interessieren








Interesse?

Sie möchten zukünftig schöner Wohnen und zum Thema Hausbau gut informiert sein? Unsere Kataloge und Broschüren bieten eine Vielzahl an Hausentwürfen mit Grundrissen zur Inspiration und Ideenfindung. Sie geben aber auch eine Übersicht der Bauoptionen, der möglichen Ausstattungsvarianten und zeigen Trends sowie Innovationen aus Referenzhäusern.
In unseren Katalogen mit den verschiedenen Hausbaureihen
- Stadtvillen
- Einfamilienhäuser
- Bungalows
- Doppelhäuser und
- Mehrfamilienhäuser
erhalten Sie einen umfassenden Überblick über die Möglichkeiten des modernen Fertighausbaus - von der Architektur bis zu individuellen Grundrisslösungen.
 


