Moderne, exklusive STREIF-Villa 08 im Bauhausstil
Luxuriöses und energieeffizientes Wohnen auf 193 m². Dieser repräsentative Hausentwurf lässt das Herz von Bauhausstil-Begeisterten höher schlagen. Nach Hause kommen und wohl fühlen.
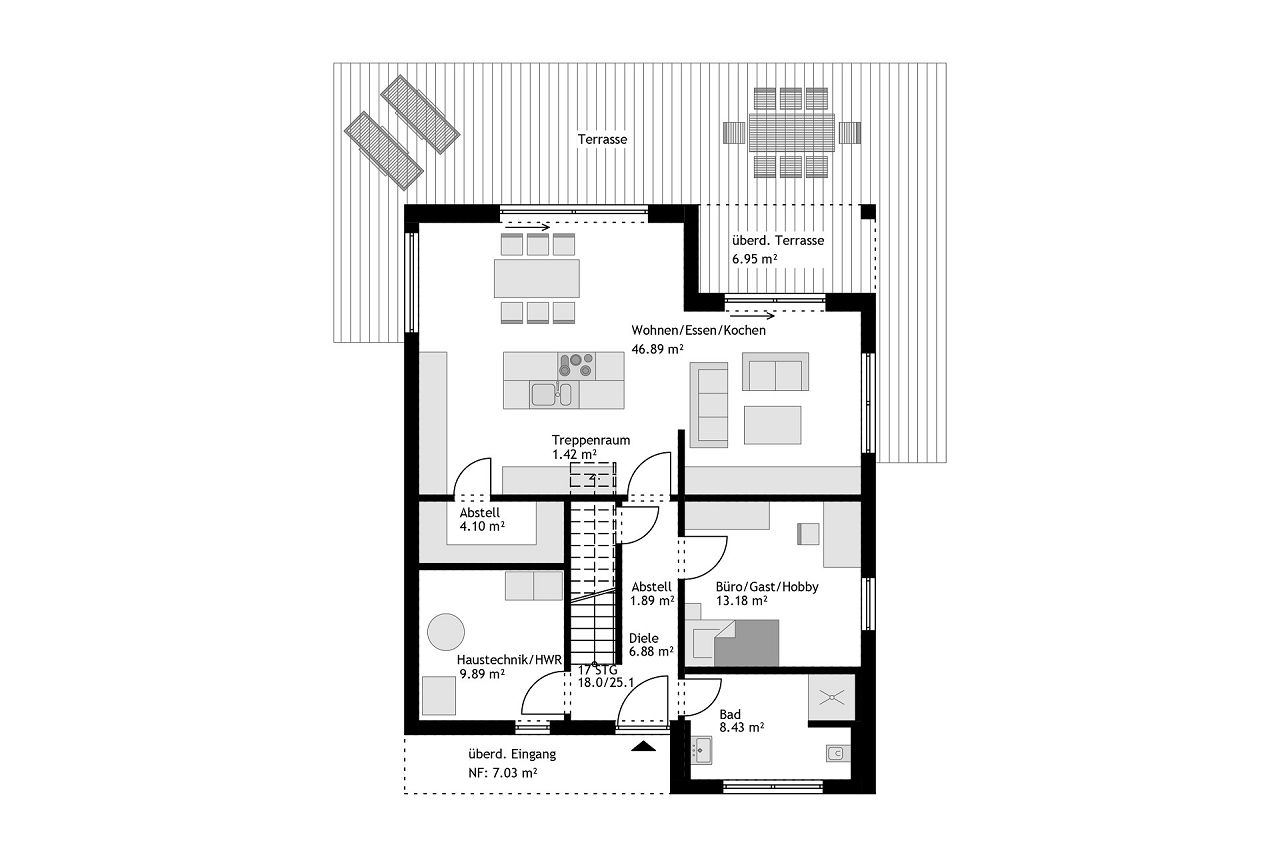
Ein seitlicher Gebäudeversatz ist der Clou dieser 2-geschossigen Stadtvilla mit Flachdach. Durch den Gebäudeversatz entsteht an der Frontseite ein praktischer überdachter Eingangsbereich und an der Gartenseite eine behagliche überdachte Terrasse, die auch bei weniger gutem Wetter den Außenbereich schützt und so die Nutzungsmöglichkeiten erhöht. Zwei große Panorama-Hebeschiebetüren und weitere große Fenster öffnen die STREIF-Villa zur Terrasse und zum Garten hin und bringen die Natur ins Haus.
Die Grundrissgestaltung
Im Zentrum des 47 m² großen Wohn-/Ess- und Kochbereiches steht eine große Küche mit Küchenblock und einem großen Esstisch, der direkt vor der Panorama-Hebeschiebetüre platziert werden kann. Wintergartenfeeling pur fürs Kochen, beim Essen und zum Genießen. Der Wohn- und TV-Loungebereich bietet ebenfalls komfortablen Platz. Ein praktischer Abstellraum liegt direkt an der Küche. Ein Zusatzraum, der als Büro, Gästezimmer oder Hobbyraum genutzt werden kann, erhöht die Nutzungsflexibilität. Ein Duschbad im Erdgeschoss bietet weiteren Komfort und macht mit dem Zusatzraum auch das zukünftige Wohnen auf einer Etage möglich. Ein Haustechnik-/Hauswirtschaftsraum und eine Diele komplettieren das Erdgeschoss. Im Obergeschoss befinden sich mit je 16 m² zwei gleich große Kinderzimmer. Der Elternbereich bietet den Komfort einer Ankleide. Im Obergeschoss ist ein Raum vorgesehen, der als Hauswirtschafts-/Lagerraum verwendet werden kann. Ein großes Familienbad und ein Flurbereich vervollständigen das Raumangebot im Obergeschoss.
Die Grundirsse sind Gestaltungsideen und können individualisiert werden. Eine Ökobilanzierung oder Nachhaltigkeitszertifizierung nach QNG kann gegen Aufpreis angeboten werden.
Die Hausdaten
Bauart: 2-geschossige STREIF-Stadtvilla
Dachform: Flachdach
Netto-Raumfläche 192,77 m²
Außenmaße 9,95 m x 12,455 m
Energieeffizienzhaus 40
Ausbaustufe fastfertig +
Die Highlights
-Überdachte Terrasse
-Überdachter Eingang
-Zusatzraum im Erdgeschoss für Gäste/Büro/Hobby
-Zusätzliches Duschbad im Erdgeschoss
Abbildungen können Sonderausstattungen oder Anbauteile (z. B. Carport) zeigen, die nicht im Lieferumfang/Angebot enthalten sind.

Ausbaustufe
4 Möglichkeiten – viel Flexibilität
STREIF bietet Ihnen vom Ausbauhaus bis zum schlüsselfertigen Haus vier Ausbaustufen zur Auswahl. Das bedeutet für Sie maximale Flexibilität, ob und wie viel Eigenleistung Sie erbringen möchten.
Mehr erfahrenAusstattung
Vom Draußen und Drinnen
In der Ausstattung bestimmen Sie die Details, die bei Ihrem Hausbau ausgeführt werden sollen. Das betrifft das äußere Erscheinungsbild Ihres Hauses, aber auch den Innenausbau.
Mehr erfahrenDiese Themen könnten Sie auch interessieren









Interesse?

Sie möchten zukünftig schöner Wohnen und zum Thema Hausbau gut informiert sein? Unsere Kataloge und Broschüren bieten eine Vielzahl an Hausentwürfen mit Grundrissen zur Inspiration und Ideenfindung. Sie geben aber auch eine Übersicht der Bauoptionen, der möglichen Ausstattungsvarianten und zeigen Trends sowie Innovationen aus Referenzhäusern.
In unseren Katalogen mit den verschiedenen Hausbaureihen
- Stadtvillen
- Einfamilienhäuser
- Bungalows
- Doppelhäuser und
- Mehrfamilienhäuser
erhalten Sie einen umfassenden Überblick über die Möglichkeiten des modernen Fertighausbaus - von der Architektur bis zu individuellen Grundrisslösungen.

