Bungalow Grundrisse von 140 bis über 170 qm - Inspiration & Planung mit STREIF
Sie möchten einen Bungalow bauen und suchen nach dem passenden Grundriss für Ihre Wohnfläche? Ob unter 140 qm, im Bereich von 140 bis 170 qm oder darüber hinaus – STREIF bietet individuelle Lösungen, die sich optimal an Ihre Bedürfnisse anpassen lassen. Im Folgenden erhalten Sie fundierte Informationen, Inspirationen und konkrete Beispiele für die Planung Ihres Traumhauses auf einer Ebene.
Jetzt Bungalow-Katalog anfordern
Hier finden Sie Grundrisse für Ihre verfügbare Fläche
Lassen Sie sich von den Bungalow-Entwürfen inspirieren. In der Aufteilung der Räume und Position der Innenwände sind Sie flexibel. Je nachdem wie groß Ihre Familie ist, wählen Sie die gewünschte Wohnfläche aus. Mit Anbauteilen, wie z. B. Erkern, Carports oder Überdachungen können die Bungalowentwürfe individualsiert werden. Wünschen Sie sich eine Fassadengestaltung mit Holz oder Naturstein? Auch diese Details besprechen wir gerne mit Ihnen.

Wie möchten Sie leben?Hier finden Sie Ideen für Ihren Bungalow.
Trends beim Bungalowbauen.




Sie fragen
Wie viele Zimmer sind bei einem Bungalow sinnvoll?
Die optimale Zimmeranzahl hängt stark von den individuellen Bedürfnissen ab. Für Paare oder kleine Familien reichen meist 3–4 Zimmer aus. Wer mehr Platz benötigt – etwa für Home-Office, Gäste oder Hobbys – wählt einen 5-Zimmer-Bungalow.
Was kostet ein 5-Zimmer-Bungalow als Fertighaus?
Die Kosten für einen 5-Zimmer-Bungalow als Fertighaus hängen von mehreren Faktoren ab: Wohnfläche, Dachform, Ausstattung, Keller, energetischer Standard und regionalen Gegebenheiten. Durch die 20-monatige Fair- und Festpreisgarantie bietet STREIF maximale Kostensicherheit. In einer persönlichen Bauberatung erhalten Sie ein verbindliches Angebot, das exakt auf Ihre Wünsche und Ihr Budget abgestimmt ist.
Kann ein Bungalow auch mit Keller gebaut werden?
Ja. Bei STREIF sind auch Bungalows mit vollwertigem oder teilunterkellertem Bereich möglich. Der Keller bietet zusätzlichen Nutzraum und lässt sich flexibel nutzen – etwa als Technikraum, Hobbyraum oder Lagerfläche.
Gibt es barrierefreie Bungalow Grundrisse?
Alle Bungalows bei STREIF lassen sich barrierefrei oder sogar rollstuhlgerecht planen mit breiten Türen, schwellenlosen Übergängen und intelligenter Raumaufteilung.
Wie individuell sind die Grundrisse bei STREIF?
Bei STREIF ist jeder Grundriss ein Unikat. Im Unterschied zu typisierten Lösungen anderer Anbieter entstehen hier komplett individuelle Planungen – abgestimmt auf Grundstück, Lebensstil, Raumbedarf und Zukunftsplanung. In der Vorplanung erarbeiten Sie mit Ihrer persönlichen STREIF-Bauberatung erste Varianten, die von STREIF-Architekten professionell ausgearbeitet und visualisiert werden. Änderungswünsche bei den gezeigten Grundriss-Entwürfen sind jederzeit möglich – von der Raumaufteilung bis zur Fassadengestaltung.
Welche Grundrisse gibt es bis 140 qm bis 170 qm oder größer?
STREIF bietet eine Vielzahl von realisierten Grundrissen Bungalow bis 140 qm und Grundrissen Bungalow 170 qm oder größer, die als Ausgangspunkt für die individuelle Planung dienen. Diese lassen sich beliebig anpassen – auch mit Garage oder Keller.
Wie schnell kann ein STREIF Bungalow gebaut werden?
Die Bauzeit eines STREIF-Bungalows hängt von der Ausstattung, Auftragsfreigabe und Baugenehmigung ab. Die Vorfertigung der Wand-, Decken- und Dachelemente im STREIF-Werk garantiert höchste Präzision und kurze Montagezeiten. Der eigentliche Aufbau auf dem Grundstück dauert in der Regel nur 1 bis 2 Tage. Die exakte Zeitplanung erfolgt individuell im Rahmen der Projektvorbereitung – mit einem festen Ansprechpartner, der alle Abläufe koordiniert.
Unsere Kunden
kommen zu Wort.








Interesse?

Sie möchten zukünftig schöner Wohnen und zum Thema Hausbau gut informiert sein? Unsere Kataloge und Broschüren bieten eine Vielzahl an Hausentwürfen mit Grundrissen zur Inspiration und Ideenfindung. Sie geben aber auch eine Übersicht der Bauoptionen, der möglichen Ausstattungsvarianten und zeigen Trends sowie Innovationen aus Referenzhäusern.
In unseren Katalogen mit den verschiedenen Hausbaureihen
- Stadtvillen
- Einfamilienhäuser
- Bungalows
- Doppelhäuser und
- Mehrfamilienhäuser
erhalten Sie einen umfassenden Überblick über die Möglichkeiten des modernen Fertighausbaus - von der Architektur bis zu individuellen Grundrisslösungen.
Wissenscheck
Flexible Grundrissplanung
für Ihren Bungalow
Bedeutung der Grundrissplanung beim Bungalowbau
Ein Bungalow vereint Wohnen auf einer Ebene mit barrierearmen Komfort, zeitloser Architektur und funktionalem Design. Die Entscheidung für einen Bungalow ist daher nicht nur eine Frage des Stils, sondern vor allem der Lebensqualität – heute und in Zukunft. Der Grundriss spielt bei dieser Hausform eine zentrale Rolle. Er bestimmt maßgeblich, wie gut sich das Haus an individuelle Bedürfnisse anpassen lässt – sei es für junge Familien, Paare oder Menschen, die sich auf ein barrierearmes Zuhause im Alter vorbereiten möchten.
Ein durchdachter Grundriss optimiert nicht nur die Wohnfläche, sondern schafft fließende Übergänge zwischen Lebensbereichen, reduziert Verkehrsflächen und erhöht die Effizienz in der Nutzung jedes Quadratmeters. Dabei geht es nicht nur um die Raumaufteilung, sondern auch um Blickachsen, Belichtung, Zugangsmöglichkeiten und Funktionalität – sei es für Arbeitszimmer, Hauswirtschaftsräume oder großzügige Wohn- und Essbereiche.
Besonders im Fertighausbau mit STREIF eröffnet die Grundrissplanung ein Höchstmaß an Flexibilität. Dank der Holztafelbauweise lassen sich Räume individuell anordnen, verändern und auf Wunsch vergrößern – bei gleichzeitig hoher Energieeffizienz und Nachhaltigkeit. Der Grundriss wird so zur maßgeschneiderten Lösung: exakt abgestimmt auf den Lebensstil und die Zukunftspläne der Bauherren.
Bedeutung der Grundrissplanung beim Bungalowbau
Ein Bungalow vereint Wohnen auf einer Ebene mit barrierearmen Komfort, zeitloser Architektur und funktionalem Design. Die Entscheidung für einen Bungalow ist daher nicht nur eine Frage des Stils, sondern vor allem der Lebensqualität – heute und in Zukunft. Der Grundriss spielt bei dieser Hausform eine zentrale Rolle. Er bestimmt maßgeblich, wie gut sich das Haus an individuelle Bedürfnisse anpassen lässt – sei es für junge Familien, Paare oder Menschen, die sich auf ein barrierearmes Zuhause im Alter vorbereiten möchten.
Ein durchdachter Grundriss optimiert nicht nur die Wohnfläche, sondern schafft fließende Übergänge zwischen Lebensbereichen, reduziert Verkehrsflächen und erhöht die Effizienz in der Nutzung jedes Quadratmeters. Dabei geht es nicht nur um die Raumaufteilung, sondern auch um Blickachsen, Belichtung, Zugangsmöglichkeiten und Funktionalität – sei es für Arbeitszimmer, Hauswirtschaftsräume oder großzügige Wohn- und Essbereiche.
Besonders im Fertighausbau mit STREIF eröffnet die Grundrissplanung ein Höchstmaß an Flexibilität. Dank der Holztafelbauweise lassen sich Räume individuell anordnen, verändern und auf Wunsch vergrößern – bei gleichzeitig hoher Energieeffizienz und Nachhaltigkeit. Der Grundriss wird so zur maßgeschneiderten Lösung: exakt abgestimmt auf den Lebensstil und die Zukunftspläne der Bauherren.
1. Bungalow Grundrisse - Flexibilität für Ihre Planung
Ein Bungalow bietet ideale Voraussetzungen, um modernen Wohnkomfort auf einer Ebene mit einem durchdachten Grundriss zu verbinden. Besonders bei STREIF profitieren Bauherren von maximaler Flexibilität: Ob kompakt, großzügig oder mit individueller Erweiterung – entdecken Sie, welche verschiedenen Bungalow Grundrisse es gibt, welche Raumaufteilungen sich für Ihre Wohnbedürfnisse eignen und warum eine energieeffiziente, nachhaltige Planung bei einem Fertighaus Bungalow entscheidend ist.
2. Fertighaus Bungalows und ihre Grundrissvielfalt
Flexibilität und Individualität in der Fertighausplanung
Fertighaus-Bungalows verbinden die Vorteile des ebenerdigen Wohnens mit der modernen Bauweise des Fertighauses. Dank industriell vorgefertigter Bauelemente in nachhaltiger Holztafelbauweise entsteht nicht nur ein kurzer Bauzeitraum – sondern auch maximale Flexibilität bei der Gestaltung des Grundrisses. Insbesondere bei STREIF profitieren Bauherren von einem breiten Spektrum an Planungslösungen, das weit über standardisierte Entwürfe hinausgeht.
Der Fertighaus Grundriss Bungalow kann individuell angepasst werden: von offenen Wohn-Ess-Bereichen über separate Rückzugsräume bis hin zu integrierten Home-Office-Zonen. Die Möglichkeiten reichen von kompakten Modellen mit rund 100 bis 140 qm bis zu großzügigen Varianten mit über 170 qm. Dabei entstehen Fertighäuser Bungalows Grundrisse, die sowohl funktional als auch architektonisch überzeugen – mit klarer Raumstruktur, intelligenten Verkehrsflächen und optimaler Tageslichtnutzung.
Ein großer Vorteil: Bauherren können aus einer Vielzahl an bereits realisierten Grundrissen Fertighaus Bungalow auswählen oder ihren eigenen Fertighaus Bungalow Grundriss gemeinsam mit den STREIF-Architekten entwickeln. Ob moderner Bungalow mit Pultdach, klassisches Satteldach oder Winkelbungalow mit Terrasse – nahezu jede Konfiguration ist denkbar. Besonders gefragt sind auch Fertighaus Bungalows mit Garage oder Keller, die sich harmonisch in das Gesamtbild integrieren lassen.
Nicht zuletzt ermöglicht die Fertigbauweise eine hervorragende energetische Performance: Jeder STREIF-Bungalow ist mindestens ein KfW-Effizienzhaus 40. Damit wird der individuell geplante Fertighaus Bungalow nicht nur zum Lebensraum, sondern auch zur Investition in eine nachhaltige Zukunft.
3. Beliebte Bungalow-Größen und ihre Grundrisse
Bungalows bis 140 qm Wohnfläche
Bungalows mit 140 - 170 qm Wohnfläche
Bungalows mit 170 qm oder mehr Wohnfläche
Die Wahl der richtigen Wohnfläche ist ein entscheidender Schritt in der Hausplanung. STREIF bietet für jede Lebenssituation passgenaue Bungalow-Grundrisse – besonders gefragt sind Größen ab 140 qm. Ob kompakte Lösung mit weniger als 140 qm, flexible Konzepte zwischen 140 und 170 qm oder großzügige Varianten über 170 qm: Für jede Anforderung gibt es eine durchdachte Lösung, die Design, Funktionalität und Zukunftstauglichkeit verbindet. Ob 140 qm, 170 qm oder mehr – wir planen Ihren perfekten Grundriss.
Sichern Sie sich jetzt einen Termin bei Ihrer regionalen Bauberatung.
Bungalows bis 140 qm Wohnfläche
Ein Bungalow Grundriss 140 qm bietet ausreichend Platz für Paare oder kleine Familien, ohne dabei unnötige Flächen zu verbrauchen. Die Grundrisse Bungalow 140 qm sind meist effizient geplant und verfügen über drei bis vier Zimmer, einen offenen Wohn-Ess-Kochbereich und ein Familienbad. Ergänzend kann ein Hauswirtschaftsraum und ein Gäste-WC integriert werden.
Besonders gefragt sind auch Varianten wie der Bungalow Grundriss 140 qm mit Garage, bei dem zusätzlicher Stauraum geschaffen wird, ohne die Wohnfläche zu belasten. Durch geschickte Planung lassen sich auf 140 qm großzügige Raumwirkungen erzielen – mit kurzen Wegen, klaren Zonen und optimaler Tageslichtausnutzung. Auch eine Garage lässt sich optimal integrieren, ohne die Wohnqualität zu beeinträchtigen. Durchdachte Raumaufteilungen ermöglichen kurze Wege, viel Tageslicht und offene Wohnstrukturen.
Typische Merkmale:
- 3–4 Zimmer
- Offener Wohnbereich mit Zugang zur Terrasse
- Integrierte Garage möglich
- Hohe Effizienz bei Raumaufteilung
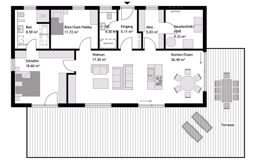
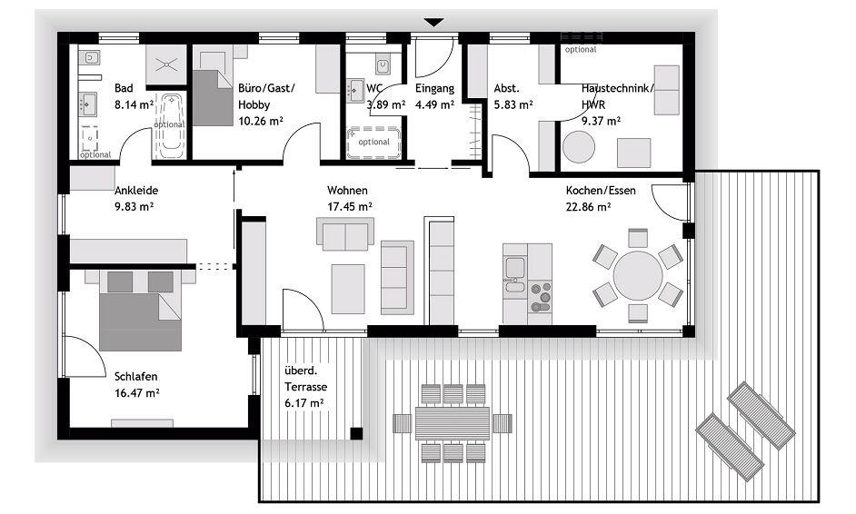
Bungalows mit 140 - 170 qm Wohnfläche
Bauherren, die ein ausgewogenes Verhältnis aus Wohnkomfort, Flexibilität und Gestaltungsspielraum suchen, entscheiden sich häufig für einen Grundriss im Bereich von 140 bis 170 qm. Diese Fläche bietet ausreichend Platz für ein durchdachtes Raumkonzept mit vier bis fünf Zimmern und zusätzlichen Nutzflächen – ideal für Familien, Paare mit Home-Office-Bedarf oder komfortorientiertes Wohnen.
Die Bungalow Grundrisse 140–170 qm kombinieren repräsentative Gestaltung mit praktischen Funktionen: offene Wohn-Ess-Bereiche, separate Arbeits- oder Gästezimmer sowie optionale Wellness- oder Ankleidezonen lassen sich problemlos integrieren. Auch eine Garage oder ein Keller kann baulich elegant eingebunden werden.
Typische Merkmale:
- 4–5 Zimmer
- Separates Büro oder Gästezimmer möglich
- Großzügiger Eingangsbereich
- Optionale Kellerplanung oder Garage
Diese Grundrissgrößen bieten einen hohen Grad an Flexibilität – sowohl für gegenwärtige Bedürfnisse als auch mit Blick auf spätere Lebensphasen. STREIF realisiert im Bereich 140–170 qm individuelle Bungalows, die sowohl gestalterisch als auch funktional überzeugen – mit wohngesunden Materialien und hoher Energieeffizienz.
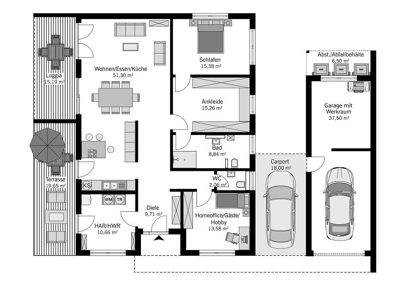
Bungalows mit 170 qm oder mehr Wohnfläche
Für Bauherren mit dem Wunsch nach maximalem Raumangebot, Komfort und architektonischer Freiheit sind Bungalows mit über 170 qm Wohnfläche die ideale Wahl. Diese Größenordnung erlaubt großzügige Raumstrukturen, vielfältige Funktionsbereiche und exklusive Ausstattungselemente – perfekt für Familien, Mehrgenerationenwohnen oder anspruchsvolles Wohnen mit Stil.
Ein Bungalow Grundriss über 170 qm bietet Raum für fünf oder mehr Zimmer, weitläufige Wohnbereiche, separate Trakte für Eltern, Kinder oder Gäste sowie Möglichkeiten für Spa, Bibliothek oder Fitness. Der Anschluss einer Garage, eines Carports oder eines Kellers ist problemlos umsetzbar – sowohl funktional als auch gestalterisch.
Typische Merkmale:
- 5–6 Zimmer oder mehr
- Separate Wohntrakte für Familienmitglieder oder Gäste
- Raum für Wellnessbad, Hauswirtschaftsraum, Hobby oder Arbeiten
- Flexible Erweiterung durch Keller, Doppelgarage oder Carport
Mit STREIF lassen sich Grundrisse Bungalow über 170 qm exakt auf individuelle Wohnkonzepte abstimmen – vom luxuriösen Winkelbungalow über Atriumlösungen bis zum architektengeplanten Designerhaus. Die nachhaltige Bauweise in Holztafelbauweise sorgt dabei für ein gesundes Raumklima und hohe Energieeffizienz nach KfW-40.
4. Anzahl der Zimmer und ihre Auswirkungen auf den Grundriss
3-Zimmer-Bungalows: Kompakte Wohnraumlösung
5-Zimmer-Bungalows: Raum für Familie und Home-Office
Die Anzahl der Zimmer ist ein zentrales Entscheidungskriterium bei der Planung eines Bungalows. Sie bestimmt nicht nur das Raumprogramm, sondern beeinflusst auch maßgeblich den Grundriss – sowohl in Bezug auf Fläche als auch auf die funktionale Gliederung. Zwei häufig nachgefragte Varianten sind 3-Zimmer-Bungalows und 5-Zimmer-Bungalows.
3-Zimmer-Bungalows: Kompakte Wohnraumlösungen
Ein Bungalow 3 Zimmer Grundriss richtet sich in erster Linie an Singles, Paare oder kleinere Haushalte mit geringem Platzbedarf. Er bietet Raum für ein Schlafzimmer, ein Arbeits- oder Gästezimmer sowie einen großzügigen Wohn-Ess-Bereich mit offener Küche. Der Vorteil liegt in der klaren Struktur und der hohen Effizienz bei der Nutzung der vorhandenen Fläche.
Bei STREIF lassen sich auch kompakte Bungalow Grundrisse so gestalten, dass trotz begrenzter Fläche Großzügigkeit und Komfort entstehen. Große Fensterfronten, intelligente Lichtführung und durchdachte Raumverknüpfungen sorgen für ein angenehmes Wohngefühl.
Typische Merkmale:
- Ideal für Paare oder kleine Haushalte
- Einfache Erschließung auf einer Ebene
- Flexibel anpassbar
5-Zimmer-Bungalows: Raum für Familien und Home-Office
Ein Grundriss Bungalow 5 Zimmer eignet sich besonders für Familien oder Bauherren mit dem Wunsch nach mehreren Rückzugsorten. Neben Schlaf- und Kinderzimmern können hier auch ein Büro, ein Hobbyraum oder ein Gästezimmer eingeplant werden. Die Bungalow Grundrisse 5 Zimmer überzeugen durch ihre Flexibilität. Trotz mehr Raum bleiben die Wege im Haus kurz und funktional. Dank durchdachter Anordnung von Privaträumen und Gemeinschaftsbereichen entsteht eine ausgewogene Balance zwischen Rückzug und Kommunikation.
Auch Kombinationen wie Grundriss Bungalow 5 Zimmer mit Garage oder Keller sind problemlos realisierbar – besonders bei STREIF, wo der Grundriss individuell angepasst werden kann.
Typische Merkmale:
- Optimal für Familien mit Kindern
- Platz für mehrere Nutzungsbereiche (z. B. Arbeiten und Gäste)
- Flexible Zonenaufteilung möglich
Wer ein 5 Zimmer Haus bauen möchte, profitiert bei STREIF von maßgeschneiderten Lösungen – mit Fokus auf Funktionalität, Design und Zukunftsfähigkeit.
5. Integration von Zusatzräumen
Bungalows mit Garage: Vorteile und Designoptionen
Bungalows mit Keller: Erweiterte Nutzungsmöglichkeiten
Zusätzliche Räume wie Keller beeinflussen nicht nur die Funktionalität eines Bungalows, sondern auch dessen Grundriss maßgeblich. Sie erweitern den Nutzwert des Hauses deutlich und lassen sich bei STREIF harmonisch in die architektonische Gesamtplanung integrieren – ohne Kompromisse bei Design, Komfort oder Energieeffizienz.
Bungalows mit Garage: Vorteile und Designoptionen
Ein Bungalow Grundriss mit Garage bietet praktischen Mehrwert und erhöht gleichzeitig den Komfort im Alltag. Die direkte Verbindung zwischen Wohnbereich und Garage schafft kurze Wege, schützt vor Witterungseinflüssen und bietet zusätzliche Abstellfläche.
Besonders gefragt ist der Bungalow Grundriss 140 qm mit Garage, der trotz kompakter Fläche intelligente Lösungen für Stauraum und Erreichbarkeit bietet. Auch bei größeren Wohnflächen, wie beim Grundriss Bungalow 170 qm mit Garage, entstehen großzügige Raumgefüge, in die sich die Garage nahtlos einfügt – beispielsweise als seitlich angebautes oder integriertes Bauteil.
Typische Vorteile:
- Schutz für Fahrzeuge und Fahrräder
- Zusätzicher Stauraum für Gartengeräte, Technik oder Sportequipment
- Direkter Zugang ins Haus, z. B. über den Hauswirtschaftsraum
Bungalow mit Keller: Erweiterte Nutzungsmöglichkeiten
Ein Bungalow mit Keller Grundriss eröffnet weitere Möglichkeiten zur Flächennutzung - vo allem auf kleinen Grundstücken oder bei hohem Raumbedarf. Der Keller kann als Technikraum, Lagerfläche, Hobbybereich oder für eine Einliegerwohnung genutzt werden und entlastet so die Hauptwohnfläche.
Bei STREIF wird jeder Bungalow Grundriss so geplant, dass auch ein Kellergeschosse optimal eingebunden ist – inklusive sinnvoller Belichtung, Belüftung und Integration moderner Haustechnik. Die nachhaltige Holztafelbauweise erlaubt dabei auch in Kombination mit massiven Kellerkonstruktionen als Fertigkeller eine hohe bauliche Qualität.
Typische Einsatzbereiche:
- Technikräume (Heizung, Haustechnik)
- Wasch- und Trockenräume
- Arbeits- oder Hobbyräume
- Weinlager, Fitnessraum oder Gästezimmer
- Einliegerwohnung
Durch die Integration von Garage oder Keller entstehen funktionale und zukunftssichere Lösungen, die den Bungalow optimal ergänzen – sowohl architektonisch als auch nutzerorientiert.
6. Luxuriöse Bungalow-Grundrisse
Ein Luxus Bungalow steht für kompromisslose Qualität, anspruchsvolle Architektur und höchsten Wohnkomfort auf einer Ebene. Dabei geht es nicht nur um großzügige Flächen, sondern vor allem um raffinierte Grundrisslösungen, exklusive Ausstattungsdetails und die perfekte Verbindung von Ästhetik und Funktionalität.
Ein Luxus-Bungalow Grundriss zeichnet sich durch fließende Raumübergänge, repräsentative Eingangsbereiche, weitläufige Wohnlandschaften und private Rückzugsorte aus. Großzügige Glasflächen, überdachte Terrassen und innenliegende Atrien sorgen für ein besonderes Raumgefühl und schaffen harmonische Übergänge zwischen Innen- und Außenraum.
Typische Elemente in Luxus-Bungalow Grundrissen:
- Weitläufiger Wohn-, Ess- und Kochbereich mit Designküche
- Elternbereich mit Schlafzimmer, Ankleide und Ensuite-Bad
- Separater Kinder- oder Gästetrakt
- Wellnessbad, Sauna oder Spa-Zone
- Innenhof, Atrium oder umlaufende Terrasse
- Großzügige Garderobe und Hauswirtschaftsraum
Auch architektonisch heben sich diese Konzepte ab: Flachdach, Pultdach oder moderne Walmdachformen schaffen einen zeitgemäßen Look. Die Raumhöhen liegen oft über dem Standard und betonen das offene Raumgefühl zusätzlich.
STREIF bietet im Bereich Luxus-Bungalows vielfältige Möglichkeiten zur Individualisierung – vom exklusiven Materialmix bis zur energieeffizienten Smart-Home-Ausstattung. Wer einen Luxus Bungalow Grundriss plant, findet hier höchste gestalterische Freiheit und ein Höchstmaß an Qualität – verbunden mit der ökologischen Verantwortung der nachhaltigen Holztafelbauweise.
7. Planungstipps für den optimalen Bungalow-Grundriss
Wichtige Aspekte bei der Grundrissgestaltung
Ein durchdachter Grundriss ist das Fundament für ein dauerhaft funktionales und komfortables Zuhause. Besonders beim Bungalow, der alle Räume auf einer Ebene vereint, spielt die Planung eine zentrale Rolle. Der Grundriss muss nicht nur aktuelle Bedürfnisse erfüllen, sondern auch künftige Lebensphasen berücksichtigen – von Familienzuwachs bis zur Barrierefreiheit im Alter.
Wichtige Aspekte der Grundrissgestaltung
Ein guter Bungalow Haus Grundriss folgt keiner starren Norm, sondern orientiert sich an individuellen Lebensmodellen. Entscheidend ist eine klare Zonierung: öffentliche Bereiche wie Wohnen, Kochen und Essen sollten gut erreichbar und offen gestaltet sein, während private Räume wie Schlafzimmer oder Arbeitszimmer Rückzug ermöglichen.
Planungsschwerpunkte:
- Kurze Wege zwischen Küche, Essen und Terrasse
- Rückzugsräume mit Distanz zum Wohnbereich
- Lichtdurchflutete Räume durch gezielte Fensterplanung
- Optional: Sichtachsen und Blickbeziehungen
Auch technische Räume – wie der Hauswirtschaftsraum oder ein Technikraum bei geplanter Wärmepumpe – sollten intelligent platziert werden, ohne die Nutzung der Wohnräume einzuschränken.
Berücksichtigung von persönlichen Bedürfnissen und Zukunftsplanung
Ein optimaler Bungalow Grundriss berücksichtigt nicht nur die Gegenwart, sondern denkt die Zukunft mit: Wie flexibel ist der Grundriss bei veränderten Lebensumständen? Ist eine barrierefreie Nutzung heute schon sinnvoll? Gibt es Platzreserven, z. B. in Form eines Gästezimmers oder eines später abtrennbaren Home-Offices?
STREIF bietet die Möglichkeit, den Grundriss gemeinsam mit erfahrenen Fachplanern genau auf diese Bedürfnisse abzustimmen. So entsteht nicht nur ein Haus, sondern ein Lebensraum, der langfristig passt.
Typische Empfehlungen:
- Breitere Türen und schwellenlose Übergänge vorsehen
- Räume so planen, dass sie multifunktional genutzt werden können
- Zusätzliche Ausgänge zur Terrasse oder Garten integrieren
Ein gut geplanter Bungalow Grundriss ist die perfekte Symbiose aus Funktion, Komfort und Weitsicht – maßgeschneidert für individuelle Wohnwünsche.
8. STREIF Bungalows: Individuelle Grundrisslösungen für jeden Bedarf
Wer einen Bungalow plant, sucht nach einem Zuhause, das perfekt zum eigenen Lebensstil passt – in Funktion, Gestaltung und Nachhaltigkeit. STREIF bietet hierfür maßgeschneiderte Lösungen, die weit über den Standard hinausgehen. Jeder Bungalow Fertighaus Grundriss wird individuell geplant und kann flexibel an persönliche Anforderungen angepasst werden.
Lassen Sie sich inspirieren– entdecken Sie die Vielfalt individuell planbarer STREIF-Bungalows.










