Doppelhaus Grundrisse von 140 bis über 170 qm - individuell geplant mit STREIF
Sie möchten eine Doppelhaushälfte bauen und suchen den passenden Grundriss?
Ob unter 140 qm, im Bereich von 140 bis 170 qm oder darüber hinaus - STREIF bietet durchdachte und flexible Grundrisslösungen für Bauherren, die eine Haushälfte innerhalb eines Doppelhauses realisieren möchten. Jede Planung berücksichtigt dabei die Eigenständigkeit Ihrer Wohneinheit - mit separatem Eingang, eigener Technikzone, privatem Außenbereich und maximaler Gestaltungsfreiheit. In diesem Beitrag erhalten Sie fundierte Informationen, bewährte Konzepte und konkrete Ideen für die Grundrissplanung Ihrer Doppelhaushälfte - nachhaltig, effizient und mit Fair- und Festpreisgarantie.
Jetzt Doppelhaus-Katalog anfordern
Hier finden Sie Doppelhäuser Grundrisse für Ihre verfügbare Fläche
Lassen Sie sich von den Doppelhaus Grundrissen inspirieren. Je nachdem wie groß Ihre Familie ist, finden Sie Ideen für die Planung Ihrer Doppelhaushälfte. Prinzipiell baut STREIF jedes Haus individuell. Die gezeigten Grundrisse dienen als Inspiration. In der Aufteilung der Räume und Position der Innenwände sind Sie flexibel. Die Größe des Grundrisses ist auch eine wichtige Frage, wenn es ums Budget und die Finanzierung geht. Prinzipiell ist es auch möglich die Doppelhaushälften mit unterschiedlichen Größen zu planen. Zum Beispiel wenn mehrere Generationen zusammen bauen möchten. Mit Anbauteilen, wie z. B. Erkern, Carports oder Überdachungen können die Doppelhaushälften weiter individualisiert werden. Sie wünschen sich Holz- oder Natursteinakzente für die Fassadengestaltung? Auch diese Details besprechen wir gerne in einer ausführlichen Bedarfsanalyse mit Ihnen.

Wie möchten Sie leben?Hier finden Sie Ideen für Ihr Doppelhaus.
Trends beim Bauen eines Doppelhauses.




Sie fragen
Wie viel Wohnfläche bietet eine typische Doppelhaushälfte?
STREIF bietet Doppelhaushälften ab ca. 120 qm Wohnfläche an. Je nach Wunsch und Grundstück können aber auch 140, 150, 160 oder über 170 qm realisiert werden – mit flexiblen Raumkonzepten, zugeschnitten auf Ihre individuellen Bedürfnisse.
Ist der Grundriss bei einer Doppelhaushälfte individuell planbar?
Ja. Jede Doppelhaushälfte bei STREIF wird eigenständig geplant – mit individueller Raumaufteilung, eigener Haustechnik, separatem Zugang und frei gestaltbaren Wohnbereichen. Der Grundriss kann an persönliche Anforderungen angepasst werden.
Welche Technikbereiche sind in der Haushälfte enthalten?
Jede Haushälfte verfügt über einen eigenen Haustechnikraum mit Hauswirtschaftszonen und Versorgungseinheiten. Die Systeme (z. B. Heizung, Lüftung, Wasser, Strom) sind technisch vollständig voneinander getrennt.
Wie wird Privatsphäre trotz Wandverbindung sichergestellt?
STREIF achtet bei jeder Planung auf maximale Schallschutzmaßnahmen mit einer speziellen Gebäudetrennwand. Wichtig ist auch eine Raumverteilung, die Rückzugszonen zur freien Gebäudeseite orientiert. Durch versetzte oder gespiegelte Grundrisse und eine gezielte Fensteranordnung entsteht ein hohes Maß an Privatsphäre.
Kann eine Garage oder ein Carport in den Grundriss integriert werden?
Ja. Jede Doppelhaushälfte kann mit einem integrierten Carport, einer Garage oder einem Stellplatz geplant werden. Dabei lassen sich auch direkte Zugänge über Hauswirtschaftsräume oder Schmutzschleusen realisieren.
Wie energieeffizient sind STREIF-Doppelhaushälften?
Alle STREIF Doppelhäuser erfüllen den Standard eines KfW-Effizienzhauses 40. Die Kombination aus nachhaltiger Holztafelbauweise, moderner Haustechnik und intelligenter Gebäudehülle sorgt für niedrige Betriebskosten und ein angenehmes Raumklima.
Unsere Kunden
kommen zu Wort.








Interesse?

Sie möchten zukünftig schöner Wohnen und zum Thema Hausbau gut informiert sein? Unsere Kataloge und Broschüren bieten eine Vielzahl an Hausentwürfen mit Grundrissen zur Inspiration und Ideenfindung. Sie geben aber auch eine Übersicht der Bauoptionen, der möglichen Ausstattungsvarianten und zeigen Trends sowie Innovationen aus Referenzhäusern.
In unseren Katalogen mit den verschiedenen Hausbaureihen
- Stadtvillen
- Einfamilienhäuser
- Bungalows
- Doppelhäuser und
- Mehrfamilienhäuser
erhalten Sie einen umfassenden Überblick über die Möglichkeiten des modernen Fertighausbaus - von der Architektur bis zu individuellen Grundrisslösungen.
Wissenscheck
Flexible Grundrissplanung
für Ihr Doppelhaus
Die Bedeutung der Grundrissplanung bei Doppelhäusern / Doppelhaushälften
Der Grundriss ist das Herzstück jeder Doppelhaushälfte – er bestimmt, wie gut sich das Haus an individuelle Bedürfnisse anpasst und wie effizient die Wohnfläche genutzt wird. Dabei steht nicht das gesamte Gebäude im Fokus, sondern die einzelne Haushälfte, die von STREIF-Kundinnen und Kunden geplant und realisiert wird.
Besonders wichtig: Trotz der baulichen Verbindung mit der Nachbarhälfte bleibt jede Doppelhaushälfte eine eigenständige Wohneinheit – mit eigener Haustür, eigenem Grundstücksanteil, eigenem Technikbereich und vollständiger Planungsfreiheit im Inneren. Der Grundriss der Doppelhaushälfte entscheidet somit über Alltagstauglichkeit, Rückzugsmöglichkeiten, Lichtführung und den Komfort.
Ein durchdachter Doppelhaushälfte Grundriss berücksichtigt dabei:
- Optimale Erschließung des Erd- und Obergeschosses
- Trennung von Wohn-, Arbeits- und Schlafbereichen
- Positionierung der Fenster mit Blickachsen zur „freien Seite“
- Integration von Haustechnik, Hauswirtschaft und Lagerflächen
- Ausrichtung von Terrasse oder Balkon mit Blickschutz
STREIF ermöglicht eine individuelle Grundrissplanung auf Basis bewährter Konzepte – mit dem Ziel, dass jede Haushälfte nicht nur funktional überzeugt, sondern auch architektonisch harmonisch zum Gesamtbild beiträgt.
Die Bedeutung der Grundrissplanung bei Doppelhäusern / Doppelhaushälften
Der Grundriss ist das Herzstück jeder Doppelhaushälfte – er bestimmt, wie gut sich das Haus an individuelle Bedürfnisse anpasst und wie effizient die Wohnfläche genutzt wird. Dabei steht nicht das gesamte Gebäude im Fokus, sondern die einzelne Haushälfte, die von STREIF-Kundinnen und Kunden geplant und realisiert wird.
Besonders wichtig: Trotz der baulichen Verbindung mit der Nachbarhälfte bleibt jede Doppelhaushälfte eine eigenständige Wohneinheit – mit eigener Haustür, eigenem Grundstücksanteil, eigenem Technikbereich und vollständiger Planungsfreiheit im Inneren. Der Grundriss der Doppelhaushälfte entscheidet somit über Alltagstauglichkeit, Rückzugsmöglichkeiten, Lichtführung und den Komfort.
Ein durchdachter Doppelhaushälfte Grundriss berücksichtigt dabei:
- Optimale Erschließung des Erd- und Obergeschosses
- Trennung von Wohn-, Arbeits- und Schlafbereichen
- Positionierung der Fenster mit Blickachsen zur „freien Seite“
- Integration von Haustechnik, Hauswirtschaft und Lagerflächen
- Ausrichtung von Terrasse oder Balkon mit Blickschutz
STREIF ermöglicht eine individuelle Grundrissplanung auf Basis bewährter Konzepte – mit dem Ziel, dass jede Haushälfte nicht nur funktional überzeugt, sondern auch architektonisch harmonisch zum Gesamtbild beiträgt.
1. Fertighaus-Doppelhäuser: effizient, nachhaltig, anpassbar
Doppelhaushälfte als eigenständige Wohnlösung
Besonders wichtig: Trotz der baulichen Verbindung mit der Nachbarhälfte bleibt jede Doppelhaushälfte eine eigenständige Wohneinheit – mit eigener Haustür, eigenem Grundstücksanteil, eigenem Technikbereich und vollständiger Planungsfreiheit im Inneren. Der Grundriss der Doppelhaushälfte entscheidet somit über Alltagstauglichkeit, Rückzugsmöglichkeiten, Lichtführung und den Komfort.
Das Doppelhaus gilt als besonders wirtschaftliche und zugleich architektonisch vielseitige Bauform. Bei STREIF wird jede Doppelhaushälfte als eigenständiges Projekt behandelt – von der Planung über die Technik bis zur Gestaltung. Das bedeutet: Wer sich für eine Doppelhaushälfte entscheidet, profitiert von der Effizienz des gemeinsamen Baukörpers, ohne Kompromisse bei Individualität oder Privatsphäre eingehen zu müssen.
Ein moderner Grundriss für Doppelhaushälfte ist darauf ausgelegt, Alltag und Rückzug gleichermaßen zu ermöglichen. Trotz der Wandverbindung zur Nachbarseite sorgt die durchdachte Anordnung von Räumen, Fenstern und Zugängen für ein eigenständiges, angenehmes Wohngefühl.
STREIF achtet dabei besonders auf:
- spiegelverkehrte oder versetzte Grundrisskonzepte
- ruhige Raumzonen zur freien Gebäudeseite
- gezielte Lichtführung über Terrassen- und Gartenausrichtung
- getrennte Haustechnikbereiche und Versorgungseinheiten
Mit der STREIF-Holztafelbauweise lassen sich Doppelhäuser Grundrisse besonders flexibel umsetzen. Ob klassisch oder modern, mit Satteldach oder Flachdach – jede Haushälfte wird exakt auf das Grundstück, die Ausrichtung und die Lebenssituation der künftigen Bewohner abgestimmt.
Dank der industriellen Vorfertigung profitiert der Bauherr zusätzlich von kurzen Bauzeiten, hoher Präzision und einer nachhaltigen Bauweise – inklusive der STREIF-typischen Fair- und Festpreisgarantie.
2. Beliebte Wohnflächen und Grundrisskonzepte für Doppelhäuser
STREIF bietet Doppelhaushälften mit individuell planbaren Grundrissen ab etwa 120qm Wohnfläche. Die Bauherren entscheiden sich dabei bewusst für eine einzelne Haushälfte, die funktional autark ist – mit eigenem Hauseingang, eigener Haustechnik, eigenem Gartenbereich und freier Raumaufteilung. Die Wahl der Wohnfläche spielt dabei eine zentrale Rolle: Sie beeinflusst, wie flexibel sich der Alltag gestalten lässt und wie viel Platz für Wohnen, Arbeiten und Rückzug zur Verfügung steht.
Jetzt regionale Bauberatung kontaktieren
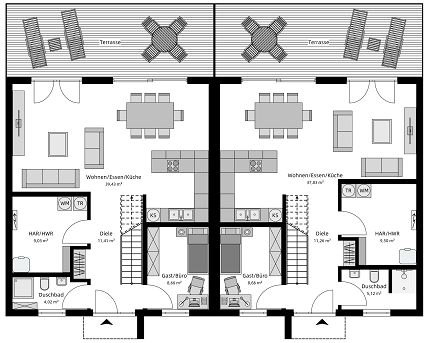
Doppelhaushälften mit ca. 140 qm Wohnfläche
Ein Grundriss mit rund 140 qm Wohnfläche bietet bereits viel Raum für eine vierköpfige Familie oder ein Paar mit Home-Office-Bedarf. Die Grundfläche einer Doppelhaushälfte in dieser Größe lässt sich so planen, dass offene Wohnbereiche im Erdgeschoss mit einem ruhigen Rückzugsbereich im Obergeschoss harmonieren.
Typische Merkmale:
- 4–5 Zimmer auf zwei Vollgeschossen oder 1,5-geschossig
- Offene Küche mit Wohn-/Essbereich
- Zwei Bäder (z. B. Duschbad im EG, Familienbad im OG)
- Technik- und Hauswirtschaftsraum mit Zugang zur Garage oder Carport
- Optional: Erker, Zwerchgiebel oder überdachte Terrasse 4–5 Zimmer auf zwei Vollgeschossen oder 1,5-geschossig
Diese Grundrisslösungen bieten den optimalen Einstieg in ein Doppelhausprojekt – funktional, effizient und architektonisch reizvoll.
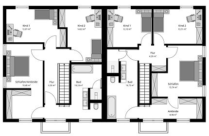
Doppelhaushälften mit 140 - 170 qm Wohnfläche
Wer etwas mehr Raum benötigt, profitiert im Bereich von 140 bis 170 qm von großzügigeren Raumzuschnitten, einer erweiterten Ausstattung und mehr Flexibilität in der Nutzung. STREIF ermöglicht in dieser Größenklasse die Integration zusätzlicher Ausstattungsdetails wie Ankleide, Gästezimmer oder offenes Home-Office.
Typische Merkmale:
- 5–6 Zimmer mit vielseitiger Nutzung
- Großzügiger Flur oder Galerie im OG
- Elternbereich mit Ensuite-Bad und Ankleide
- Separater Haustechnikraum je Doppelhaushälfte effizient erschlossen
- Optionale Grundrissversätze zur Nachbarhälfte für mehr Privatsphäre
Diese Varianten sind ideal für Familien mit mehreren Kindern oder Paare mit anspruchsvollen Raumwünschen – auch als langfristige Wohnlösung.
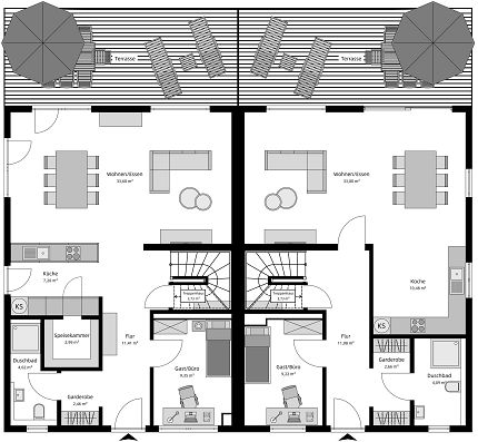
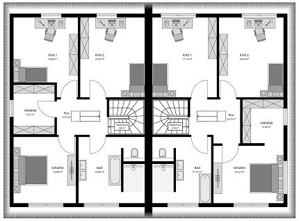
Doppelhaushälften mit über 170 qm Wohnfläche
In der oberen Größenklasse lassen sich besonders exklusive Wohnkonzepte realisieren – zum Beispiel mit Staffelgeschoss, Studiofläche oder separater Einliegerlösung. Der Doppelhäuser Grundriss in dieser Klasse wird bei STREIF oft als Unikat entwickelt – mit Fokus auf Design, Lichtführung und architektonischer Wirkung.
Typische Merkmale:
- 6–7 Zimmer inkl. Gäste-/Arbeits-/Hobbyräume
- Repräsentativer Eingangsbereich
- Weitläufige Küche mit Insel und Vorratsraum
- Dachausbau, Studiofläche oder Galerie möglich
- Hoher Gestaltungsfreiraum – z. B. für Zwerchgiebel oder Staffelgeschoss
Jede Haushälfte wird dabei im Grundriss unabhängig von der Nachbarseite geplant – architektonisch harmonisch, aber funktional eigenständig.
3. Zimmeranzahl und ihre Auswirkungen auf den Grundriss
Die Anzahl der Zimmer bestimmt maßgeblich, wie flexibel eine Doppelhaushälfte genutzt werden kann - heute und in Zukunft. STREIF kann jede Haushälfte so planen, dass sie nicht nur optimal zum aktuellen Lebensmodell passt, sondern auch Raum für Veränderungen bietet: Familienzuwachs, Homeoffice, Pflege oder generationsübergreifendes Wohnen.
3 - 4 Zimmer: Kompakte Lösungen mit Komfort
Ein Grundriss mit drei bis vier Zimmern eignet sich besonders für Paare oder kleine Familien. Trotz kompakterer Fläche wird auf Komfort und Struktur nicht verzeichtet: Der Wohnbereich ist offengehalten, Schlaf- und Arbeitsräume sind klar gegliedert.
Typische Merkmale:
- Wohn-Ess-Bereich mit offener Küche
- Zwei Schlafzimmer mit Dusche/Wanne, zusätzliches Gäste-WC
- Hauswirtschaftsraum mit Technikanschluss
- Gute Zonierung zwischen Ruhe- und Lebensbereichen
STREIF achtet besonders auf klare Raumübergänge, gute Lichtführung und einen praktischen Alltagsschnitt - auch bei geringerer Zimmeranzahl.
5 Zimmer und mehr: Mehr Platz für Familien
Doppelhaushälften mit fünf oder mehr Zimmern bieten maximale Flexibilität. Sie eignen sich ideal für Familien mit mehreren Kindern, Paare mit mehreren Homeoffice-Bedarfen oder Haushalte, die ein Gästezimmer oder Hobbyraum integrieren möchten.
Typische Merkmale:
- Drei Schlafzimmer im Obergeschoss
- Zusätzliches Büro, Gäste- oder Spielzimmer im Erdgeschoss
- Zwei vollwertige Bäder (z. B. Elternbad und Kinderbad)
- Ankleide oder private Rückzugsbereiche im OG
- Erweiterbar um Dachstudio oder Galerie
STREIF kann bei Bedarf zukunftssicher planen und Ausbaureserven, multifunktionalen Räumen und optionalen Sonderlösungen wie einem Staffelgeschoss.
4. Haustechnik und Nebenräume clever geplant
Nebenräume entscheiden über den Wohnkomfort einer Doppelhaushälfte – sie schaffen Ordnung, erleichtern Abläufe und sorgen für klare Strukturen im Alltag. STREIF plant jeden Grundriss für Doppelhäuser so, dass Haustechnik, Hauswirtschaft und Lagermöglichkeiten optimal integriert sind – ohne dabei wertvolle Wohnfläche zu verlieren.
Haustechnik, Hauswirtschaft und Abstellfläche clever geplant
Jede Doppelhaushälfte bei STREIF verfügt über eine eigene Haustechnikzone – unabhängig von der Nachbarhälfte. So bleibt die technische Versorgung vollständig getrennt und die Eigentümer bleiben flexibel bei Ausstattung und Nutzung.
Typische Ausstattungen:
- Haustechnik-/Hauswirtschaftsraum
- Kombinierte Lösungen mit Vorrats- oder Abstellflächen
- Optional: zusätzlicher Stauraum unter der Treppe oder im Dachgeschoss
Diese funktionalen Zonen werden so platziert, dass kurze Wege entstehen – z. B. zur Küche oder zum Hauseingang – und gleichzeitig Schall- und Geruchsentkopplung gewährleistet ist.
Garage, Carport oder Stellplatz - platzsparend gelöst
Parkflächen lassen sich bei Doppelhäusern besonders effizient planen. Ob integrierte Garage, angeschlossener Carport oder seitlich platzierter Stellplatz – STREIF achtet auf die harmonische Einbindung in das Gesamtbild und auf funktionale Übergänge ins Haus.
Planungsbeispiele:
- Direktzugang von Garage in den Hauswirtschaftsraum oder Windfang
- Schmutzschleuse zur Trennung von Außen- und Innenbereich
- Optionale Unterbringung von Technik oder Lagermöglichkeiten in der Garage
- Kombination mit überdachter Terrasse oder zusätzlichem Abstellraum
- So entstehen kompakte, aber durchdachte Lösungen – ideal abgestimmt auf Grundstück und Nutzungskonzept
5. Grundrisse für Doppelhäuser funktional und vielseitig
Ein gelungener Doppelhaus-Grundriss vereint architektonische Harmonie mit klarer Funktionalität. STREIF plant jede Doppelhaushälfte so, dass sie gestalterisch zum Gesamtgebäude passt, aber im Inneren vollständig eigenständig funktioniert. Die Balance zwischen Gemeinschaftsstruktur und individueller Wohnlösung ist dabei das zentrale Planungselement.
Bewährte Raumkonzepte und flexible Anordnung
Die Grundrisse bei STREIF basieren auf intelligenten Raumkonzepten, die über Jahre erprobt und stetig weiterentwickelt wurden. Ob versetzte Erschließung, unterschiedliche Grundrissspiegelungen oder Staffelungen – jede Haushälfte erhält dabei ihre eigene Identität.
Typische Merkmale:
- Offene Wohnkonzepte im Erdgeschoss mit klaren Blickachsen
- Rückzugsräume im Obergeschoss, optimal belichtet
- Flexible Erweiterungsmöglichkeiten durch Erker, Staffelgeschosse oder Dachausbau
- Sichtschutz und Privatsphäre zur Nachbarseite durch gezielte Fensterplanung
- Getrennte Terrassen und Gartenflächen mit klarer Zuordnung
STREIF achtet nicht nur auf die Funktionalität innerhalb der Haushälfte, sondern auch auf die Wirkung nach außen: Die Grundrisse unterstützen ein modernes, hochwertiges Erscheinungsbild – und bieten dabei maximale Flexibilität für die Bewohner.
6. Planungstipps für Ihre Doppelhaushälfte
Ein Doppelhaus ist mehr als nur die Hälfte eines Ganzen – es ist eine eigenständige Wohneinheit mit individuellem Charakter. Damit eine Doppelhaushälfte langfristig überzeugt, kommt es auf eine vorausschauende Planung an. STREIF unterstützt Bauherren dabei mit Erfahrung, Fachkompetenz und einem klaren Verständnis für die Alltagstauglichkeit moderner Grundrisse.
Alltagslogik, Privatsphäre & Grundstücksausnutzung
Ein durchdachter Grundriss für eine Doppelhaushälfte schafft die Grundlage für ein komfortables Wohngefühl – auch auf begrenztem Raum. Die kluge Anordnung der Räume, gezielte Blickachsen und funktionale Übergänge zwischen den Bereichen sorgen für kurze Wege, viel Tageslicht und einen klaren Ablauf im Alltag.
Wichtige Planungsschwerpunkte:
- Aufenthaltsräume auf die freie Gebäudeseite orientieren
- Fenster- und Terrassenpositionierung für Privatsphäre
- Technik- und Abstellräume kompakt, aber zentral gelegen
- Optional: Home-Office-Zonen oder Gästezimmer im EG
- Flächenreserven für spätere Nutzung (z. B. Studioausbau im DG)
Zusätzlich wichtig: die Grundstücksoptimierung. Die Ausrichtung der Haushälfte, die Position der Zufahrt, die Platzierung von Stellplätzen und die Einbindung der Außenbereiche spielen eine zentrale Rolle – gerade bei Reihenbebauung oder kompakten Parzellen.
STREIF begleitet diesen Prozess mit detaillierter Planung, abgestimmt auf Bauvorschriften, Gestaltungsrichtlinien und die persönlichen Wünsche der Baufamilie – zuverlässig, individuell und mit Fair- und Festpreisgarantie.
7. STREIF Doppelhäuser: Architektur und Beratung mit Konzept
Doppelhäuser sind bei STREIF mehr als eine effiziente Bauform – sie stehen für architektonische Qualität, funktionale Grundrisse und nachhaltiges Bauen auf hohem Niveau. Jede Doppelhaushälfte wird als eigenständige Einheit geplant und ausgeführt – mit individueller Raumstruktur, technischer Autarkie und gestalterischer Freiheit.
Individuelle Planung & Fair- und Festpreisgarantie
Die Planungsfreiheit beginnt bereits bei der Grundrissentwicklung: Ob klassische Raumaufteilung oder modernes Wohnkonzept mit Galerie, Erker oder Home-Office – STREIF entwickelt jede Haushälfte gemeinsam mit den Bauherren und berücksichtigt dabei Grundstück, Bebauungsplan und persönliche Vorstellungen.
Was STREIF auszeichnet:
- Maßgeschneiderte Grundrissplanung von 120 qm bis über 200 qm
- Zwei Vollgeschosse ohne Dachschrägen (je nach Hauskonzept)
- Integration individueller Wohnwünsche und Raumideen
- Energieeffiziente Bauweise als KfW-Effizienzhaus 40
- Nachhaltige Holztafelbauweise mit hervorragender Schalltrennung
- Transparenz und Sicherheit durch die Fair- und Festpreisgarantie
Dank industrieller Präzision in der Vorfertigung, jahrzehntelanger Bauerfahrung und einem starken Fokus auf Qualität entsteht aus jeder Doppelhaushälfte ein Zuhause – durchdacht geplant, zukunftsfähig gebaut und individuell gestaltet.

















