Stadtvilla Grundrisse von 140 bis über 170 qm - stilvoll planen mit STREIF
Sie möchten eine Stadtvilla bauen und suchen nach dem passenden Grundriss für Ihre Wohnfläche?
Ob unter 140 qm, im Bereich von 140 bis 170 qm oder darüber hinaus – STREIF bietet individuelle Grundrisslösungen, die sich exakt an Ihre Anforderungen, Ihr Grundstück und Ihren Stil anpassen lassen. Im folgenden Beitrag finden Sie fundierte Informationen, architektonische Inspirationen und konkrete Beispiele für die Planung Ihrer persönlichen Traum-Stadtvilla mit zwei Vollgeschossen.
Jetzt Stadtvillen-Katalog anfordern
Hier finden Sie Stadtvilla Grundrisse für Ihre verfügbare Fläche
Lassen Sie sich von den modernen Villa Grundrissen inspirieren. Je nachdem wie groß Ihre Familie ist, finden Sie Ideen für Ihre Hausplanung. Prinzipiell baut STREIF jede Fertighaus-Villa individuell – ob kompakt, großzügig oder als Stadtvilla mit Garage. Die gezeigten Grundrisse dienen als Grundlage. In der Aufteilung der Räume und Position der Innenwände sind Sie flexibel. Mit Anbauteilen, wie z. B. Erkern, Carports oder Überdachungen können die Stadtvillen individualisiert werden. Sie wünschen sich Holz- oder Natursteinakzente für die Fassadengestaltung? Auch diese Details besprechen wir gerne mit Ihnen.

Wie möchten Sie leben?Hier finden Sie Ideen für Ihre Stadtvilla.
Trends beim Bauen einer Stadtvilla.









Sie fragen
Wie viele Zimmer sind bei einer Stadtvilla sinnvoll?
Die Zimmeranzahl hängt stark von den individuellen Bedürfnissen ab. In der Regel bieten 4-Zimmer-Stadtvillen eine kompakte, durchdachte Lösung für kleine Familien oder Paare. 5-Zimmer-Varianten ermöglichen zusätzliche Räume für Home-Office, Gäste oder Hobbys und sind besonders bei Stadtvillen mit 150 – 200 qm beliebt.
Welche Grundrisse gibt es für Stadtvillen mit 150 oder 200 qm?
STREIF bietet eine Vielzahl realisierter Grundrisse für Stadtvillen mit 150 qm oder 200 qm Wohnfläche. Diese reichen von klassischen Familiengrundrissen bis hin zu modernen Konzepten mit Galerie, Gästezimmer, Ankleide oder Wellnessbad. Alle Grundrisse lassen sich individuell anpassen – je nach Grundstück, Bedarf und Architekturwunsch.
Gibt es Stadtvilla-Grundrisse mit Garage?
Ja – bei STREIF lassen sich Stadtvillen mit Garage oder Carport flexibel planen. Der Zugang erfolgt häufig über den Hauswirtschaftsraum oder eine integrierte Schmutzschleuse, sodass ein funktionaler Übergang zwischen Wohn- und Außenbereich entsteht. Auch Doppelgaragen oder Garagen mit Kelleranschluss in einer Hanglage sind realisierbar.
Ist ein Keller bei einer Stadtvilla möglich?
Selbstverständlich. Eine Stadtvilla mit Keller bietet zusätzlichen Raum für Technik, Vorräte, Hobbys oder sogar eine Einliegerwohnung. Die Planung erfolgt in enger Abstimmung mit Grundstück und Grundriss. Auf Wunsch auch mit Anbindung an das Haupthaus oder separat.
Wie energieeffizient sind Stadtvillen von STREIF?
STREIF Stadtvillen werden standardmäßig als KfW-Effizienzhaus 40 gebaut. Die Kombination aus moderner Haustechnik, exzellenter Dämmung und nachhaltiger Holztafelbauweise sorgt für niedrige Energiekosten und ein gesundes Raumklima.
Wie individuell sind die Grundrisse bei STREIF?
Bei STREIF wird jeder Grundriss gemeinsam mit den Bauherren entwickelt. Ob klassisch, modern oder mit besonderen architektonischen Elementen – Raumstruktur, Größe, Ausstattung und Erweiterungen wie Garage, Carport oder Keller werden exakt auf Ihre Anforderungen abgestimmt.
Unsere Kunden
kommen zu Wort.












Interesse?

Sie möchten zukünftig schöner Wohnen und zum Thema Hausbau gut informiert sein? Unsere Kataloge und Broschüren bieten eine Vielzahl an Hausentwürfen mit Grundrissen zur Inspiration und Ideenfindung. Sie geben aber auch eine Übersicht der Bauoptionen, der möglichen Ausstattungsvarianten und zeigen Trends sowie Innovationen aus Referenzhäusern.
In unseren Katalogen mit den verschiedenen Hausbaureihen
- Stadtvillen
- Einfamilienhäuser
- Bungalows
- Doppelhäuser und
- Mehrfamilienhäuser
erhalten Sie einen umfassenden Überblick über die Möglichkeiten des modernen Fertighausbaus - von der Architektur bis zu individuellen Grundrisslösungen.
Wissenscheck
Flexible Grundrissplanung
für Ihre Stadtvilla
Bedeutung der Grundrissplanung bei Stadtvillen
Eine Stadtvilla steht für zeitlose Architektur und großzügiges Wohnen auf zwei Vollgeschossen. Die Bauherren profitieren von flexiblen Stadtvilla Grundrissen, die sich perfekt an individuelle Wünsche und Grundstücksgegebenheiten anpassen lassen. Entdecken Sie, welche Möglichkeiten Ihnen STREIF bei der Planung Ihrer Stadtvilla bietet – funktional, modern und nachhaltig gebaut.
Bedeutung der Grundrissplanung bei Stadtvillen
Eine Stadtvilla steht für zeitlose Architektur und großzügiges Wohnen auf zwei Vollgeschossen. Die Bauherren profitieren von flexiblen Stadtvilla Grundrissen, die sich perfekt an individuelle Wünsche und Grundstücksgegebenheiten anpassen lassen. Entdecken Sie, welche Möglichkeiten Ihnen STREIF bei der Planung Ihrer Stadtvilla bietet – funktional, modern und nachhaltig gebaut.
1. Beliebte Grundrisse für Stadtvillen
Die Stadtvilla gehört zu den gefragtesten Haustypen im modernen Wohnbau. Ihre klare Formensprache, zwei Vollgeschosse ohne Dachschrägen und die vielfältigen Gestaltungsmöglichkeiten machen sie zu einem idealen Zuhause für Menschen mit Anspruch an Raum, Stil und Struktur. Der Grundriss spielt dabei eine zentrale Rolle – denn er entscheidet darüber, wie die Architektur mit dem Lebensstil der Bewohner harmoniert.
Ein gut geplanter Grundriss einer Stadtvilla verbindet Funktionalität mit Großzügigkeit. Offene Wohnbereiche, separate Rückzugszonen und durchdachte Verkehrsflächen sorgen für ein stimmiges Raumgefühl. Anders als bei eingeschossigen Haustypen bietet die Stadtvilla dank ihrer zwei Vollgeschosse maximale Gestaltungsfreiheit – sowohl im Erdgeschoss mit großzügiger Küche, Wohn- und Essbereich als auch im Obergeschoss mit Schlafräumen, Arbeitszimmern und Badlandschaften.
STREIF bietet dabei nicht nur architektonische Vielfalt, sondern auch maximale Flexibilität in der Planung: Jeder Stadtvilla Grundriss wird individuell entworfen und kann exakt auf die Bedürfnisse der Baufamilie abgestimmt werden – ganz gleich, ob es sich um eine kompakte Stadtvilla mit 140 qm oder eine repräsentative Stadtvilla mit 200 qm Grundfläche handelt.
Dank nachhaltiger Holztafelbauweise, energieeffizienter Haustechnik und wohngesunder Materialien werden bei STREIF nicht nur optische, sondern auch funktionale und ökologische Ansprüche erfüllt. Die Grundrissplanung wird damit zur entscheidenden Basis für ein Zuhause, das heute begeistert – und morgen noch passt.
2. Fertighaus-Stadtvillen und ihre Grundrissvarianten
Flexibilität und Individualität in der Fertighausplanung
Fertighaus-Stadtvillen verbinden modernes Wohnen mit maximaler Planungsfreiheit. Durch die präzise Vorfertigung in nachhaltiger Holztafelbauweise entsteht nicht nur ein zügiger Bauablauf, sondern auch ein Höchstmaß an architektonischer Vielfalt. Ob kompakte Bauweise oder großzügiges Raumkonzept – die Grundrisse für Stadtvillen lassen sich bei STREIF individuell anpassen und bieten somit für jede Lebensphase die passende Lösung.
Jeder Grundriss einer Stadtvilla entsteht in enger Abstimmung mit den Bauherren. Die Anforderungen an Raumaufteilung, Anzahl der Zimmer, Belichtung oder Flächenaufteilung fließen direkt in die Planung ein. So entstehen Lösungen, die weit über typische Standardgrundrisse hinausgehen.
Besonders beliebt sind bei STREIF die Stadtvilla Grundrisse 150 qm bis 200 qm, bei denen Stil, Funktion und Raumgefühl optimal zusammenspielen. Klassisch geschnittene Familienhäuser mit vier bis fünf Zimmern, moderne Lösungen mit Galerie, Home-Office oder Rückzugszonen – alles ist möglich.
Auch besondere Anforderungen wie ein Grundriss Stadtvilla 200 qm mit Garage, ein abgetrennter Gästebereich oder ein kombinierter Wohn-Arbeitsbereich lassen sich problemlos realisieren. Dabei bleibt das äußere Erscheinungsbild stets elegant und repräsentativ – ganz gleich ob mit Flachdach, Zeltdach oder Walmdach.
STREIF steht dabei nicht nur für Individualität, sondern auch für Verlässlichkeit: Dank Fair- und Festpreisgarantie wird aus dem Wunschgrundriss eine sichere Investition in die Zukunft – hochwertig geplant, energieeffizient gebaut und exakt auf die Bedürfnisse der Bauherren abgestimmt.
3. Gefragte Stadtvilla-Größen und ihre Grundrisse
Stadtvillen ab 115 qm
Stadtvillen mit 140 - 170 qm Wohnfläche
Stadtvillen mit mehr als 170 qm
Die Wahl der richtigen Wohnfläche ist einer der entscheidenden Faktoren beim Hausbau – insbesondere bei der Planung einer Stadtvilla. Je nach Grundstück, Lebensmodell und Zukunftsaussichten bieten sich unterschiedliche Flächenkonzepte an. STREIF bietet hierfür maßgeschneiderte Lösungen in drei besonders nachgefragten Größenklassen: bis140 qm, 140–170 qm und über 170 qm.
Mit einer klaren Struktur, zwei Vollgeschossen und großzügigen Fensterflächen bieten alle Varianten der Grundrisse für Stadtvillen bei STREIF ein harmonisches Zusammenspiel aus Funktion, Design und Wohnkomfort – perfekt für Familien, Paare oder Mehrgenerationenhaushalte.
Jetzt Ihre regionale Bauberatung anfragen
Stadtvillen ab 115 qm Wohnfläche
Auch im kompakten Maßstab bietet STREIF individuelle Stadtvilla-Konzepte mit hochwertiger Architektur und effizienter Raumaufteilung. Bereits ab 115 m² Wohnfläche lässt sich eine vollwertige Stadtvilla realisieren – ideal für Paare, kleine Familien oder Bauherren mit begrenztem Grundstück oder Budgetrahmen.
Typische Merkmale:
• Zwei Vollgeschosse ohne Dachschrägen
• Klare Raumaufteilung mit offenem Wohnbereich und 2–3 Schlafzimmern
• Stilvolle Fassadengestaltung und moderne Dachformen
• Eigenständiger Technikbereich, optional mit Gäste-WC oder Hauswirtschaftsraum
Diese kompakten Varianten bieten einen besonders wirtschaftlichen Einstieg in das Stadtvilla-Konzept – ohne Kompromisse bei Stil, Wohnqualität oder Energieeffizienz.
Stadtvillen bis 140 qm Wohnfläche
Ein Grundriss bis 140 qm bietet eine perfekte Balance aus Raumangebot und effizienter Flächennutzung. Diese Variante eignet sich ideal für Paare oder Familien mit bis zu zwei Kindern. Trotz der kompakten Größe lassen sich alle wichtigen Wohnfunktionen realisieren - vom offenen Wohn-Ess-Bereich im Erdgeschoss bis hin zu drei vollwertigen Zimmern im Obergeschoss.
Typische Merkmale:
• 4 Zimmer auf zwei Ebenen
• Gäste-WC und Haustechnik-/Hauswirtschaftsraum im EG
• Separate Küche oder offene Lösung
• Symmetrische Raumaufteilung durch zwei Vollgeschosse
Die Stadtvilla Grundrisse 140 qm sind ein idealer Einstieg in stilvolles, städtisches Wohnen - individuell planbar und auf Wunsch mit zusätzlichem Stauraum oder Garage kombinierbar.
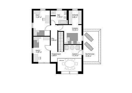
Stadtvillen mit 140–170 qm Wohnfläche
Diese Wohnflächenklasse ist besonders beliebt bei Familien, die auf Komfort und Flexibilität Wert legen. Die Grundrisse Stadtvilla 150 qm bis 160 qm bieten Platz für großzügige Wohnbereiche, ein separates Home-Office oder Gästezimmer sowie zwei Badezimmer. Auch individuelle Gestaltungselemente wie Ankleide, Hauswirtschaftszone oder Galerie lassen sich problemlos integrieren.
Typische Merkmale:
• 5 Zimmer und mehr
• Offene Grundrissgestaltung mit Zonierung
• Masterbedroom mit Ensuite-Bad
• Möglichkeit zur Verbindung von Wohnen und Arbeiten
STREIF bietet in diesem Segment eine Vielzahl realisierter Beispiele, darunter auch moderne Lösungen wie der Grundriss Stadtvilla 160 qm modern, bei dem Design und Funktionalität optimal vereint werden.
Stadtvillen mit 170 qm oder mehr Wohnfläche
Wer großzügig plant, entscheidet sich für eine Stadtvilla mit über 170 qm Wohnfläche – oft sogar bis zu 200 qm und mehr. In dieser Größenklasse eröffnen sich vielfältige Möglichkeiten: separate Trakte für Eltern und Kinder, Arbeitszimmer, Gästeeinheit, Wellnessbad oder Fitnessbereich.
Typische Merkmale:
• Flexible Gestaltung mit Galerie, Lufträumen oder Anbau
• Integrierte Garage oder Doppelgarage möglich
• Optionaler Keller zur zusätzlichen Nutzung
Gerade der Grundriss Stadtvilla 200 qm mit Garage erfreut sich großer Beliebtheit – ideal für Menschen mit hohem Platzbedarf oder individuellen Wohnvorstellungen. Alle Varianten basieren auf den energieeffizienten, wohngesunden Standards von STREIF – mit KfW 40 Klassifizierung und garantierter Planungs- und Kostensicherheit.
4. Anzahl der Zimmer und Ihre Auswirkungen auf den Grundriss
4-Zimmer-Stadtvilla: kompakt und durchdacht
5-Zimmer-Stadtvilla: großzügig wohnen mit Struktur
Die Zimmeranzahl ist ein zentrales Kriterium bei der Grundrissgestaltung – sie entscheidet maßgeblich über die Funktionalität und Nutzbarkeit der Stadtvilla. Ob kompaktes 4-Zimmer-Konzept oder großzügiger 5-Zimmer-Grundriss: STREIF bietet für jede Lebenssituation die passende Lösung.
4-Zimmer-Stadtvilla: kompakt und durchdacht
Ein Stadtvilla Grundriss mit 4 Zimmern eignet sich ideal für Paare oder kleine Familien, die Wert auf offene Wohnbereiche und kurze Wege legen. In dieser Konfiguration steht meist ein großzügiger Wohn-Ess-Kochbereich im Fokus, ergänzt durch ein Schlafzimmer, ein Kinderzimmer oder Büro sowie ein Gästezimmer oder Hobbyraum.
Typische Merkmale:
• Offene Erdgeschosslösung mit zentralem Wohnbereich
• Zwei Schlafzimmer und zusätzliches Zimmer im OG
• Gästebad oder separates WC möglich
• Kompakte, aber gut strukturierte Verkehrsfläche
Durch die klare Zonierung bleibt die Stadtvilla übersichtlich und effizient – ohne auf Komfort zu verzichten.
5-Zimmer-Stadtvilla: großzügig wohnen mit Struktur
Wer mehr Platz für Familie, Gäste oder das Arbeiten von zu Hause benötigt, entscheidet sich häufig für eine Stadtvilla mit 5 Zimmern. Diese Variante überzeugt durch Flexibilität in der Raumaufteilung: Neben dem Wohnbereich lassen sich Rückzugszonen, ein Home-Office oder eine Gästeeinheit gezielt unterbringen – ohne die Großzügigkeit des Grundrisses zu beeinträchtigen.
Typische Merkmale:
• Zwei Kinderzimmer + Elternbereich mit Ankleide
• Büro oder Gästezimmer im EG oder OG
• Zwei vollwertige Bäder
• Optionale Galerie oder Luftraum im Treppenbereich
Besonders bei Grundrissen Stadtvilla 150 qm bis 200 qm lässt sich diese Struktur hervorragend umsetzen. STREIF plant dabei immer individuell – auf Wunsch auch mit separatem Zugang, Anbau oder Kellererweiterung.
5. Integration von Zusatzräumen
Stadtvilla mit Garage oder Carport
Stadtvilla mit mit Keller - mehr Rau, mehr Möglichkeiten
Zusätzliche Räume wie eine Garage, ein Carport oder ein Keller erweitern nicht nur den funktionalen Nutzen einer Stadtvilla, sondern beeinflussen auch ihren Grundriss. Gerade bei STREIF werden diese Elemente von Anfang an in die Architektur integriert – ästhetisch, durchdacht und baulich stimmig.
Stadtvilla mit Garage oder Carport
Ob Einzelgarage, Doppelgarage oder Carport – die Einbindung von Stellflächen in die Grundrissplanung ist bei STREIF problemlos möglich. Besonders beliebt sind Grundrisse Stadtvilla 200 qm mit Garage, bei denen ein zusätzlicher Nebeneingang oft direkt über den Hauswirtschaftsraum oder eine sogenannte Schmutzschleuse erfolgt – ideal, um den Wohnbereich sauber zu halten.
Vorteile:
• Wettergeschützter Zugang zum Haus
• Zusätzlicher Stauraum für Technik, Gartengeräte, Fahrräder
• Integrierte Schmutzschleuse für saubere Übergänge vom Außen- in den Innenbereich
• Möglichkeit zur Kombination mit Vorratsraum oder Abstellkammer
Gestalterisch harmonische Integration in die Gesamtarchitektur STREIF plant Garagenlösungen immer im Einklang mit Fassade, Dachform und Zufahrtsituation – ob angebaut, integriert oder freistehend.
Stadtvilla mit Keller – mehr Raum, mehr Möglichkeiten
Ein Keller ist mehr als nur Lagerfläche – er schafft Platzreserven für Technik, Hobbys, Fitness oder Gäste. Bei STREIF kann jede Stadtvilla mit Keller realisiert werden – angepasst an die Gegebenheiten des Grundstücks und die Bedürfnisse der Bauherren.
Typische Nutzungsmöglichkeiten:
• Technikraum für Heizung, Wärmepumpe oder Haustechnik
• Wasch- und Trockenraum
• Hobby- oder Musikraum
• Lagerflächen oder Vorratsräume
Auch bei der Kombination von Keller und Garage entstehen durch STREIF intelligente Raumlösungen, die den Wohnkomfort spürbar erhöhen – ohne dabei Kompromisse in Gestaltung oder Energieeffizienz einzugehen.
6. Moderne Stadtvillen-Grundrisse mit Charakter
Grundrissvarianten im modernen Stil
Der architektonische Reiz einer Stadtvilla liegt in ihrer klaren Formensprache und der Möglichkeit, individuelle Gestaltungselemente stilvoll zu integrieren. Besonders gefragt sind heute moderne Stadtvilla Grundrisse, die Offenheit, Licht und Funktionalität miteinander verbinden – ohne dabei auf Struktur und Wohnkomfort zu
verzichten.
Ein Grundriss Stadtvilla modern zeichnet sich durch großzügige Raumzuschnitte, offene Wohnkonzepte und gezielte Akzente in der Raumaufteilung aus. Typische Merkmale sind weitläufige Wohn-Ess-Kochbereiche im Erdgeschoss, große Fensterfronten mit Terrassenzugang, flexible Räume für Home-Office und Gäste sowie klare Achsen in der Erschließung.
Merkmale moderner Grundrisse:
• Offene Erdgeschosszonen mit Sichtachsen
• Bodentiefe Fenster und fließender Übergang zum Außenbereich
• Galerie, Lufträume oder Eingangsinszenierungen als architektonisches Statement
• Verbindung von Technikraum, Schmutzschleuse und Küche für kurze Wege
Auch im Obergeschoss setzen moderne Stadtvillen auf klare Linien: Schlafzimmer mit Ankleide, private Bäder, Arbeitsbereiche oder Rückzugszonen für Teenager lassen sich harmonisch in das Gesamtkonzept integrieren.
Die Grundrisse Stadtvilla 150 qm bis 200 qm bieten hierfür die ideale Fläche. STREIF begleitet die Gestaltung mit fundierter Architekturberatung, realistischen Visualisierungen und einem klaren Fokus auf Energieeffizienz, Wohngesundheit und Zukunftsfähigkeit.
7. Planungstipps für den optimalen Stadtvilla-Grundriss
Wichtige Aspekte bei der Grundrissgestaltung
Ein durchdachter Grundriss ist die Grundlage für eine Stadtvilla, die nicht nur architektonisch überzeugt, sondern sich auch langfristig bewährt. Die Herausforderung liegt darin, Gestaltungsspielraum, Funktionalität und Zukunftstauglichkeit in Einklang zu bringen – exakt abgestimmt auf die Lebensrealität der Bauherren.
Wichtige Aspekte bei der Grundrissgestaltung
Ein optimaler Stadtvilla Grundriss basiert auf klarer Raumzonierung: öffentlicher Bereich (Wohnen, Kochen, Essen), halbprivater Bereich (Gäste, Arbeiten) und privater Rückzugsbereich (Schlafen, Kind, Bad). Diese Gliederung ermöglicht flüssige Abläufe im Alltag und ein ausgewogenes Verhältnis zwischen Kommunikation und Privatsphäre.
Wichtige Planungsschwerpunkte:
• Schmutzschleuse zwischen Garage und Hauswirtschaftsraum
• Gästezimmer mit eigenem Bad oder Arbeitsbereich im EG
• Direkte Verbindung von Küche und Terrasse
• Separates Elternbad oder Kinderbad im OG
• Platzreserven für Home-Office, Hobby oder spätere Umnutzung
Ein weiterer zentraler Aspekt ist die Zukunftsfähigkeit: Wer frühzeitig an barrierearme Erschließung, multifunktionale Räume oder Ausbaureserven denkt, kann seine Stadtvilla mit dem Leben mitwachsen lassen – ob Familie, Patchwork oder Homeoffice-Trend.
STREIF unterstützt Bauherren von der ersten Skizze an mit fundierter Beratung, visualisierter Grundrissplanung und dem Versprechen der Fair- und Festpreisgarantie. So entsteht ein Haus, das heute begeistert – und morgen noch passt.
8. STREIF Stadtvillen: Stilvoll, effizient und maßgeschneidert
Individuelle Planung mit Festpreisgarantie
Die Stadtvilla ist ein Ausdruck moderner Wohnkultur – und bei STREIF mehr als nur ein Haustyp. Sie steht für eine Architektur, die sich flexibel an individuelle Lebensmodelle anpasst. Jeder Stadtvilla Grundriss wird gemeinsam mit den Bauherren entwickelt – abgestimmt auf Anforderungen, Grundstück und Designvorstellungen.
Individuelle Planung mit Festpreisgarantie
STREIF begleitet Bauherren von der ersten Idee bis zum Einzug – mit klarem Prozess, verbindlicher Kommunikation und einem festen Ansprechpartner. Dank der Fair- und Festpreisgarantie ist jedes Projekt planbar, transparent und sicher kalkulierbar – unabhängig von Marktentwicklungen oder Bauverzögerungen.
Vorteile der STREIF Stadtvillen im Überblick:
• Zwei Vollgeschosse für maximale Flächennutzung
• Klares, modernes Design – von klassisch-elegant bis puristisch
• Energieeffiziente Bauweise nach KfW 40 Standard
• Nachhaltige Holztafelbauweise mit wohngesunden Materialien
• Individuelle Raumplanung mit vollständiger Grundrissfreiheit
• Kombination mit Keller, Garage oder Carport jederzeit möglich
Lassen Sie sich inspirieren - entdecken Sie die Vielfalt individuell planbarer STREIF-Stadtvillen.




















