Mehrfamilienhaus Grundrisse von 160 bis 320 qm - Planung mit STREIF
Sie möchten ein Fertighaus Mehrfamilienhaus bauen und suchen nach einem passenden Grundrissplan?
Ob 160 qm, zwischen 160 und 320 qm oder darüber hinaus - STREIF bietet flexible Lösungen für nachhaltige und architektonisch durchdachte Mehrfamilienhäuser. In diesem Beitrag erhalten Sie Inspirationen, Grundrissideen und alle wichtigen Planungsansätze für Ihr Bauvorhaben - von der kompakten Wohnlösung bis zum großzügigen Investitionsobjekt.
Jetzt Mehrfamilienhaus-Katalog anfordern
Hier finden Sie Mehrfamilienhäuser Grundrisse für Ihre verfügbare Fläche
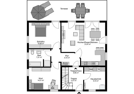
Lassen Sie sich von den Mehrfamilienhaus Grundrissen inspirieren. Je nachdem wie viele und wie große Wohneinheiten Sie für Ihr Mehrfamiliemhaus bauen möchten, haben wir Grundrissentwürfe für Sie. Prinzipiell baut STREIF jedes Mehrfamilienhaus individuell. Die gezeigten Grundrisse dienen als Inspiration. In der Aufteilung der Räume und Position der Innenwände sind Sie flexibel. Die Größe der Grundrisse ist auch eine wichtige Frage, wenn es ums Budget und die Finanzierung geht. Prinzipiell ist es auch möglich die Mehrfamilienhäuser mit unterschiedlich großen Wohneinheiten zu planen. Zum Beispiel wenn mehrere Generationen zusammen bauen möchten. Mit Anbauteilen, wie z. B. Erkern, Balkonen, Carports oder Überdachungen können die Mehrfamilienhäuser weiter individualisiert werden.

Wie möchten Sie leben?Hier finden Sie Ideen für Ihr Mehrfamilienhaus.
Sie fragen
Welche Ausbaustufen gibt es beim Fertighaus?
Bei STREIF bedeutet „schlüsselfertig“ auch „schlüsselfertig“.
Wenn Sie ein Fertighaus kaufen, können Sie zwischen verschiedenen Ausbaustufen wählen – je nachdem, wie viel Eigenleistung Sie selbst übernehmen möchten:
- Ausbaufertig: Der Rohbau steht, Sie übernehmen den Innenausbau selbst.
- Fastfertig: Technik, Sanitär und Elektro sind vorbereitet – ideal für ambitionierte Bauherren.
- Fastfertig+: Zusätzlich mit gefliesten Bädern und eingebauten Sanitärobjekten.
- Schlüsselfertig: Ihr Fertighaus ist vollständig bezugsfertig – inkl. Böden, Malerarbeiten und Innentüren.
STREIF bietet Ihnen alle Fertighaus Ausbaustufen flexibel an – für maximale Individualität und volle Kostenkontrolle.
In einer ausführlichen Bau- und Leistungsbeschreibung und in einem Leistungs- und Lieferverzeichnis zu Ihrem Haus wird jedes Detail aufgelistet und spezifiziert. So dass Sie und wir genau wissen, was bei Ihrem Hausbauprojekt vereinbart ist. Alle Dokumente und Informationen werden Ihnen digital zur Verfügung gestellt. Sie haben jederzeit auf Ihre Daten unter dem STREIF-Kundenportal Zugriff.
Weitere Informationen, welche Leistung in welcher Ausbaustufe enthalten sind, finden Sie hier.
Ist ein Fertighaus günstiger als ein Massivhaus?
Die Kosten für ein Fertighaus im Vergleich zu einem Massivhaus können von verschiedenen Faktoren abhängen, einschließlich Standort, Hausgröße, Ausstattungsmerkmalen und individuellen Anforderungen. Fertighäuser können oft kostengünstiger sein als Massivhäuser, weil sie in Fabriken in Serie produziert werden können, was zu Einsparungen bei Arbeitskosten und Materialien führt. Außerdem sind die Bauzeiten oft kürzer, was wiederum zu niedrigeren Arbeitskosten führen kann.
Massivhäuser werden vor Ort Stein für Stein gebaut, was oft mehr Zeit und Arbeitskraft erfordert, was die Kosten erhöhen kann. Allerdings können die Baumaterialen bei Massivhäusern niedriger sein, da weniger vorgefertigte Teile verwendet werden.
Es ist jedoch wichtig zu beachten, dass die Gesamtkosten für ein Haus von vielen Faktoren abhängen und es keine allgemeine Regel gibt, welcher Typ von Haus grundsätzlich günstiger ist.
Hier erfahren Sie mehr über das Thema Nachhaltigkeit beim Fertighausbau und zum Thema STREIF-Bauweise.
Welche Energiekonzepte und Technologien kommen im Fertighaus zum Einsatz?
Moderne Fertighäuser wie die von STREIF setzen auf zukunftsfähige Energiekonzepte, die nachhaltig, effizient und kostensparend sind. Ziel ist ein minimaler Energieverbrauch bei maximalem Wohnkomfort. Zum Einsatz kommen u. a.:
- Photovoltaik und Solarthermie: Nutzung von Sonnenenergie zur Stromerzeugung und Warmwasserbereitung.
- Wärmepumpen: Effiziente Heizsysteme, die Umweltwärme aus Luft, Boden oder Wasser nutzen.
- Lüftungssysteme mit Wärmerückgewinnung: Frische Luft und geringerer Heizbedarf bei konstant angenehmem Raumklima.
- Hochwärmedämmende Fenster und Türen: Minimieren Wärmeverluste und senken dauerhaft die Energiekosten.
- Intelligente Haustechnik und Steuerungssysteme: Smarte Lösungen für Licht, Temperatur und Energieverbrauch erhöhen Komfort und Effizienz im Alltag.
Unsere Kunden
kommen zu Wort.








Interesse?

Sie möchten zukünftig schöner Wohnen und zum Thema Hausbau gut informiert sein? Unsere Kataloge und Broschüren bieten eine Vielzahl an Hausentwürfen mit Grundrissen zur Inspiration und Ideenfindung. Sie geben aber auch eine Übersicht der Bauoptionen, der möglichen Ausstattungsvarianten und zeigen Trends sowie Innovationen aus Referenzhäusern.
In unseren Katalogen mit den verschiedenen Hausbaureihen
- Stadtvillen
- Einfamilienhäuser
- Bungalows
- Doppelhäuser und
- Mehrfamilienhäuser
erhalten Sie einen umfassenden Überblick über die Möglichkeiten des modernen Fertighausbaus - von der Architektur bis zu individuellen Grundrisslösungen.
Wissenscheck
Flexible Grundrissplanung
für Ihr Mehrfamilienhaus
Hausbauwissen zum Fertighaus
Ein Fertighaus ist eine moderne, vorgefertigte Wohnlösung, die in Bezug auf Bauzeit, Kosten, Energieeffizienz und Individualität viele Vorteile gegenüber konventionellen Bauweisen bietet. Wer ein Fertighaus kaufen möchte, profitiert von kurzen Bauzeiten, planbaren Kosten und einem hohen Maß an Gestaltungsfreiheit – von kleinen Fertighäusern bis zu modernen Architektenhäusern.
Hausbauwissen zum Fertighaus
Ein Fertighaus ist eine moderne, vorgefertigte Wohnlösung, die in Bezug auf Bauzeit, Kosten, Energieeffizienz und Individualität viele Vorteile gegenüber konventionellen Bauweisen bietet. Wer ein Fertighaus kaufen möchte, profitiert von kurzen Bauzeiten, planbaren Kosten und einem hohen Maß an Gestaltungsfreiheit – von kleinen Fertighäusern bis zu modernen Architektenhäusern.
1. Vorteile eines Fertighauses
Kosteneffizienz beim Fertighaus kaufen
Ein entscheidender Vorteil von Fertighäusern ist ihre Kosteneffizienz. Die industrielle Vorfertigung der Bauelemente ermöglicht eine exakte Planung und reduziert Material- sowie Arbeitskosten. Das minimiert nicht nur den Bauaufwand vor Ort, sondern erhöht auch die Planungs- und Preissicherheit. Bei STREIF sind die Fertighaus Preise transparent kalkulierbar, sodass Bauherren genau wissen, mit welchen Kosten für ihr Fertighaus zu rechnen ist – egal ob Ausbauhaus oder schlüsselfertige Lösung.
Schnelle Bauzeit beim Fertighaus bauen
Ein weiterer Pluspunkt: die extrem kurze Bauzeit. Während der Bau eines Massivhauses oft viele Monate dauert, ist ein Fertighaus – abhängig von der Ausbaustufe – bereits nach wenigen Wochen bezugsfertig. Das liegt an der präzisen Vorfertigung im Werk, wodurch auf der Baustelle lediglich die Montage und der Innenausbau erfolgt. Wer sein Fertighaus schlüsselfertig kaufen möchte, profitiert von einer guten Planbarkeit und verlässlichen Preisen für den Innenausbau.
Hohe Energieeffizienz durch moderne Bauweise
Fertighäuser von STREIF zeichnen sich durch ihre Energieeffizienz aus – nicht nur im Betrieb, sondern bereits in der Bauweise. Die Kombination aus hochwertiger Wärmedämmung, durchdachten Konstruktionen und optionalen Energiesystemen wie Photovoltaik oder Wärmepumpe kann jedes STREIF-Fertighaus zu einem KfW-Energieeffizienzhaus 40 werden.
2. Individualisierbarkeit und komplett individuelle Häuser mit STREIF als Fertighaus Anbieter
Ein Fertighaus nach Maß - ganz individuell planen
Egal ob kleines Fertighaus, Mehrgenerationenhaus oder moderne Stadtvilla: STREIF bietet eine große Vielfalt an Haustypen im Fertighausbau. Von der Raumaufteilung über die Fassade bis hin zu Ausstattung und Haustechnik – jedes Fertighaus kann individuell geplant werden. STREIF zählt zu den führenden Fertighaus Anbietern in Deutschland und begleitet Bauherren von der Idee bis zum Einzug.
Ausstattungsoptionen: Keller, Carport, Balkon und mehr
Die Ausstattungsmöglichkeiten bei STREIF sind vielseitig:
- Fertighaus mit Keller: mehr Stauraum und Technikfläche
- Fertighaus mit Dachterrasse oder Balkon: mehr Lebensqualität
- Fertighaus mit Garage oder Carport: Witterungsschutz und Komfort
- Fertighaus mit Erker: optisches Highlight und mehr Raum
- Fertighaus mit Panoramasitzfenster: mehr Licht und Ausblick genießen
Alle Varianten lassen sich individuell kombinieren – für ein Haus, das zu Ihrem Lebensstil passt.
Vielfalt der Dachformen für Ihr Fertighaus
Ob klassisch oder modern – bei STREIF wählen Sie aus verschiedenen Dacharten für Ihr Fertighaus:
- Flachdach: modern, ideal für Solar und Dachterrassen
- Pultdach: maximale Sonnenfläche, perfekt für PV
- Walmdach: eleganter Look mit hoher Stabilität
- Satteldach: bewährt, wirtschaftlich und zeitlos
- Zeltdach: kompakt, wetterbeständig, architektonisch reizvoll
Fertighaus-Dach Nutzen: Energieerzeugung mit PV und Solar
STREIF-Fertighäuser sind auf Wunsch mit einer leistungsstarken Photovoltaik-Anlage mit Batteriespeicher ausgestattet. In Verbindung mit der Warmbauweise entsteht ein nachhaltiges Energiekonzept, das:
- Ihre Stromkosten deutlich senkt
- Staatlich gefördert werden könnte (Nachhaltigkeitszertifizierung/Ökobilanzierung)
- einen wichtigen Beitrag zum Umweltschutz leistet
3. Fertighaus kaufen: Was kostet der Wohntraum?
Was kostet ein schlüsselfertiges Fertighaus?
Die Kosten für ein schlüsselfertiges Fertighaus variieren stark, abhängig von Größe, Ausstattung und individuellen Anpassungen. Ein schlüsselfertiges Fertighaus umfasst alle notwendigen Bauarbeiten, die komplette Innenausstattung sowie die Anschlüsse für Strom, Wasser und Heizung, sodass das Haus bei der Übergabe vollständig bewohnbar ist. STREIF bietet Ihnen dabei eine Fair-und Festpreisgarantie.
Kostenfaktoren und Einsparungsmöglichkeiten
Verschiedene Faktoren beeinflussen die Gesamtkosten eines Fertighauses:
1. Größe und Grundriss: Größere Häuser und aufwendigere Grundrisse erhöhen die Baukosten.
2. Ausstattung und Materialien: Hochwertige Materialien und spezielle Ausstattungen wie hochwertige Bäder z. B. mit übergroßen Fliesen, können die Kosten steigern.
3. Baustil und Architektur: Besondere architektonische Stile wie Bauhaus-Designs oder Winkelbungalows können die Kosten beeinflussen.
4. Grundstückskosten: Die Kosten für das Grundstück und dessen Erschließung variieren je nach Lage und Größe.
5. Nebenkosten: Dazu gehören Kosten für Genehmigungen, Gutachten und Versicherungen.
Trotz dieser Kostenfaktoren gibt es Einsparungsmöglichkeiten:
1. Standardisierte Designs: Der Verzicht auf maßgeschneiderte Anpassungen und die Wahl standardisierter Modelle kann die Kosten senken.
2. Effiziente Planung: Eine sorgfältige und effiziente Planung hilft, unnötige Kosten und Bauzeitverlängerungen zu vermeiden.
3. Fördermittel und Zuschüsse: Die Nutzung von staatlichen Förderprogrammen für energieeffizientes Bauen kann finanzielle Vorteile bieten. STREIF-Fertighäuser aus Deutschland sind Energieeffizienzhäuser KfW 40.
4. Eigenleistung: Bauherren, die bereit sind, bestimmte Arbeiten selbst auszuführen, können weitere Kosten einsparen.
Bei STREIF können sie z. B. Ihr Fertighaus auch als Ausbauhaus planen und mit Eigenleistung den Innenausbau selbst oder in Eigenregie durchführen lassen.
4. Geschichte und Entwicklung des Fertighausbaus
Ursprung und Fortschritte im Fertighausbau
Der Fertighausbau hat eine lange und faszinierende Geschichte, die bis ins 19. Jahrhundert zurückreicht. Die ersten Ansätze zum modularen Bauen entstanden in den USA, wo bereits Mitte des 19. Jahrhunderts Fertighäuser für Siedler produziert wurden. Diese frühen Fertighäuser wurden in Einzelteilen geliefert und vor Ort zusammengebaut, was die Bauzeit erheblich verkürzte, und den Siedlern ermöglichte, schnell und effizient neue Wohnräume zu schaffen.
In den 1940er und 1950er Jahren erlebte der Fertighausbau einen bedeutenden Aufschwung, insbesondere nach dem Zweiten Weltkrieg. Der dringende Bedarf an Wohnraum führte zu einer steigenden Nachfrage nach schnell errichtbaren und kostengünstigen Wohnlösungen. In dieser Zeit wurden die Grundlagen für moderne Fertighäuser gelegt, die durch industrielle Fertigung und standardisierte Prozesse gekennzeichnet sind.
Das Fertighaus in Deutschland
In Deutschland begann die Entwicklung des Fertighausbaus in den 1960er Jahren. Die ersten Fertighäuser wurden als einfache, preiswerte Alternativen zu traditionellen Häusern angeboten. Mit der Zeit hat sich die Technologie jedoch erheblich weiterentwickelt, und moderne Fertighäuser bieten heute eine Qualität und Langlebigkeit, die mit konventionellen Bauweisen vergleichbar ist.
Deutsche Fertighaushersteller wie STREIF haben sich als führende Anbieter etabliert, die durch Innovation und Qualität überzeugen. Die Häuser werden in hochmodernen Produktionsanlagen gefertigt, was eine gleichbleibend hohe Qualität gewährleistet. Durch den Einsatz von nachhaltigen Materialien und energieeffizienten Technologien setzen deutsche Fertighäuser heute auch Maßstäbe in Sachen Umweltfreundlichkeit und Energieeffizienz. Die Entwicklung des Fertighausbaus in Deutschland ist geprägt von kontinuierlicher Innovation und Anpassung an die Bedürfnisse der Bauherren. Die heutigen Fertighäuser bieten eine Vielzahl von Design- und Ausstattungsoptionen, die individuell auf die Wünsche und Anforderungen der Kunden abgestimmt werden können. Diese Flexibilität macht den Fertighausbau zu einer attraktiven Wahl für viele Bauherren.
Mit der zunehmenden Bedeutung von Nachhaltigkeit und Energieeffizienz haben sich Fertighäuser auch in diesen Bereichen stark weiterentwickelt. Moderne Fertighäuser sind oft mit hochisolierenden Materialien und innovativen Energiekonzepten ausgestattet, die den Energieverbrauch minimieren und die Umweltbelastung reduzieren.
5. Massivhaus oder Fertighaus
Die Wahl zwischen einem Massivhaus und einem Fertighaus beschäftigt viele Bauinteressierte. Während das Massivhaus oft mit traditioneller Bauweise und langer Haltbarkeit assoziiert wird, bietet das moderne Fertighaus heute entscheidende Vorteile – gerade in einer Zeit, in der Effizienz, Nachhaltigkeit und Planbarkeit immer wichtiger werden.
Massivhäuser bestehen meist aus Ziegeln, Beton oder Stein und punkten mit hoher Wärmespeicherfähigkeit und solidem Erscheinungsbild. Doch diese Bauweise erfordert in der Regel eine deutlich längere Bauzeit, verursacht höhere Kosten und bringt mehr Planungsaufwand mit sich.
Fertighäuser, insbesondere in Holztafelbauweise, stehen dem in nichts nach – im Gegenteil:
Sie überzeugen durch eine präzise Vorfertigung, kurze Bauzeiten, klare Kostenstruktur und exzellente Energieeffizienz. Bei STREIF erhalten Sie ein individuell geplantes Fertighaus, das architektonisch anspruchsvoll, nachhaltig gebaut und exakt auf Ihre Bedürfnisse abgestimmt ist.
Das moderne Fertighaus ist heute nicht nur gleichwertig, sondern in vielen Punkten die zukunftssicherere Wahl – besonders für Bauherren, die Wert auf Transparenz, Nachhaltigkeit, Flexibilität und Geschwindigkeit legen.







