Mehrwerthaus Quattro + Duo 544 - Garten
MEHRFAMILIENHAUS

Mehrfamilienhaus Quattro + Duo 544 qm mit 6 Wohneinheiten


Das Mehrfamilienhaus mit 6 Wohneinheiten punktet mit einer klassischen Architektur mit Satteldach. Optional können Zwerchgiebel, Gauben oder Balkone eingeplant werden.

2 Wohnungen im EG mit 82 m², 2 Wohnungen im OG mit 87 m² und 2 Wohnungen im DG mit 72 m² für Singles, Paare und kleine Familien geeignet.

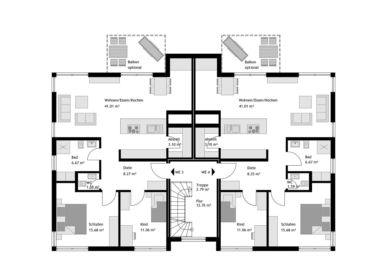
Architektur und Grundrissgestaltung des Mehrfamilienhauses
Zur Gartenseite hin sind große, bodentiefe doppelflügelige Terrassentüren geplant, die die Räume mit viel Tageslicht und einem großzügigen Ambiente verwöhnen. Der Haustechnikraum ist im Erdgeschoss geplant und bietet einen Zutritt von außen. Die beiden Wohnungen im Erdgeschoss und die beiden Wohnungen im Obergeschoss bieten einen schönen Wohn-, Ess- und Kochbereich, ein Bad, ein Gäste-WC, ein Abstellraum und jeweils zwei Schlafräume. Die Wohnungen im Dachgeschoss sind etwas kleiner, bieten trotzdem 2 Schlafräume, 1 Bad, 1 Wohn-, Ess- und Kochbereich sowie einen Abstellraum. Die Wohnungen sind geeignet für Singles, Paare oder kleine Familien.

KfW-Fördermöglichkeiten in Form von zinsgünstigen Darlehen gelten je Wohneinheit
Das Haus kann in verschiedenen Ausbaustufen (fastfertig+ oder schlüsselfertig) und Ausstattungslinien flexibel ausgebaut und ausgestattet werden. Gemäß den Wünschen der Bauherren/Bauträger kann das Haus als Effizienzhaus 40 oder 55 ausgeführt werden. Aufgrund der gewünschten Grundriss- und Dachkonstruktion sowie Effizienzhausstufe kann eine Ökobilanzierung KfWG oder eine Nachhaltigkeitszertifizierung (KFWG-Q) QNG-PLUS für den Klimafreundlicher Neubau (KFN) möglich sein. Unsere Bauberatungen informieren Sie gerne über die aktuellen Fördermöglichkeiten.

Stammdaten
Haustyp: 2,5-geschossiges Mehrfamilienhaus mit 6 Wohneinheiten
Dachform: Satteldach 45°, Kniestock 1 m
Hausmaße ohne Anbauteile: 18,79 m x 11,83 m
Netto-Raumfläche: 543,76 m²

Besonderheiten
- Haustechnikraum im Erdgeschoss mit separatem Zugang
- Optional mit Zwerchgiebel, Gaube oder Balkon möglich
- Zurückgezogener Hauseingang an der Frontseite

* Abbildungen können Sonderausstattungen oder Anbauteile zeigen, die nicht im Lieferumfang enthalten sind.

Alles auf einem Blick
Haustyp:Mehrfamilienhaus
Netto-Raumfläche:544,00 m²
Objektart:2,5-geschossig
Dachform:Satteldach
Energiestandard:Effizienzhaus 40 oder 55
STREIF-Haus-ID: TH-MFH-SD-544
Mehrwerthaus Quattro + Duo 544 - Front

Ausbaustufe


4 Möglichkeiten – viel Flexibilität

STREIF bietet Ihnen vom Ausbauhaus bis zum schlüsselfertigen Haus vier Ausbaustufen zur Auswahl. Das bedeutet für Sie maximale Flexibilität, ob und wie viel Eigenleistung Sie erbringen möchten.

Mehr erfahren

Ausstattung


Vom Draußen und Drinnen

In der Ausstattung bestimmen Sie die Details, die bei Ihrem Hausbau ausgeführt werden sollen. Das betrifft das äußere Erscheinungsbild Ihres Hauses, aber auch den Innenausbau.

Mehr erfahren

 

Diese Themen könnten Sie auch interessieren


Interesse?

Lernen Sie STREIF als Ihren Hausbaupartner kennen
Jetzt kostenfrei Hauskataloge anfordern und inspirieren lassen
Interesse?
Lernen Sie STREIF als Ihren Hausbaupartner kennen
Jetzt kostenfrei Hauskataloge anfordern und inspirieren lassen.

Sie möchten zukünftig schöner Wohnen und zum Thema Hausbau gut informiert sein? Unsere Kataloge und Broschüren bieten eine Vielzahl an Hausentwürfen mit Grundrissen zur Inspiration und Ideenfindung. Sie geben aber auch eine Übersicht der Bauoptionen, der möglichen Ausstattungsvarianten und zeigen Trends sowie Innovationen aus Referenzhäusern.

In unseren Katalogen mit den verschiedenen Hausbaureihen

  • Stadtvillen
  • Einfamilienhäuser
  • Bungalows
  • Doppelhäuser und
  • Mehrfamilienhäuser

erhalten Sie einen umfassenden Überblick über die Möglichkeiten des modernen Fertighausbaus - von der Architektur bis zu individuellen Grundrisslösungen.

Katalog anfordern
Musterhaus finden
Kontakt
Katalog
Karte
Kontakt
Merkliste
Herzenhäuser
Herzenhäuser
Ein Zuhause mit Holz
Ein Zuhause mit Holz