City Haus als modernes Stadthaus
Die Architektur und Grundrissgestaltung auf 158 m² des modernen Stadthauses
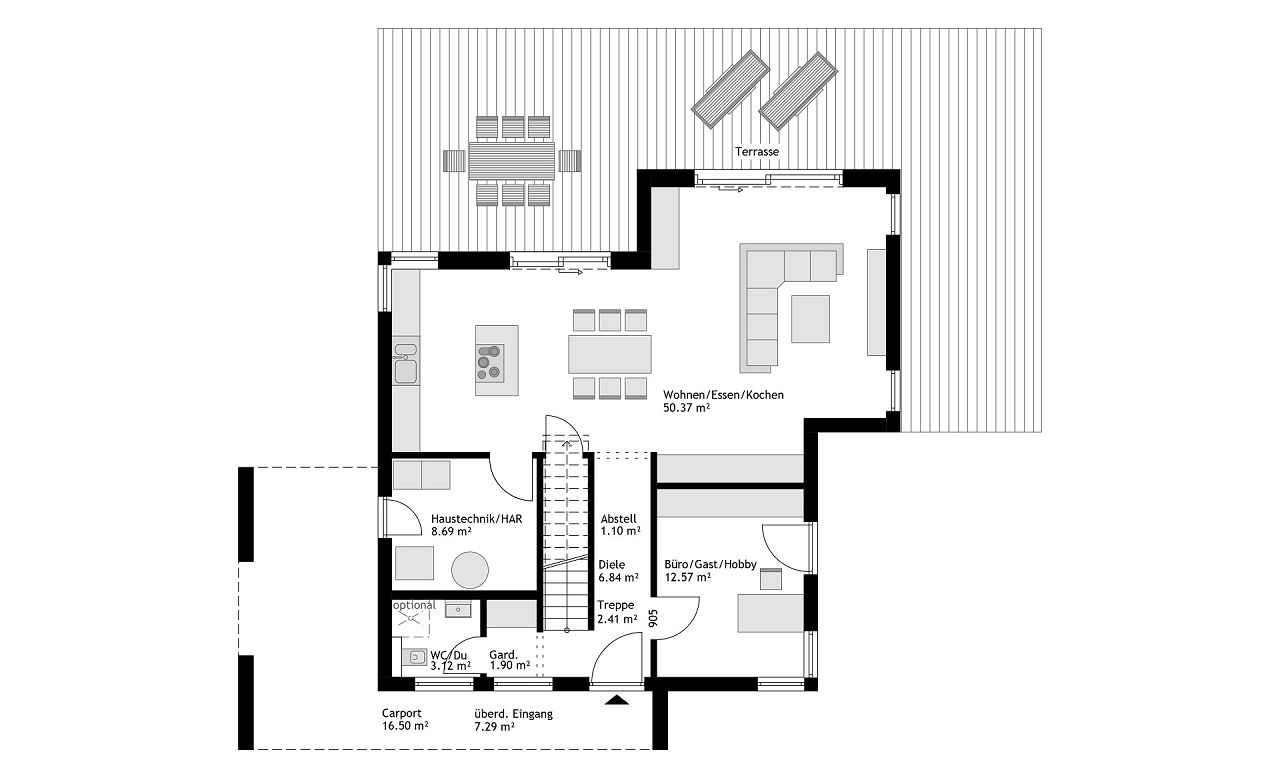
Das moderne Stadthaus wird durch einen Übereck-Erker und einen überdachten Hauseingang mit angeschlossenem Carport sowie Übereck-Fenstern akzentuiert. Das repräsentative Haus bietet auf einer Grundfläche von 158 m², neben dem offen gestalteten Wohnbereich, Platz für 4 Schlafräume und 2 Bäder. Im Erdgeschoss ist die Grundrissgestaltung mit einem großzügigen Wohn-/Ess- und Kochbereich angelegt.
Die abgebildeten Hausentwürfe sind Gestaltungsvorschläge. Eine Vielzahl von individuellen Anpassungen wie z. B. Hausgröße, Dachgeometrie, Fenstergrößen/ und -position sind möglich. Wir bauen Ihr Zuhause als Energieeffizienzhaus individuell nur für Sie. Fragen Sie Ihre persönliche STREIF-Bauberatung.

Ausbaustufe
4 Möglichkeiten – viel Flexibilität
STREIF bietet Ihnen vom Ausbauhaus bis zum schlüsselfertigen Haus vier Ausbaustufen zur Auswahl. Das bedeutet für Sie maximale Flexibilität, ob und wie viel Eigenleistung Sie erbringen möchten.
Mehr erfahrenAusstattung
Vom Draußen und Drinnen
In der Ausstattung bestimmen Sie die Details, die bei Ihrem Hausbau ausgeführt werden sollen. Das betrifft das äußere Erscheinungsbild Ihres Hauses, aber auch den Innenausbau.
Mehr erfahrenDiese Themen könnten Sie auch interessieren








Interesse?

Sie möchten zukünftig schöner Wohnen und zum Thema Hausbau gut informiert sein? Unsere Kataloge und Broschüren bieten eine Vielzahl an Hausentwürfen mit Grundrissen zur Inspiration und Ideenfindung. Sie geben aber auch eine Übersicht der Bauoptionen, der möglichen Ausstattungsvarianten und zeigen Trends sowie Innovationen aus Referenzhäusern.
In unseren Katalogen mit den verschiedenen Hausbaureihen
- Stadtvillen
- Einfamilienhäuser
- Bungalows
- Doppelhäuser und
- Mehrfamilienhäuser
erhalten Sie einen umfassenden Überblick über die Möglichkeiten des modernen Fertighausbaus - von der Architektur bis zu individuellen Grundrisslösungen.

