Elegante Stadtvilla im Bauhausstil: Anpassbar mit überdachter Terrasse
Die Architektur und die Grundrissgestaltung der Stadtvilla im Bauhausstil
Die Architekur
Eine extravagante Architektur im Bauhausstil zeichnet diesen Hausentwurf aus. Kubistische Gebäudeversätze mit zwei Wohnraumerweiterungen, einer überdachte Terrasse und ein überdachter Haus- und Carporteingang sind die Highlights des Hauses.
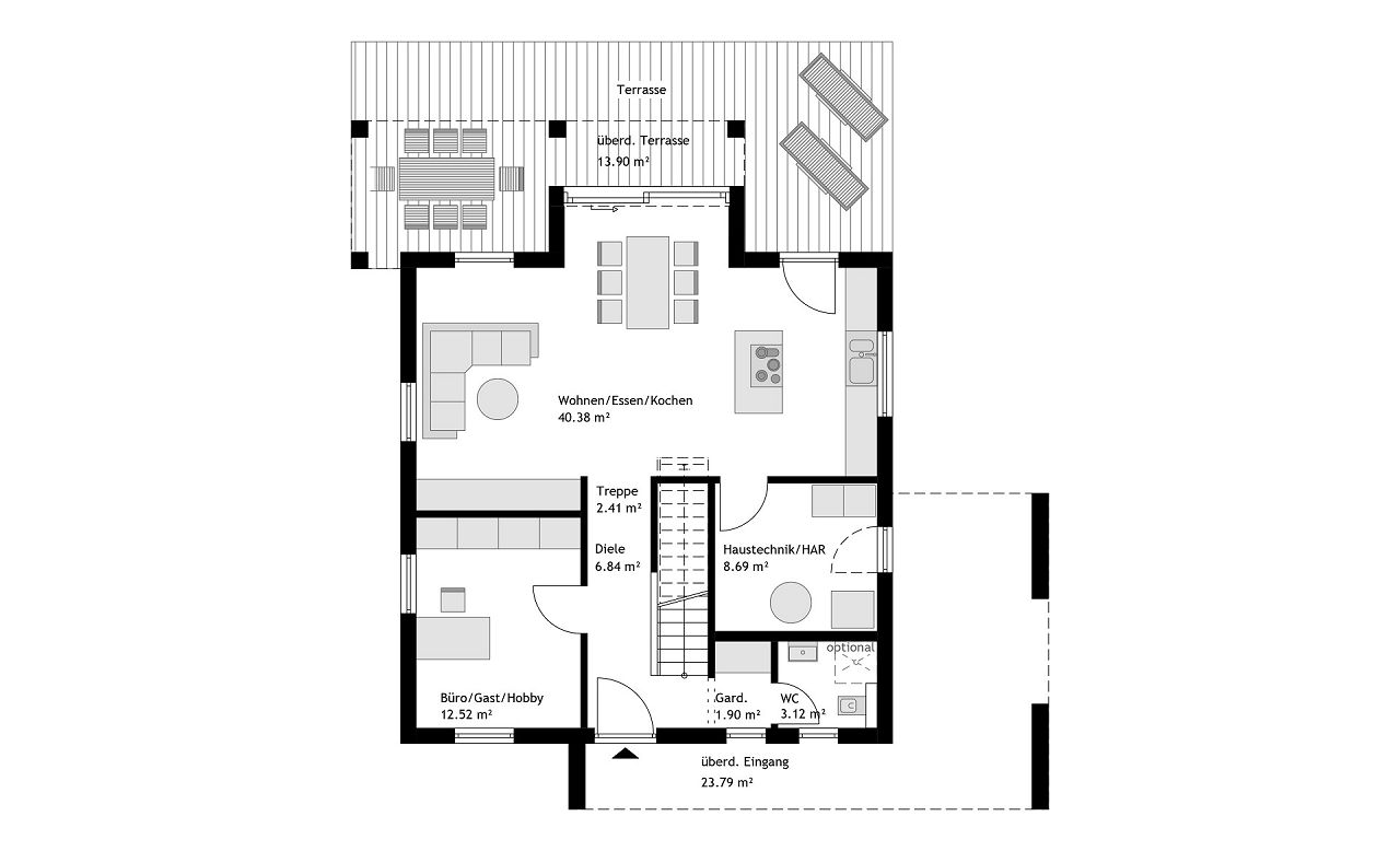
Die Grundrissgestaltung der Stadtvilla im Bauhausstil
Die Grundrissgestaltung bietet im Erdgeschoss einen großzügigen Wohn-/Ess- und Kochbereich, der sich über eine Panorama-Hebeschiebetür, zwei Terrassentüren und ein Fenster zum Garten hin öffnet.Passend zum Stil des Hauses ist die Treppe geradläufig angelegt. Im Erdgeschoss befinden sich weiterhin ein praktischer Hauswirtschafts-/Haustechnikraum, der direkt an die Küche grenzt und ein zusätzlicher Raum, der als Arbeits-, Schlaf- oder Gästezimmer genutzt werden kann. Ein Duschbad und eine gut platzierte Garderobennische im Flur komplettieren die Etage. Im geräumigen Obergeschoss der Stadtvilla im Bauhausstil finden drei Kinderzimmer, ein Kinderbad, ein Elternschlafzimmer mit separater Ankleide und Bad en suite Platz.
Dieses Haus ist außergewöhnlich und unterstreicht die Persönlichkeit der Besitzer. Die abgebildeten Hausentwürfe sind Gestaltungsvorschläge. Eine Vielzahl von individuellen Anpassungen wie z. B. Hausgröße, Dachgeometrien, Fenstergrößen-/positionierungen sind möglich. Fragen Sie Ihre regionale STREIF-Bauberatung.
Die Highlights der Stadtvilla
- 2-geschossige Stadtvilla mit Flachdach und Wohnraumerweiterung
- Überdachter Haus- und Carporteingang
- 3 Kinderzimmer mit Kinderbad
- Elternschlafbereich mit Ankleide und Bad in einer Raumfolge
Die Hausdaten
- Hausmaße 10,58 m x 9,33 m zzgl. externe Anbauteile
- Netto-Raumfläche ohne Anbauteile 154,86 m² (Anbauteile 37,69 m²)

Ausbaustufe
4 Möglichkeiten – viel Flexibilität
STREIF bietet Ihnen vom Ausbauhaus bis zum schlüsselfertigen Haus vier Ausbaustufen zur Auswahl. Das bedeutet für Sie maximale Flexibilität, ob und wie viel Eigenleistung Sie erbringen möchten.
Mehr erfahrenAusstattung
Vom Draußen und Drinnen
In der Ausstattung bestimmen Sie die Details, die bei Ihrem Hausbau ausgeführt werden sollen. Das betrifft das äußere Erscheinungsbild Ihres Hauses, aber auch den Innenausbau.
Mehr erfahrenDiese Themen könnten Sie auch interessieren









Interesse?

Sie möchten zukünftig schöner Wohnen und zum Thema Hausbau gut informiert sein? Unsere Kataloge und Broschüren bieten eine Vielzahl an Hausentwürfen mit Grundrissen zur Inspiration und Ideenfindung. Sie geben aber auch eine Übersicht der Bauoptionen, der möglichen Ausstattungsvarianten und zeigen Trends sowie Innovationen aus Referenzhäusern.
In unseren Katalogen mit den verschiedenen Hausbaureihen
- Stadtvillen
- Einfamilienhäuser
- Bungalows
- Doppelhäuser und
- Mehrfamilienhäuser
erhalten Sie einen umfassenden Überblick über die Möglichkeiten des modernen Fertighausbaus - von der Architektur bis zu individuellen Grundrisslösungen.

