Bakery Cube als Freestander
Clevere Geschäftseinheiten, Verkaufsflächen, Büros, oder Ladenlokale, Smart Stores für die Nachverdichtung
Modern, einladend und schnell baubar - der Bakery Cube als Freestander
In städtischen Gebieten gibt es häufig große Parkplätze oder Flächen, die nicht komplett benötigt werden. Einige großen Filialisten sind auf die Idee gekommen, diese Flächen mit zusätzlichen Geschäftseinheiten zu bebauen. Hierzu eignet sich der Holztafelbau in hervorragender Weise. Anforderungen, wie zum Beispiel eine Backstraße im hinteren Bereich und im vorderen Bereich Verkaufs-und Gasträume wurden spezifiziert. Aber denkbar ist das Konzept auch mit vielen anderen Nutzungsmöglichkeiten. Hier finden Sie Beispiele.
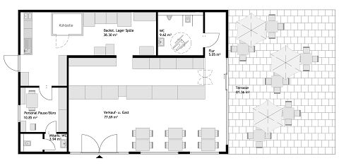
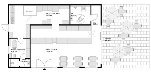
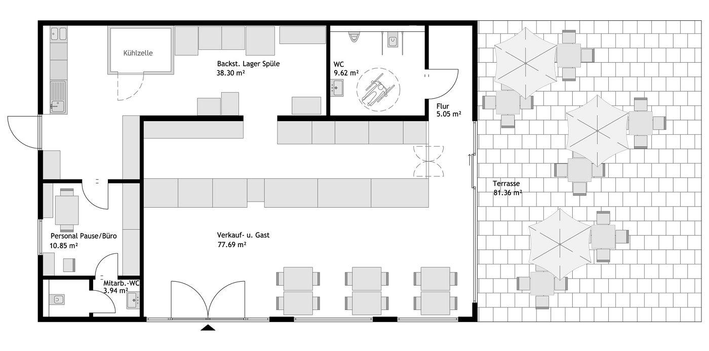
Effiziente Grundrissideen für Ihr Freestander Projekt
Eine individuelle und effiziente Grundrissplanung ist die Basis für die Umsetzung jedes Freestander-Projektes. Da die Rahmenbedingungen bereits spezifiziert sind, kann die Planung und der Bau schnell durchgeführt werden. Wir haben für Sie hier einige Grundrissbeispiele aus der Praxis zusammengestellt.
Der Bakery Cube Freestander und seine Möglichkeiten der Außengestaltung
Der Kubusbau bringt auch ein Konzept mit, wie Sie das Gebäude für Ihre Markenbotschaft nutzen können. Die Fassadengestaltung kann in Putz oder auch mit einer Teilholzverkleidung oder Klinkerfassade realisiert werden. Große Panoramafenster sind vorteilhaft für alle, die im Gebäude sind und ziehen die Aufmerksamkeit auf alle, die am Gebäude vorbeifahren oder gehen.
Ihre Vorteile beim Bauen mit STREIF
Wirtschaftlich, energieeffizient und nachhaltig: Ein modulares Storekonzept für die Zukunft
Der BakeryCube überzeugt durch seine moderne Holzständerbauweise und bietet ein Höchstmaß an Flexibilität: Grundriss und Design lassen sich präzise an Arbeitsabläufe, Standortgegebenheiten und zukünftige Anforderungen anpassen. Dank der modularen Konstruktion ist eine Erweiterung – sogar auf zwei Geschosse - jederzeit möglich. Gleichzeitig entsteht ein wohngesundes, angenehmes Raumklima. Photovoltaiksysteme können nahtlos in das nachhaltige Energiekonzept integriert werden.
Auch wirtschaftlich bietet das Konzept klare Vorteile: Die hohe Vorfertigung reduziert die Bauzeit deutlich, senkt Transportaufwände und sorgt für verlässliche Kalkulationssicherheit bei konstant hoher Qualität.
Ein weiterer Pluspunkt: Die Standorte können flexibel - ohne Öffnungszeitenbeschränkungen - betrieben werden und ermöglichen je nach Bedarf hybride oder vollständig autonome Betriebsmodelle.
Zukunftssicher bauen mit STREIF
Verlässlichkeit, modernes Design und ein überzeugendes Preis-Leistungs-Verhältnis: STREIF zählt zu den führenden Fertighausherstellern in Deutschland. Unsere vielfach ausgezeichneten Häuser verbinden höchste Bauqualität mit nachhaltigen Materialien und umfassenden Kundenservice - für ein Gebäude, das begeistert.
Wissenscheck
Fertighaus Hauspreise und Kosten
Fertighauspreise umfassend erklärt
Ob erste Orientierung oder konkrete Planung: Im Wissenscheck finden sich alle wichtigen Informationen rund um die Fertighaus Kosten – von den zentralen Preisfaktoren über aktuelle Entwicklungen bis zu typischen Preisbeispielen. Klar strukturiert, praxisnah und verständlich aufbereitet – damit jede Entscheidung auf einer soliden Grundlage getroffen werden kann.
Fertighauspreise umfassend erklärt
Ob erste Orientierung oder konkrete Planung: Im Wissenscheck finden sich alle wichtigen Informationen rund um die Fertighaus Kosten – von den zentralen Preisfaktoren über aktuelle Entwicklungen bis zu typischen Preisbeispielen. Klar strukturiert, praxisnah und verständlich aufbereitet – damit jede Entscheidung auf einer soliden Grundlage getroffen werden kann.
1. Welche Faktoren beeinflussen die Fertighaus Preise?
Grundstück & Lage
Kaufpreis, Erschließung, Bodenbeschaffenheit und regionale Bauvorschriften prägen die Gesamtkosten erheblich. Baunebenkosten (z. B. Vermessung, Hausanschlüsse, Genehmigungen) fallen unabhängig vom Haustyp an und gehören in eine realistische Kalkulation der Fertighaus Kosten.
Architektur & Komplexität
Klar strukturierte Gebäudeformen sind kosteneffizienter als Entwürfe mit vielen Vorsprüngen, großen auskragenden Bauteilen oder aufwendigen Glasflächen. Bauhaus-Architektur mit Flachdach, umlaufenden Attiken und bodentiefen Verglasungen bewegt sich meist im mittleren bis oberen Preisband der Fertighäuser Preise.
Wohnfläche & Raumnutzung
Die Fertighaus Kosten pro Quadratmeter sinken oft leicht mit wachsender Wohnfläche (Skaleneffekte im Rohbau), während hochwertige Innenausstattung den m²-Preis wieder anheben kann.
Ausbaustufe
Die gewählte Ausbaustufe bestimmt den Investitionsrahmen: Ausbauhaus, Fastfertig, Fastfertig+ (STREIF-Standard) oder schlüsselfertig. Je mehr Eigenleistung entfällt, desto höher der Komfort – und desto klarer kalkulierbar sind die Fertighaus Preise schlüsselfertig. Zusätzliche Ausstattungsoptionen beeinflussen die Kosten. Ein Beispiel ist die Garage: Ein Fertighaus mit Garage Preis liegt über dem Basisangebot und variiert je nach Größe, Bauweise und Ausstattung.
Energieeffizienz & Technik
STREIF realisiert Häuser standardmäßig als Klimafreundlicher Neubau (KFN) entsprechend Effizienzhaus 40 (ohne fossile Heizsysteme, zusätzlich muss die Nutzung erneuerbarer Energien 55% des Energiebedarfes decken). Technikpakete wie STREIF-Luft-Luft-Wärmepumpe mit Wärmerückgewinnung, ggf. Photovoltaik und Speicher (gegen Aufpreis), beeinflussen Anschaffungspreise und senken Betriebskosten langfristig.
Ausstattung & Sonderwünsche
Markenfenster mit 3-fach-Wärmeschutzverglasung, Massivholztreppe aus eigener Produktion, geflieste Bäder mit Marken-Sanitär, Smart-Home, Designküche, Kaminofen oder Wintergarten: Je nach Umfang variieren Fertighaus Preise deutlich. Transparente Leistungsbeschreibungen schaffen Planungssicherheit.
2. Fertighaus Preise im Überblick
Preislogik statt Überraschungen
Die Gesamtkosten ergeben sich aus Haus (inkl. gewählter Ausbaustufe), Grundstück, Baunebenkosten und optionalen Zusatzleistungen (z. B. Keller). Ein Preisvergleich Fertighäuser ist nur sinnvoll, wenn Leistungsumfänge vergleichbar sind (Bodenplatte, Haustechnik, Dämmstandard, Innenausbau). Besonders in stark nachgefragten Regionen wie Bayern variieren die Fertighäuser Preise in Bayern spürbar. Hier sind Grundstückskosten oft der größte Einflussfaktor. Oft wird auch nach einem Gesamtpaket gefragt – dem Fertighaus mit Grundstück Preis. Diese Kombination hängt jedoch stark von der Region, der Grundstücksgröße und den Bodenverhältnissen ab, sodass keine pauschale Angabe möglich ist.
Fertighaus Preise pro Quadratmeter
m²-Preise eignen sich als grobe Orientierung, bilden aber nicht die Vielfalt individueller Entscheidungen ab. Präzise Aussagen liefert stets ein konkret kalkulierter Entwurf mit definierter Ausbaustufe und Ausstattung.
Fertighaus Preise 2024/2025 – Entwicklung
Preisbewegungen am Bau entstehen u. a. durch Materialkosten, Normen, Förderkulissen und Energietechnik. Industrielle Vorfertigung, feste Leistungsbeschreibungen und die STREIF-Festpreisgarantie sorgen dennoch für hohe Planungs- und Kostensicherheit. Die Baukosten entwickeln sich dynamisch. Ein Rückblick auf die Fertighaus Preise 2023 zeigt steigende Tendenzen, während Prognosen zu den Fertighaus Preisen 2024 und Fertighaus Preisen 2025 eine weitere Anpassung durch Materialkosten, Normen und Förderprogramme erwarten lassen.
3. Fertighaus schlüsselfertig: Preise und Leistungen
Die Wahl der Ausbaustufe hat einen entscheidenden Einfluss auf die Gesamtkosten eines Fertighauses. Während ein Ausbauhaus oder die Stufen Fastfertig und Fastfertig+ mehr Eigenleistungen erfordern, bietet die schlüsselfertige Variante maximale Bequemlichkeit: Alle Gewerke sind abgeschlossen, Bodenbeläge verlegt, Wände gestrichen und Innentüren montiert. Bauherren können direkt einziehen, ohne weitere Arbeiten koordinieren zu müssen.
Damit sind die Fertighaus Preise schlüsselfertig naturgemäß höher, sie garantieren jedoch ein Höchstmaß an Planungs- und Terminsicherheit. Gerade im Vergleich zu den niedrigeren Stufen zeigt sich hier der Mehrwert: Wer Zeit und Aufwand sparen möchte, entscheidet sich für die Komplettlösung.
Für den Preisvergleich Fertighäuser ist es deshalb wichtig, immer die gleiche Ausbaustufe gegenüberzustellen. Ein schlüsselfertiges Haus mit Bodenplatte, Haustechnik, Bädern und kompletter Oberflächengestaltung lässt sich nicht mit einem Ausbauhaus oder Fastfertig-Angebot vergleichen. Werden diese Unterschiede nicht berücksichtigt, entsteht ein verzerrtes Bild der tatsächlichen Fertighaus Kosten. Bei STREIF entspricht die Ausbaustufe „Schlüsselfertig“ den Fertighäuser Preisen bezugsfertig – inklusive aller Oberflächenarbeiten, Bodenbeläge und Innentüren. Damit entsteht ein Haus, das direkt bezogen werden kann, ohne weitere Eigenleistungen.
4. Preisvergleich Fertighäuser - Worauf achten?
Ein Preisvergleich Fertighäuser liefert nur dann belastbare Ergebnisse, wenn die zugrunde liegenden Leistungen auch wirklich identisch sind. Viele Angebote wirken auf den ersten Blick günstiger, entpuppen sich bei genauer Prüfung jedoch als unvollständig. Deshalb sollte beim Vergleich stets ein genauer Blick auf den Leistungsumfang geworfen werden: Ist die Bodenplatte im Preis enthalten? Welche Fensterqualität wird verbaut? Sind Haustechnik, Bäder und Innenausbau berücksichtigt? Erst wenn diese Punkte synchronisiert sind, ist ein echter Vergleich möglich.
Ebenso wichtig ist die Festlegung der Ausbaustufe. Ein Ausbauhaus kann preislich nicht mit einem schlüsselfertigen Fertighaus verglichen werden. Für eine seriöse Gegenüberstellung muss daher immer die gleiche Ausbaustufe herangezogen werden.
Darüber hinaus beeinflussen Energie- und Förderstandards die Gesamtkosten. Ein Haus nach KFN-Vorgaben mit Effizienzhaus-40-Niveau, Wärmeschutz und moderner Lüftungstechnik liegt in einer anderen Preisklasse als ein Haus ohne diese Eigenschaften – bietet aber langfristig niedrigere Energiekosten und Zugang zu Förderprogrammen.
Nicht zu vergessen sind die Baunebenkosten, die separat kalkuliert werden müssen. Dazu gehören Grundstückskosten, Erschließung, Hausanschlüsse, Vermessung, Statik und Genehmigungen. Werden diese Positionen unterschätzt, entsteht ein verfälschtes Bild vom Gesamtpreis.
Entscheidend ist schließlich die Transparenz der Kalkulation. Klare und nachvollziehbare Kalkulationen verhindern spätere Nachträge und schaffen Planungssicherheit. Gerade beim Preisvergleich Fertighäuser oder wenn Bauherren aktuelle Entwicklungen bei den Fertighaus Preisen 2025 im Blick haben möchten, zeigt sich, wie wichtig eine transparente Kostenaufstellung ist – nur so lassen sich fundierte Entscheidungen treffen.
5. Fertighaus Preise und Energiekosten
Beim Blick auf die Fertighaus Preise lohnt es sich, nicht nur den Anschaffungspreis zu betrachten, sondern auch die laufenden Energiekosten über viele Jahre hinweg einzukalkulieren. Denn eine energieeffiziente Bauweise sorgt dafür, dass die Gesamtkosten langfristig stabil und gut planbar bleiben.
Niedrige Betriebskosten entstehen durch eine hochwertige Gebäudehülle, die Wärmedämmung und Schallschutz kombiniert, durch eine kontrollierte Lüftung mit Wärmerückgewinnung sowie durch den Einsatz moderner Heiztechnologien wie einer Luft-Luft-Wärmepumpe. Wer zusätzlich auf Photovoltaik-Anlagen mit Speicher setzt, reduziert seinen Strombezug deutlich und macht sich unabhängiger von steigenden Energiepreisen.
Auch die Standards spielen eine Rolle: Ein Niedrigenergiehaus bis hin zum KFN-Effizienzhaus 40 reduziert nicht nur die CO₂-Emissionen, sondern stabilisiert die Fertighaus Kosten im Betrieb. Damit werden die monatlichen Belastungen für Energie langfristig kalkulierbar und Bauherren profitieren doppelt – von niedrigen Verbrauchswerten und von der Werthaltigkeit ihrer Immobilie.
Ein weiterer Vorteil ergibt sich aus der aktuellen Förderkulisse. Je nach Programmstand können durch eine Ökobilanzierung oder eine QNG-Nachhaltigkeitszertifizierung attraktive Förderdarlehen in Anspruch genommen werden. Damit relativieren sich die Investitionskosten, während gleichzeitig die Nachhaltigkeit und Zukunftsfähigkeit des Hauses steigt.
6. Kostenfallen vermeiden - Tipps für Bauherren
1. Leistungsbeschreibungen im Detail klären
Bodenplatte, Dämmniveau, Haustechnik, Elektro- und Sanitärumfang, Treppe, Bäder, Maler- und Bodenarbeiten eindeutig fixieren.
2. Keller vs. Bodenplatte nüchtern bewerten
Fertighaus Preise mit Keller liegen systembedingt höher. Der Mehrwert (Stauraum, Haustechnik, Hobby) sollte gegen Budget und Baugrund abgewogen werden.
3. Grundstücksfolgekosten einplanen
Erschließung, Vermessung, Hausanschlüsse, Außenanlagen, eventuelle Bodenaustausche realistisch kalkulieren.
4. Technik mit Weitblick wählen
Heiz-/Lüftungssysteme und PV-Optionen nach Lebenszykluskosten betrachten – nicht nur nach Einmalpreis.
5. Eigenleistung ehrlich einschätzen
Ausbaustufen wie Ausbauhaus senken Fertighaus Kosten, verlangen aber Zeit, Know-how und Koordination. Qualitäts- und Terminrisiken einbeziehen.
6. Puffer für Sonderwünsche reservieren
Kamine, Wintergärten, Smart-Home, zusätzliche Bäder oder hochwertige Böden zielgenau budgetieren.
7. Vorteile eines Fertighauses trotz steigender Preise
Planbarkeit & Geschwindigkeit
Industrielle Vorfertigung und eingespielte Montageprozesse sichern kurze Bauzeiten und verlässliche Termine.
Qualität & Sicherheit
Zertifizierte Produktion, dokumentierte Qualitätskontrollen und Markenbauteile erhöhen Wertstabilität. Siegel wie BDF/QDF, TÜV-geprüfte Wohngesundheit und weitere Zertifikate stärken Vertrauen.
Flexibilität
Vom Ausbauhaus bis Schlüsselfertig lässt sich der Anteil an Eigenleistung, der Installationsumfang und die Ausstattung feinjustieren – Fertighäuser Preise bleiben dabei transparent.
Nachhaltigkeit
KFN-Standard, effizienter Wärmeschutz und erneuerbare Energien reduzieren Emissionen und Betriebskosten – wirtschaftlich über die gesamte Nutzungsdauer.
8. Fazit - Was kostet ein Fertighaus wirklich?
Die Fertighaus Preise ergeben sich aus dem Zusammenspiel von Architektur und Entwurf, der gewählten Ausbaustufe, dem Energie- und Technik-Konzept sowie der Ausstattung – ergänzt durch Grundstück und Baunebenkosten. Wer dabei nicht nur den Einstiegspreis betrachtet, sondern die Gesamtkosten über die gesamte Nutzungsdauer, erkennt den Mehrwert einer klar beschriebenen, förderfähigen und energieeffizienten Lösung.
Dank der transparenten Ausbaulogik – Ausbauhaus, Fastfertig, Fastfertig+ und Schlüsselfertig – lassen sich die Fertighaus Kosten verlässlich kalkulieren: vom soliden Budgetentwurf bis zur bezugsfertigen Komplettausführung. So entsteht Planungssicherheit, und Bauherren können die für sie passende Balance aus Eigenleistung, Komfort und Investitionshöhe wählen.
Sie fragen
Kann man ein Fertighaus kaufen?
Ja – Fertighäuser von STREIF werden nach individueller Planung als Neubau errichtet. Darüber hinaus gibt es vereinzelt gebrauchte Fertighäuser auf dem Immobilienmarkt, doch Neubauten bieten den Vorteil moderner Technik und aktueller Energiestandards.
Wie hoch sind die Preise für ein STREIF-Fertighaus?
Die Preise für STREIF-Häuser variieren je nach Architektur, Ausbaustufe und Ausstattung. Beispiel: Das Haus City L kostet in der Ausbaustufe „ausbaufertig“ ab ca. 251.000 €, in der Ausbaustufe „schlüsselfertig“ ab ca. 398.000 €.
Gibt es Fertighäuser als Komplettpreise?
STREIF bietet keine pauschalen Komplettpreise an, sondern Fertighäuser Komplettpreise auf Basis der gewählten Ausbaustufe, Ausstattung und individuellen Planung. So ist sichergestellt, dass jedes Angebot genau zu den Wünschen und Anforderungen der Bauherren passt.
Gibt es eine Fertighäuser Preisliste?
Eine klassische Preisliste für Fertighäuser gibt es bei STREIF nicht, da jedes Haus individuell geplant wird. Stattdessen finden Bauherren auf der Website Preisbeispiele für verschiedene Ausbaustufen. So sind die Fertighäuser mit Preisliste transparent nachvollziehbar, ohne dass pauschale Preise in die Irre führen.
Gibt es ein Musterhaus mit Preisen?
Ja, viele Bauinteressenten informieren sich in einem Musterhaus mit Preisen über die Leistungen und Kosten. STREIF zeigt bei seinen Musterhäusern klare Preisbeispiele je nach Ausbaustufe und Ausstattung – für maximale Transparenz.
Wie hoch sind die Preise für ein Fertighaus mit Keller?
Ein Keller erhöht die Baukosten deutlich, oft um 50.000 – 80.000 €, abhängig von Größe, Ausstattung und den Bodenverhältnissen auf dem Grundstück.
Wie hoch sind die Preise für ein Fertighaus im Bauhausstil?
Ein Fertighaus im Bauhausstil zeichnet sich durch klare Linien, Flachdach und oft großflächige Verglasungen aus. Diese architektonischen Besonderheiten führen in der Regel zu höheren Baukosten als bei klassischen Haustypen. Je nach Ausbaustufe und Ausstattung bewegen sich die Preise meist im mittleren bis oberen Segment.
Wie hoch sind die Preise für ein Fertighaus als Niedrigenergiehaus?
Fertighäuser von STREIF erfüllen bereits im Standard die Kriterien eines Effizienzhauses 40. Ein Niedrigenergiehaus entspricht mindestens diesem Standard, sodass keine Mehrkosten für die Erfüllung der Vorgaben entstehen. Zusatzkosten entstehen für die Durchführung der Ökobilanzierung oder der Nachhaltigkeitszertifizierung nach QNG.
Gibt es auch günstige Fertighäuser?
Wer nach Fertighäuser Preisen günstig sucht, sollte die Ausbaustufe beachten. Ein Ausbauhaus bietet die Möglichkeit, durch Eigenleistung Kosten zu sparen. So können die Kosten für Fertighäuser deutlich unter den Preisen eines schlüsselfertigen Hauses liegen
Was kostet das billigste Fertighaus schlüsselfertig?
Das günstigste schlüsselfertige STREIF-Haus beginnt ab ca. 398.000 € (Beispiel Haus City L, Ausbaustufe schlüsselfertig).
Wie hoch sind die Preise für ein Fertighaus für 2 Familien?
Ein Zweifamilienhaus bietet zwei getrennte Wohneinheiten und benötigt entsprechend mehr Fläche. Dadurch sind die Kosten höher als beim Einfamilienhaus. Die Preise variieren stark, beginnen aber in der Regel ab ca. 500.000 € aufwärts – abhängig von Größe und Ausbaustufe.
Wie hoch sind die Preise für ein Fertighaus für Senioren?
Seniorengerechte Fertighäuser, wie barrierefreie Bungalows, starten bereits im mittleren Preissegment. Durch die ebenerdige Bauweise und kompaktere Grundrisse können die Kosten geringer ausfallen als bei mehrgeschossigen Haustypen.



















